EasyManua.ls Logo

LG MULTI F - Page 61

LG MULTI F
224 pages
Print Icon
To Next Page IconTo Next Page
To Next Page IconTo Next Page
To Previous Page IconTo Previous Page
To Previous Page IconTo Previous Page
Loading...
STD. WALL-MOUNTED | 61
Standard Wall-Mounted
Due to our policy of continuous product innovation, some specications may change without notication.
©LG Electronics U.S.A., Inc., Englewood Cliffs, NJ. All rights reserved. “LG” is a registered trademark of LG Corp.
MULTI
F
MAX
MULTI
F
Dimensions
STANDARD WALL-MOUNTED INDOOR UNITS
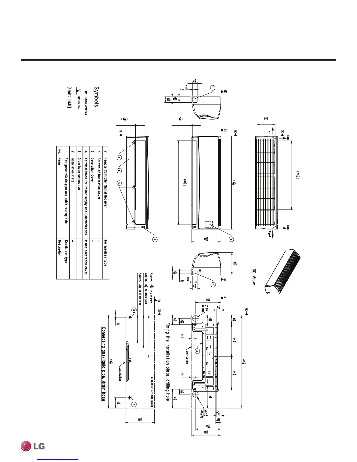
Figure 72: LMN247HVT Dimensions.
Return Air Inlet
Return Air Inlet
Supply Air Va ne
Supply Air Va ne
Supply Air Va ne

Table of Contents

Other manuals for LG MULTI F

Related product manuals