EasyManua.ls Logo

Magnetrol ES Modulevel - Page 51

Magnetrol ES Modulevel
52 pages
Print Icon
To Next Page IconTo Next Page
To Next Page IconTo Next Page
To Previous Page IconTo Previous Page
To Previous Page IconTo Previous Page
Loading...
48
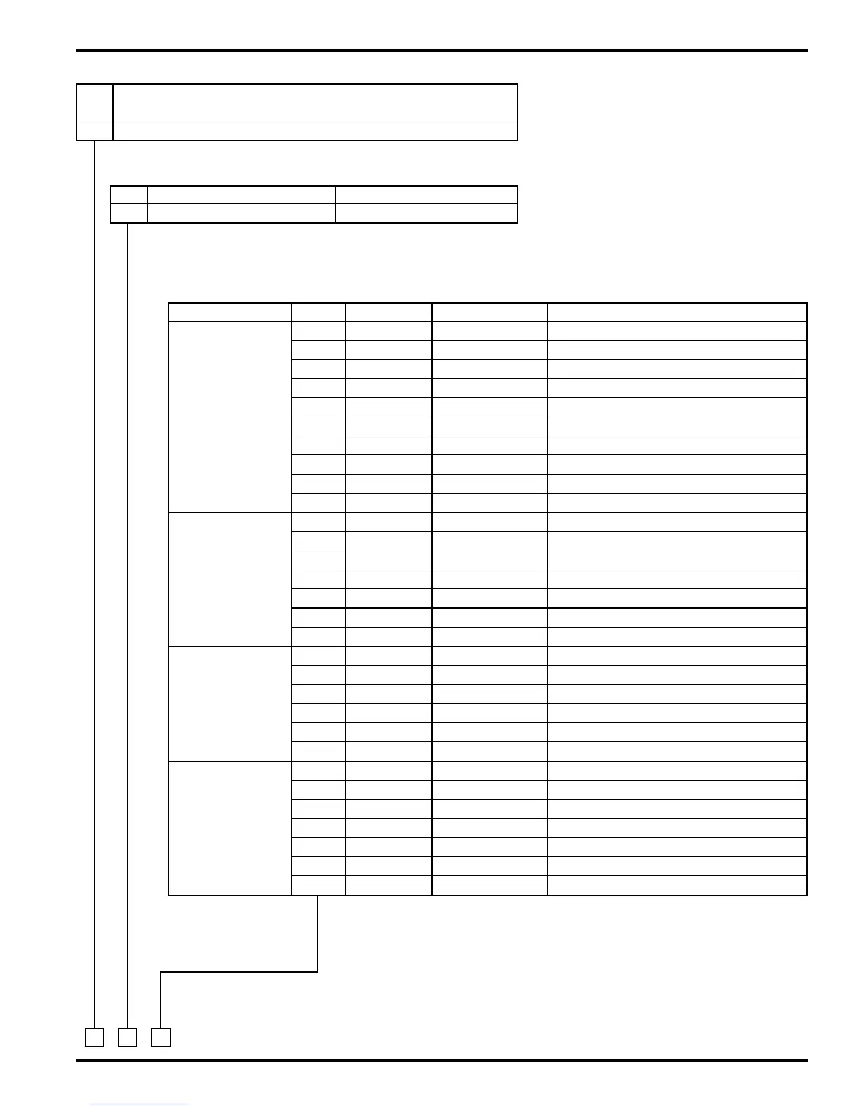
48-618 ES/EZ Modulevel Displacer Level Transmitter (Top Hat Assembly Design)
TRANSMITTER TYPE & MOUNTING
E Electronic Integral Mount
G Electronic Remote Mount
R Electronic High-temp Integral Mount
TRANSMITTER CONFIGURATION AND ACCESSORIES
Code Display Input Voltage Agency Approval
A None 24 VDC EP – FM, CSA, ATEX
B None 120 VAC EP FM, CSA
Integral Mount
C None 240 VAC EP FM, CSA
D None 24 VDC IS/NI FM, CSA, ATEX
Fourth Digits
G Analog 24 VDC EP FM, CSA, ATEX
1, 2, 3 only
I Analog 24 VDC IS/NI FM, CSA, ATEX
Eighth Digit E only
L Analog 120 VAC EP FM, CSA
N Analog 240 VAC EP FM, CSA
+400° F max. J Digital 24 VDC IS/NI FM, CSA
9 Digital 24 VDC EP FM, CSA, ATEX
H None 24 VDC EP FM, CSA
Remote Mount
2 None 120 VAC EP FM, CSA
Fourth Digits 3 None 240 VAC EP – FM, CSA
7, 8, 9 only
K Analog 24 VDC EP FM, CSA
Eighth Digit G only
5 Analog 120 VAC EP FM, CSA
+500° F max.
6 Analog 240 VAC EP FM, CSA
7 Digital 24 VDC EP FM, CSA
Q None 24 VDC IS/NI FM, CSA, ATEX
HT-Integral Mount
W None 24 VDC EP FM, CSA, ATEX
Fourth Digits
T Analog 24 VDC IS/NI – FM, CSA, ATEX
7 ,8, 9 only
X Analog 24 VDC EP FM, CSA, ATEX
Eighth Digit R only
4 Digital 24 VDC EP FM, CSA, ATEX
+600° F max.
Z Digital 24 VDC IS/NI FM, CSA
Q None 24 VDC EP FM, CSA
Remote Mount
R None 120 VAC EP FM, CSA
Fourth Digits
S None 240 VAC EP FM, CSA
7, 8, 9 only
T Analog 24 VDC EP – FM, CSA
Eighth Digit G only
U Analog 120 VAC EP FM, CSA
+600° F max.
V Analog 240 VAC EP FM, CSA
4 Digital 24 VDC EP FM, CSA
Last 3 Digits of Model Number
REMOTE CONNECTING CABLE
Up to +500° F, specify cable 037-3218-0XX, where last two digits are
cable length in feet from 1-75 feet.
Up to +600° F, specify cable 037-3220-0XX, where last two digits are
cable length in feet from 1-75 feet.
120 & 240 VAC available on Analog unit only (ninth digit Z)
Digital meter available on Digital Hart compatible unit only (ninth digit S)
ATEX EP approval requires modification of unit. Model must be “X’d” for a heavy-wall e-tube.
TRANSMITTER OUTPUT
Z 4-20 mA only (Analog) 24 VDC, 120 VAC or 240 VAC
S 4-20 mA with HART (Digital)
24 VDC only
HART communicator sold separately

Table of Contents

Related product manuals