EasyManua.ls Logo

Magnetrol ES Modulevel - Performance

Magnetrol ES Modulevel
52 pages
Print Icon
To Next Page IconTo Next Page
To Next Page IconTo Next Page
To Previous Page IconTo Previous Page
To Previous Page IconTo Previous Page
Loading...
41
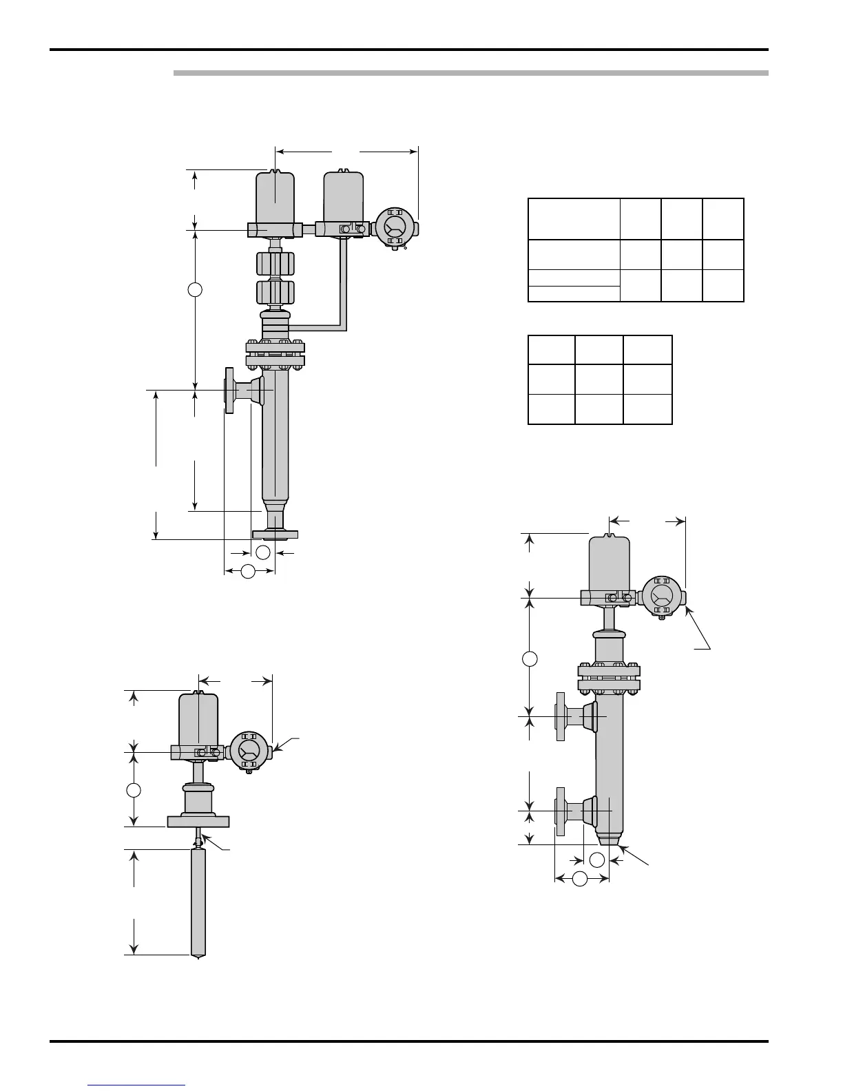
48-618 ES/EZ Modulevel Displacer Level Transmitter (Top Hat Assembly Design)
Range Spring
Specific Gravity ABC
Rating
.11 to .54
14.06 19.06 23.25
(357) (484) (591)
.55 to 1.09
12.12 17.12 21.31
1.10 to 2.20
(308) (435) (541)
Outlet
DE
Size
1
1
2
"
3.19 6.25
(81) (159)
2"
3.31 6.25
(84) (159)
Figure 31
Integral Side/Side Mount
Fourth Digit Codes 1, 2, 3
Figure 29
HT Integral Side/Bottom Mount
Fourth Digit Codes 7, 8, 9
Figure 30
Integral Top Mount
8.62
(219)
19.10
(485)
± .19 (5)
C
E
D
Level range
plus 3.50
(89)
Level range
plus 8.62
(219)
10.75
(273)
8.62
(219)
5.00 (127)
Adjustable hanger
cable available
(specify 032-3110-001)
1" NPT
conduit
connector
A
Level
range
10.75
(273)
8.62
(219)
1" NPT
conduit
connector
B
E
D
Level 
range
3.00 (76)
1" NPT drain
(plug not provided)
4.8.3 Physical
Dimensional specifications for standard pressure models E61, E62, E63, E64, E65, E66

Table of Contents

Related product manuals