EasyManua.ls Logo

Marantz AV7005 - Page 55

Marantz AV7005
128 pages
Print Icon
To Next Page IconTo Next Page
To Next Page IconTo Next Page
To Previous Page IconTo Previous Page
To Previous Page IconTo Previous Page
Loading...
51
Basic versionSimple version Information
ENGLISHDEUTSCHFRANÇAISITALIANOESPAÑOLNEDERLANDSSVENSKA
Advanced version
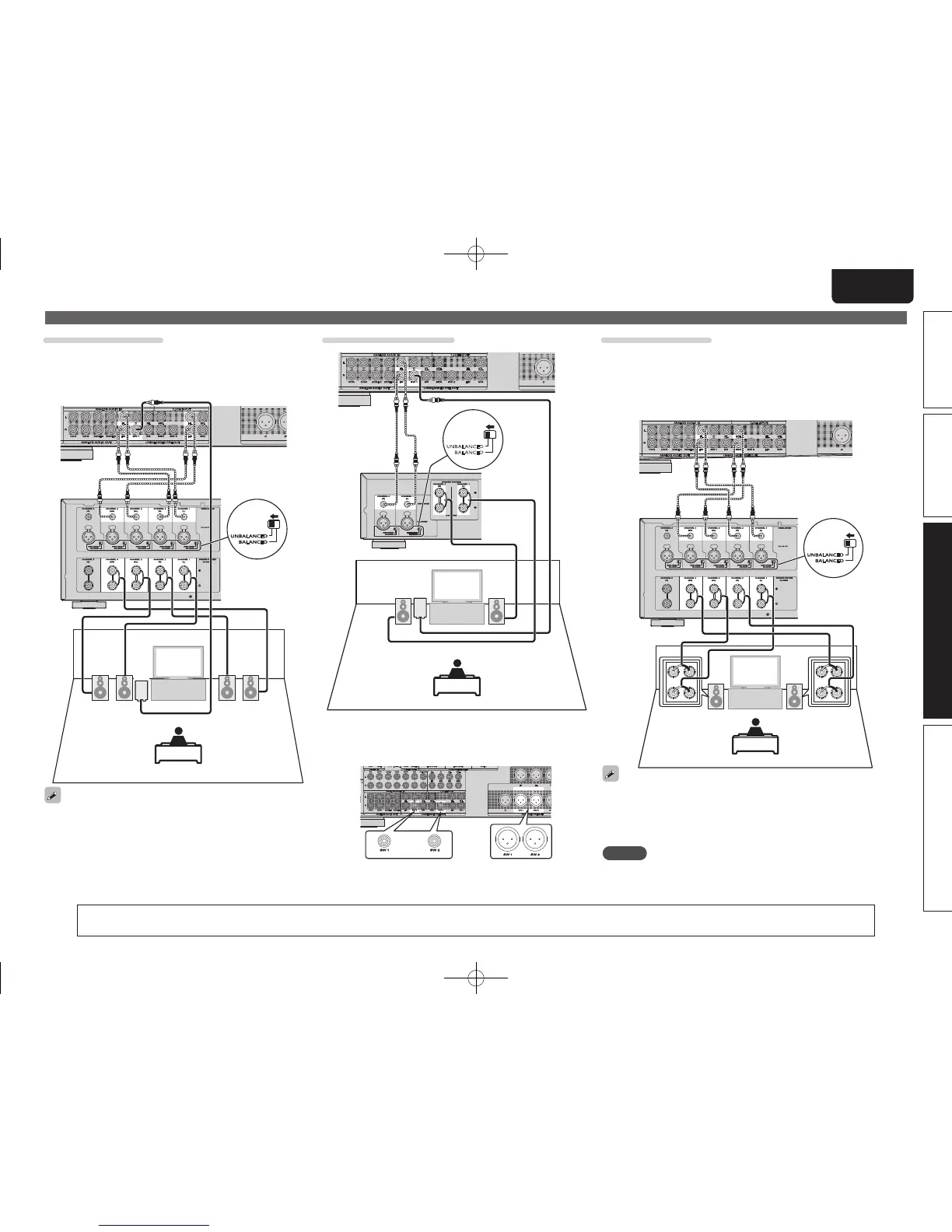
Front A/B connection
A second set of front speakers can be connected to the
UNBALANCED PRE OUT HL/HR terminals on the power amp.
In this case, perform the settings using the SPKR A/B button on
the remote control or main unit (vpage26 “Set the front speakers
to be used”).
GMM7055H
FL(A)FL(B) FR(B)FR(A)
SW
For surround playback of a multichannel source, if you connect
the center speaker, surround speakers, surround back speakers
(or front wide speakers) and subwoofers, 7.1-channel playback is
available.
Front speakers can be used separately, depending on the
speaker’s specifications or playback source such as front speakers
(A) for multichannel playback and front speakers (B) for 2-channel
playback.
For speaker impedance and speaker cable connections, see power amp user guide.
2.1-channel connection
FL FR
SW
BALANCED
UNBALANCED
GMM7025H
n For connecting four subwoofers
Four subwoofers can be connected to this unit.
The same signal is output from each subwoofer terminal.
Connect
Bi-Amp connection
A bi-amp connection is to connect separate amplifiers to the tweeter
terminals and woofer terminals of speakers compatible with the bi-amp
function. This prevents the back electromotive force (returned force without
output) of the woofer sent to the tweeter, which affects the sound quality of
the tweeter, and you can enjoy playback with higher-quality sound.
In this case, set “Set up “Amp Assign”” (vpage52) to “SPKR-C”.
FL FR
wq wq
(R) (L)
GMM7055H
When a Bi-Amp connection is used, the same signal is output from the
UNBALANCED and BALANCED PRE OUT FL/FR and SBL/SBR terminals.
For surround playback of a multichannel source, if you connect the center
speaker, surround speakers and subwoofers, 5.1-channel playback is
available.
NOTE
Use speakers compatible with bi-amp connections.
When making bi-amp connections, be sure to remove the short-circuiting
plate or wire between the speaker’s woofer and tweeter terminals.
1.AV7005U_ENG.indd 51 2010/08/23 18:32:56

Table of Contents

Other manuals for Marantz AV7005

Related product manuals