EasyManua.ls Logo

Marantz SR4500 - Advanced Connecting; Connecting the Remote Control Jacks

Marantz SR4500
43 pages
Print Icon
To Next Page IconTo Next Page
To Next Page IconTo Next Page
To Previous Page IconTo Previous Page
To Previous Page IconTo Previous Page
Loading...
ENGLISH
14
MONITOR
VCR1
RSR
C
SW SBR
SL SBLL
R
SPEAKER SYSTEMS 6
-
8 OHMS
CENTER
R
FRONT SURROUND BACK SURROUND
LLLR
DVD
OUT
IN
MONITOR
TVDVDVCR1
OUTIN
DSS
/
VCR2
OUT
VIDEO
IN
1
7.1CH INPUT
L SL C SBL
SBRSWSRR
TVDVDVCR1
OUTININ OUT
DSS
/
VCR2
IN OUT
CDR/MDTAPE
PRE OUT
OUTIN
CD
R
L
FM
(
75
)
GND AM
AUDIO
ANTENNA
AUDIO
S
V
S. SPEAKER B
RSR
C
SW SBR
SL SBLL
PRE OUT
AUDIO
7.1CH INPUT
L SL C SBL
SBRSWSRR
L
R
FRONT SURR.
SURR.
BACK
SUB
WOOFER
CENTER
L
R
FRONT SURR.
SURR.
BACK
SUB
WOOFER
CENTER
R L
L R
R L
RL RL
L
R
L R L R
L
R
L
R
L
R
RL
. SPEAKER B
IN OUT
MONITOR
VCR1
MONITOR
R
8
OHMS
CENTER
R
ROUND BACK SURROUND
LL
R
DVD
OUT
IN
MONITOR
TV
Y
DSS
/
VCR
2
DVD
COAX.
OUT
43OPT.
OUT
21
7.1CH INPUT
L SL C SBL
SBRSWSRR
TV
C
B
/
P
B
C
R
/
P
R
RC-5
DIGITAL
COMPONENT VIDEO
AC OUTLET
AC IN
100W MAX.
230V 50H
Z
SWITCHED
S-
VIDEO
IN OUT
RC-5
REMOTE
CONTROL
REMOTE
CONTROL
REMOTE
CONTROL
IN
OUT
IN
OUT
IN
OUT
EXTERNAL INTERNAL
EXTERNAL INTERNAL
EXTERNAL INTERNAL
1
RC OUT
2
ADVANCED CONNECTING
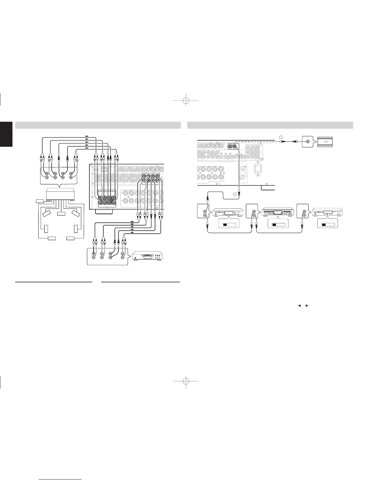
CONNECTING MULTI CHANNEL AUDIO SOURCE
The 7.1CH INPUT jacks are for multichannel audio
source such as a SACD multichannel player, DVD
audio player or external decoder.
If you use these jacks, switch on the 7.1CH INPUT
and set the 7.1CH INPUT level by using the 7.1
channel input level menu. See page 29.
CONNECTING AN EXTERNAL POWER AMPLIFIER
The PREOUT jacks are for connecting external
power amplifiers.
Be sure to connect each speaker to the corresponding
external power amplifier.
POWER
AMPLIFER
DVD AUDIO PLAYER
or
SACD MULTI CHANNEL PLAYER
Center
Front
Left
Front
Right
Surround
Left
Surround
Right
Subwoofer
CONNECTING THE REMOTE CONTROL JACKS
MD DECK
CD RECORDER
q
You can control other Marantz products through
this unit with the remote control by connecting the
REMOTE CONTROL terminals on each unit.
The signal transmitted from the remote control is
received by the remote sensor on this unit. Then the
signal is sent to the connected device through this
terminal. Therefore you only need to aim the remote
at one unit. Also, if a Marantz power amplifier (some
models excluded) is connected to one of these
terminals, the power amplifiers, power switch is
synchronized with this units power switch.
Set the REMOTE CONTROL SWITCH on the units,
other than the main unit to EXT.(EXTERNAL) for
this feature.
CD PLAYER
OPTION
w
Whenever external infrared sensors or similar
devices are connected to RC-5 IN of the SR4500,
be sure to always disable operation of the infrared
sensor on the main unit by using the following
procedure.
1.
Hold down the 7.1CH INPUT button and
MENU button on the front panel at the same
time for five seconds.
2.
The setting IR=ENABLE is shown on the FL
DISPLAY.
3.
Press the or cursor button to change this
to IR=DISABLE.
4.
Press the ENTER button. Once this setting is
made, the infrared sensor on the main unit is
disabled.
Note:
Be sure to set to IR=ENABLE when external
infrared sensors or similar devices are not
connected. Otherwise, the main unit will be
unable to receive remote control commands.
5.
To restore the original setting, perform steps 1
to 4 to set to IR=ENABLE.
Surround
Back Left
Surround
Back Right
SR4500NDFU01ENG12 04.5.14, 4:17 PMPage 14 AdobePageMaker6.5J/PPC

Other manuals for Marantz SR4500

Related product manuals