EasyManua.ls Logo

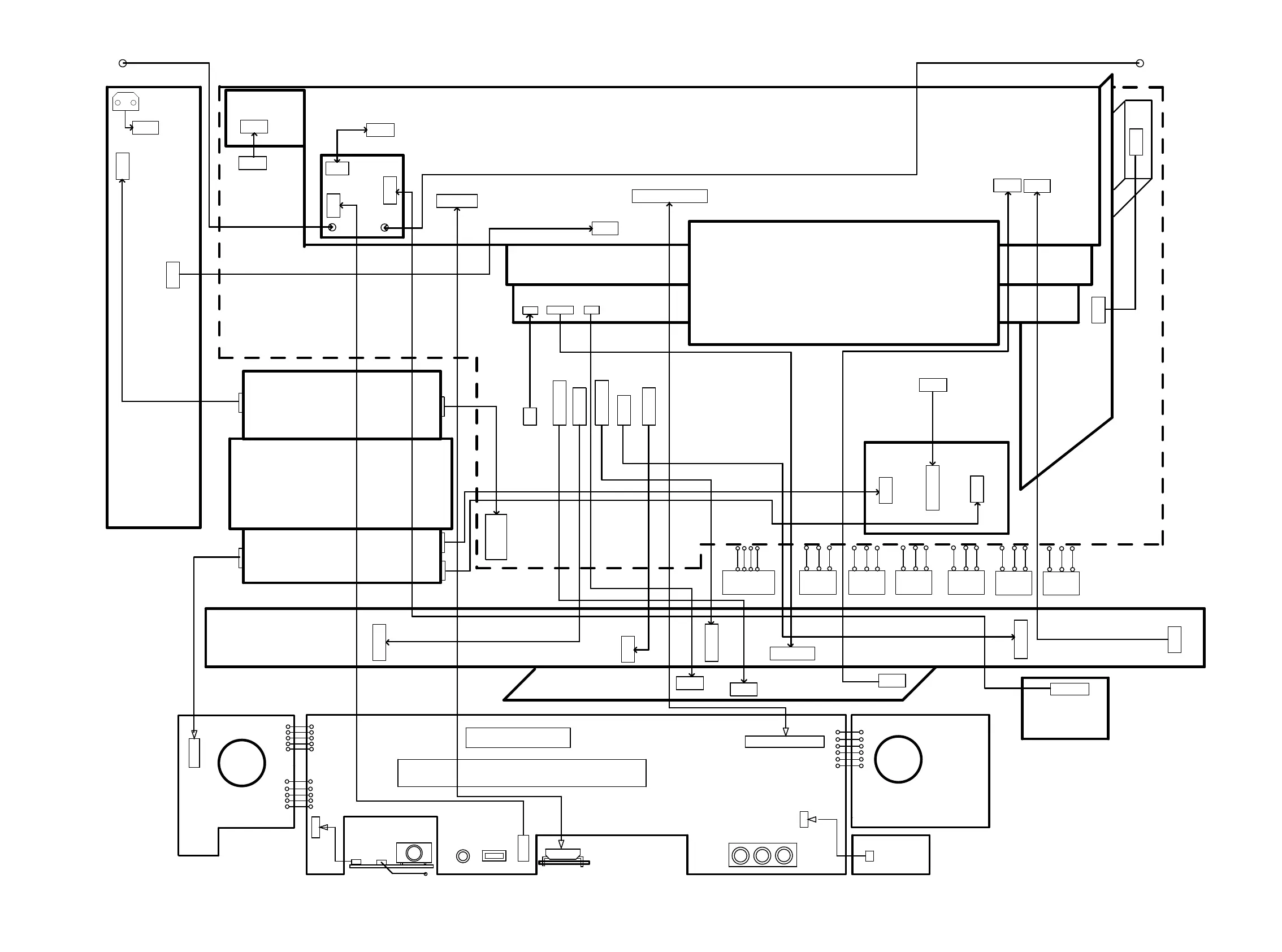
Marantz SR7009/U1B - WIRING DIAGRAM for CX870

Marantz SR7009/U1B
247 pages
Print Icon
To Next Page IconTo Next Page
To Next Page IconTo Next Page
To Previous Page IconTo Previous Page
To Previous Page IconTo Previous Page
Loading...
SMPS PCB
INLET
7812
7907
7805
7807
7905
VIDEO PCB
INPUT PCB
FRONT CNT. PCB
SIDE CNT.PCB
TUNER PACK
AMP PCB
WIRE/7P/2mm/250mm
(CWB1B007250LC)
WAFER/7P/2mm
WAFER
7P2.5mm
CN702
DIGITAL PCB
FRONT WIDE PCB
MAIN TRANS
(S3/S4)
WAFER/3P/2.5mm
(S2)
WAFER/5P/2.5mm
(DIGITAL POWER)
WIRE/7P/2.5mm/250mm
FL PWR
(SEC 5,6)
CN701
BN710
WAFER/5P/2.5mm
CN703
CN704
CUP12625Z_1
WIRE/03P/2mm/100mm
(SBL/R,¡¾HIGHB)
BN706
(S1)
WIRE/03P
3.96mm
/270mm
(AMP PWR)
WIRE/03P
/2.5mm
/320mm
(S3/S4)
(S2)
CN941
WAFER/5P/2.5mm
CN940
WIRE/05P
/2.5mm
/
270mm
WIRE/02P
(PRI.)
FUSE PCB
CUP12642Z
CUP12628-2
CN431
CN903
CUP12637Z
WAFER/7P/2mm
(PROT.LINE)
CN704
CUP12524Z_1
CUP12633Z-1
CUP12686
CUP12631
SPK, REG. PCB
CUP12628-1
CUP12628-3
CN932
WAFER/9P/2mm
7805
(CWB7C003100HC)
3.96mm/160mm
CJP40GA193ZY
CN69B
CJP23GA193ZY
(FRONT HDMI)
FFC WAFER/40P
CN782
WAFER/5P/2.5mm
BN782
WIRE/5P/2.5mm
(CWB1E0051003D)
BN932
9P/2.0mm/220mm
(CWB1B009220HC)
BN704
BN703
BN701
BN702
CN706 BN461
CN971
Bridge Diode
WAFER/2P/7.92mm
CN902
BN903
WIRE/5P/2.5mm
400mm,UL1569#22,105
(CWB7D0054003D)
CN901
WAFER/2P/3.96mm
CN461
FFC WAFER/23P
WAFER/3P/2mm WIRE/13P/2mm
WIRE/7P/2.5mm
CWB7E0071803D
BN702
BN701
WIRE/4P/2.5mm
CWB7E0042203D
WIRE/6P/2.5mm
CWB7E0052203D
WIRE/7P/3.96mm
WAFER
13P/2mm
WAFER/4P2.5mm
H/P PCB
FRONT VFD PCB
FRONT HDMI PCB
WIRE,5P,2.0MM,550mm
BN605A
ENCODER PCB
FUNCTION
WIRE,5P,2.0mm,100mm
BN605B
VOLUME ENCODER B.D
CN605
USB JACK
CN608
BN608
BN321
MIC
FL601
FL602
CUP12433-1
DOOR SW PCB
AUX
WIRE,3P,2.0mm,80mm,UL1007#24
YMAW025-07R
CUP12433-3
CUP12433-2
(CWB1C005100HC)
(CWB8A005550LC)
UL2725#24/#28,1P+2C
(CWB1C003080CC)
WAFER 20017WR-5P
WAFER,20017WR-3P
UL1007#24
CUP12445Z
CN69A
FPC 1.0-11S-40PW
FFC WAFER/40P
FFC WAFER/23P
10022H-23C
BN462
CN961
BN704
WIRE/6P/2.5mm
CWB7E0064003D
BN705
CUP12626
2CH AMP.
BN781
CN705
CN462
CN781
WAFER/5P/2.5mm
(PROT.LINE)
LUG65
WiFi Antenna WiFi Antenna
BT module
BN921
WIRE/11p/2.0mm/350mm
UL1007#26
CUP12666-2
WAFER/4P/2.0mm
CN904
Network PCB
WiFi Antenna
WiFi Antenna
CN916
CN915
CN914
CUP12666Z
WAFER/4P/2.0mm
WAFER/11P/2.0mm
WAFER/5P/2.0mm
CX870 ONLY
WIRING DIAGRAM FOR CX870
131

Table of Contents

Related product manuals