EasyManua.ls Logo

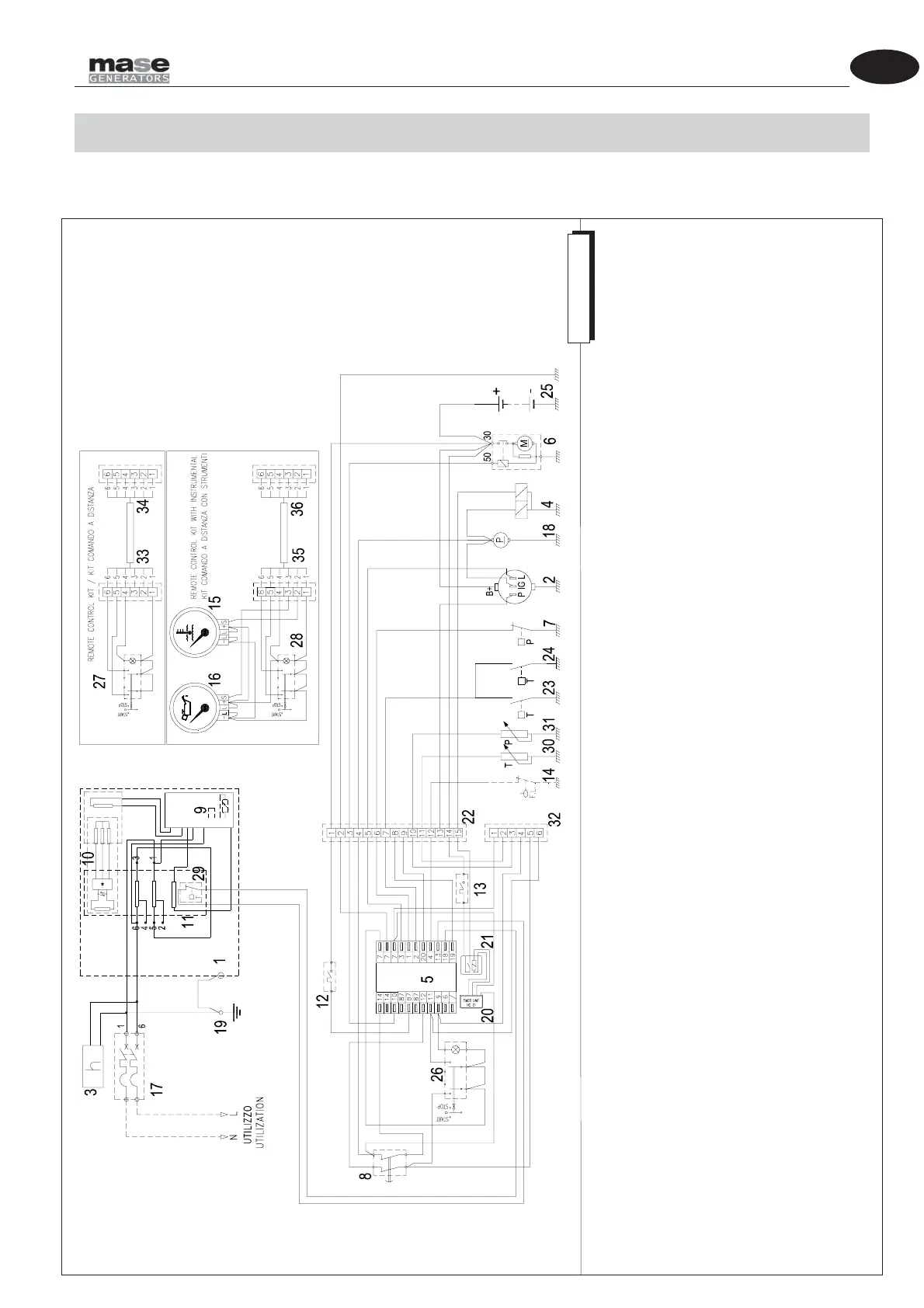
Mase IS 24 - 10 SCHEMI ELETTRICI; 10.1 SCHEMA ELETTRICO IS 24 - 27

Mase IS 24
Print Icon
To Next Page IconTo Next Page
To Next Page IconTo Next Page
To Previous Page IconTo Previous Page
To Previous Page IconTo Previous Page
Loading...
IS 24 - 27 - 25T - 30T - 34T
- 45
I
I
Cod.45862
60HZ
5A
5B
5C
7
A.V.R.
3
3A
4A
4
6
5
2
1
10 SCHEMI ELETTRICI
19 COLLEGAMENTO DI TERRA
20 UNITA TIMER
21 RELE’
22 CONNETTORE 15P
23 TERMOSTATO MOTORE
24 TERMOSTATO MOTORE
25 BATTERIA
26 PULSANTE START-STOP
27 PULSANTE START-STOP
28 PULSANTE START-STOP
29 TERMOSTATO ALTERNATORE
30 SENSORE TEMPERATURA
31 SENSORE PRESSIONE OLIO
32 CONNETTORE 6P
33 CONNETTORE 6P
34 CONNETTORE 6P
35 CONNETTORE 6P
1 ALTERNATORE
2 ALTERNATORE RICARICA BATTERIA
3 CONTAORE
4 ELETTROMAGNETE STOP
5 MODULO PROTEZIONE MOTORE
6 MOTORINO DI AVVIAMENTO
7 PRESSOSTATO OLIO
8 PULSANTE ARRESTO DI EMERGENZA
9 REGOLATORE ELETTRONICO DI TENSIONE
10 ROTORE
11 STATORE
12 TERMICO
13 TERMICO
14 GALLEGGIANTE DISPERSIONE CARBURANTE
15 STRUMENTO INDICATORE TEMPERATURA
16 STRUMENTO INDICATORE PRESSIONE OLIO
17 MAGNETOTERMICO 2P
18 POMPA COMBUSTIBILE
36 CONNETTORE 6P
10.1 SCHEMA ELETTRICO IS 24 - 27

Table of Contents

Related product manuals