EasyManua.ls Logo

Mhouse WT1S - Checks and Procedures Prior to Installation; Suitability of Gate and Environment; Product Application Limits

Mhouse WT1S
46 pages
Print Icon
To Next Page IconTo Next Page
To Next Page IconTo Next Page
To Previous Page IconTo Previous Page
To Previous Page IconTo Previous Page
Loading...
––– STEP 3 –––
CHECKS AND PROCEDURES PRIOR
TO INSTALLATION
3.1 - CHECKING SUITABILITY OF GATE TO BE AUTO-
MATED AND RELATIVE ENVIRONMENT
Ensure that the mechanical structure of the gate complies with current
national standards and that it is suitable for automation. For this check,
refer to the information specified on the gate dataplate. Important -
This “WT” system cannot be used to automate a gate that is not already
efficient and safe; furthermore it cannot solve defects caused by incor-
rect gate installation or poor maintenance.
Ensure that the gate leafs move regularly and smoothly, by performing
the following test: manually move the leafs in both directions and ensure
that movement is free of friction throughout all points of travel (there
must be no points requiring a different level of force).
Ensure that the gate leafs are perfectly balanced, by performing the fol-
lowing test: manually move the leafs to any position; take away the
hands and ensure that the leafs remain stationary.
If there is a fixed obstacle in the zone of the column (where the gearmo-
tor is to be installed) it is important to check whether this will enable
complete arm rotation and therefore the maximum leaf opening angle.
For this check, refer to point 5 of paragraph 3.2.
In the vicinity of the post where the gearmotor is to be installed, ensure
that there is sufficient space to perform the manual gearmotor release
procedure.
Ensure that the surfaces chosen for device installation are solid and can
guarantee a stable fixture.
Ensure that all devices to be installed are in a sheltered location and
protected against the risk of accidental impact.
Ensure that the area is fitted with floor-mounted stops (not supplied), to
limit opening and closing.
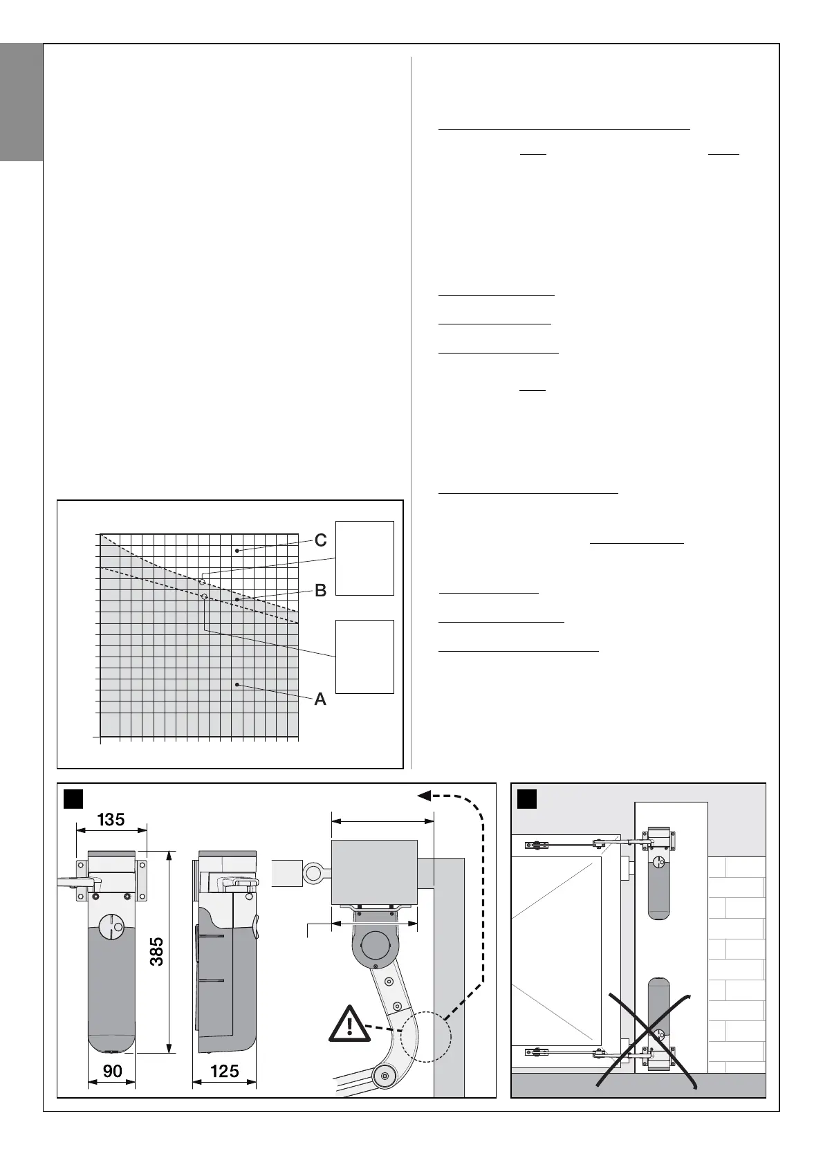
3.2 - CHECKING THE PRODUCT APPLICATION LIMITS
1 - Suitability of the product for gate automation. For this check,
refer to Graph 1 as follows:
a) - measure the width of the gate leaf and determine its weight.
b) - note these two values in Graph 1 and check the point at which
the two values intersect:
if the point is located within area “A” = the gate can be automat-
ed using standard length arms (supplied as standard) or short arms
(the length of the arm is established during the phase prior to installa-
tion - paragraph 3.4);
if the point is located within area “B” = the gate can be automat-
ed using standard length arms (supplied as standard);
if the point is located within area “C” = this product cannot be
used to automate the gate.
2 - Maximum leaf height. The “WT” system can automate leafs with a
height of up to 200 cm.
3 - Maximum leaf width. The “WT” system can automate leafs with a
width of up to 160 cm (see Graph 1).
4 - Maximum leaf weight. The maximum weight of the leaf depends
on its length. To calculate the maximum admissible weight with the
“WT” system, proceed as follows:
a) - measure the width of the gate leaf and note the value in Graph 1.
Starting from this value, trace a vertical line until it intersects with the
two traced lines.
b) - trace a horizontal line from each point of intersection, until the two
maximum admissible weights are shown (depending on the length of
the arm used to install the gearmotor: with standard length arms, the
weight may vary from 110 to 180 Kg; with short arms, the weight may
vary from 100 to 150 Kg).
5 - Gearmotor overall dimensions
. On the basis of the overall
dimensions stated in fig. 2, check that there is sufficient space on the
leaf and post to enable gearmotor installation. In particular, ensure the
following:
• the width of the post must be greater than 80 mm (fig. 2). Caution!
– any lower widths would prevent installation of the gearmotor.
• the distance between the edge of the post (the side closest to the
hinge pin) and any fixed obstacle present behind the post, must be
greater than 120 mm (fig. 2). Caution! – any lower widths would pre-
vent installation of the gearmotor.
6 - Gearmotor positioning. Never install the gearmotor upside down
(see fig. 3).
7 - Maximum leaf opening angle. If the gearmotor is installed with a
standard length arm (supplied as standard) a leaf opening angle of
110° is possible. Otherwise, if the short arm is used, the leaf opening
angle is reduced to 90°. The length of the arm is established during
the phase prior to installation - see paragraph 3.4.
2 3
180
160
140
120
100
80
60
40
20
0,8
0
11,21,41,60,9 1,1 1,51, 3
GRAPH 1 (see paragraph 3.2)
WIDTH (m)
WEIGHT (kg)
line of
maximum
leaf weight:
with stan-
dard arm
line of
maximum
leaf weight:
with short
arm
80 mm
minimum
120 mm
minimum
YES
NO
English
4 – English

Table of Contents

Related product manuals