EasyManua.ls Logo

Microcare LCD MPPT 20 - 8 Programming the MPPT; Float Voltage

Microcare LCD MPPT 20
47 pages
Print Icon
To Next Page IconTo Next Page
To Next Page IconTo Next Page
To Previous Page IconTo Previous Page
To Previous Page IconTo Previous Page
Loading...
29
Programming the MPPT
FLOAT CHARGE VOLTAGE
= 13.8v DEFAULT
press CHRG to save
press DATA to change
MICROCARE MPPT 40Amp
Panel is LOW
. . . MPPT sleeping . . .
Battery = 25.0V
8. Programming the MPPT
All settings are for 12 Volt nominal systems.
Divide the required settings:
/ 2 for 24 Volt Systems. / 3 for 36 Volt Systems. / 4 for 48 Volt systems.
Eg: If the float voltage for a 48V system is 54,2V, the setting on the MPPT = (54,2/4) =13,8V
Set the float voltage on the MPPT to 13,8V
Please consult your battery supplier for the correct battery charging specifications before
commencing with the MPPT programming. Incorrect charging can damage batteries. Make
note of the following:
Battery float voltage, boost voltage and equalisation voltage. Note that some battery types cannot
be equalised.
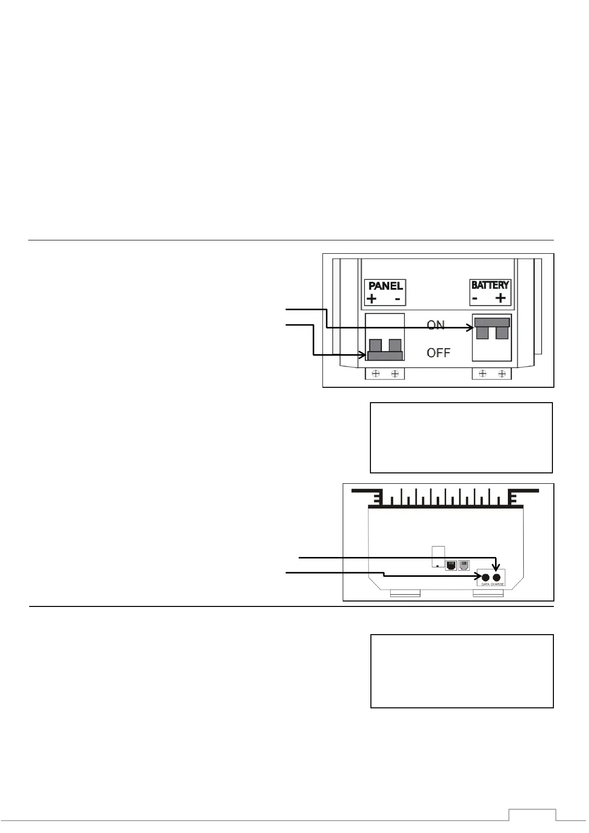
Programming mode
To enter the programming mode the MPPT must be
connected to the batteries:
The Battery Circuit Breaker must be turned ON
The Panel Circuit Breaker must be turned OFF
.
When the Panel circuit breaker is turned off the
MPPT will enter the sleep mode and the MPPT must be in
SLEEP MODE to enter the programming mode
Press and hold the <CHARGE> button for 6 seconds
The Screen in section 8.1 will be displayed
8.1 Float Voltage
The Float voltage can be changed from 12.4 to 14.5 volts in
0.1 volt increments per 12V battery pack.
Default Value is 13.8V.
Obtain the correct float charge voltage from your battery
supplier
Example: For a 48V battery bank with a float voltage of 55.2V
the setting on the MPPT must be set at 13,8V
Press the <DATA> button to change the battery FLOAT VOLTAGE
Press <CHARGE> to save the selected FLOAT VOLTAGE
The screen changes to: BOOST CHARGE VOLTAGE
Charge Button
Data Button

Table of Contents