EasyManua.ls Logo

Mitsubishi Electric Q170MSCPU-S1 - 4 WIRING; 4.1 Connecting to the Power Supply

Mitsubishi Electric Q170MSCPU-S1
42 pages
To Next Page IconTo Next Page
To Next Page IconTo Next Page
To Previous Page IconTo Previous Page
To Previous Page IconTo Previous Page
Loading...
35
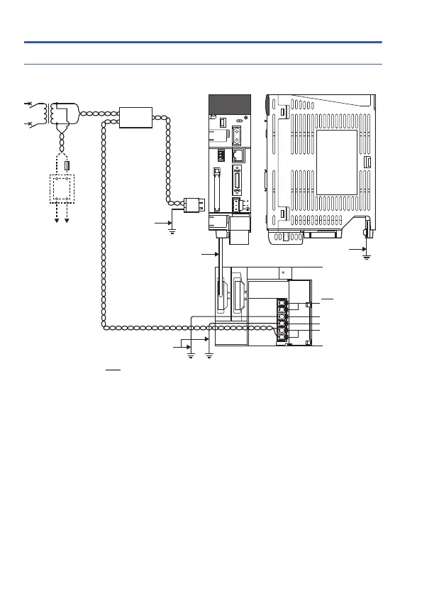
4 WIRING
4.1 Connecting to the Power Supply
The following diagram shows the wiring example of power lines, grounding lines, etc. to the
Motion controller.
*1 The operation of the ERR terminal is always OFF (open).
Grounding
Ground wire
Grounding
Ground wire
Extension cable
ERR
Extension base unit (Q68B)
24V
DC
Q61P I/O module
24VDC
100/200VAC
AC DC
AC
AC
DC
24VDC
Connect to power
input terminals of
I/O signals that
require 24VDC.
Fuse
Ground wire
LG
INPUT
100-240VAC
FG
*1
Grounding

Other manuals for Mitsubishi Electric Q170MSCPU-S1

Related product manuals