EasyManua.ls Logo

Mitsubishi QJ71C24/-R2 - Appendix 5 External Dimensions

Mitsubishi QJ71C24/-R2
358 pages
To Next Page IconTo Next Page
To Next Page IconTo Next Page
To Previous Page IconTo Previous Page
To Previous Page IconTo Previous Page
Loading...
App. - 18 App. - 18
MELSEC-Q
APPENDIX
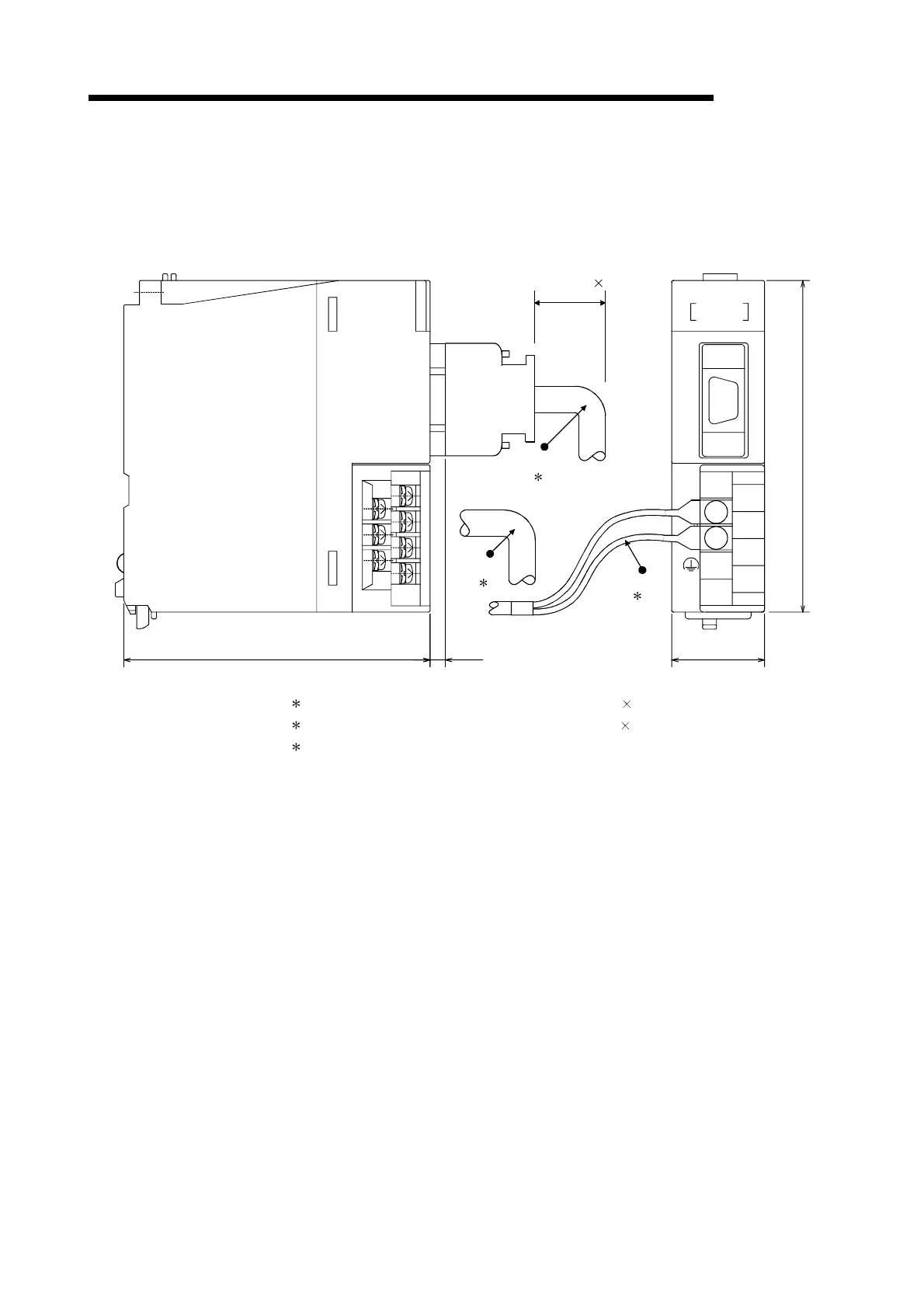
Appendix 5 External Dimensions
(1) QJ71C24N, QJ71C24
The following diagram shows the QJ71C24 and QJ71C24N. The dimensions of
the QJ71C24 are the same as QJ71C24N (except for model name).
R1
( 1)
90 (3.54)
98 (3.86)
4.5
(0.18)
ERR.
CH2
CH1
SD
RD
NEU.
SD
NEU.
RD
RUN
5
3
1
6
7
(FG)
RS-232
/485
RS-422
CH2
RDB
RDA
SDB
SDA
CH1
27.4 (1.08)
QJ71C24N
r1
( 3)
R2
Cable diameter 4 + 10
( 2)
(Unit: mm (in.))
1: R1 (Bending radius near terminal block): Cable diameter 4
2: R2 (Bending radius near connector) : Cable diameter 4
3: r1 (Bending radius near crimp contact) : Connectable as long as not bended extremely

Table of Contents

Related product manuals