EasyManua.ls Logo

Mitsubishi QX10 - QY41 H Transistor High-Speed Output Module (Sink Type)

Mitsubishi QX10
158 pages
To Next Page IconTo Next Page
To Next Page IconTo Next Page
To Previous Page IconTo Previous Page
To Previous Page IconTo Previous Page
Loading...
3 - 8 3 - 8
MELSEC-Q
3 OUTPUT MODULE SPECIFICATIONS
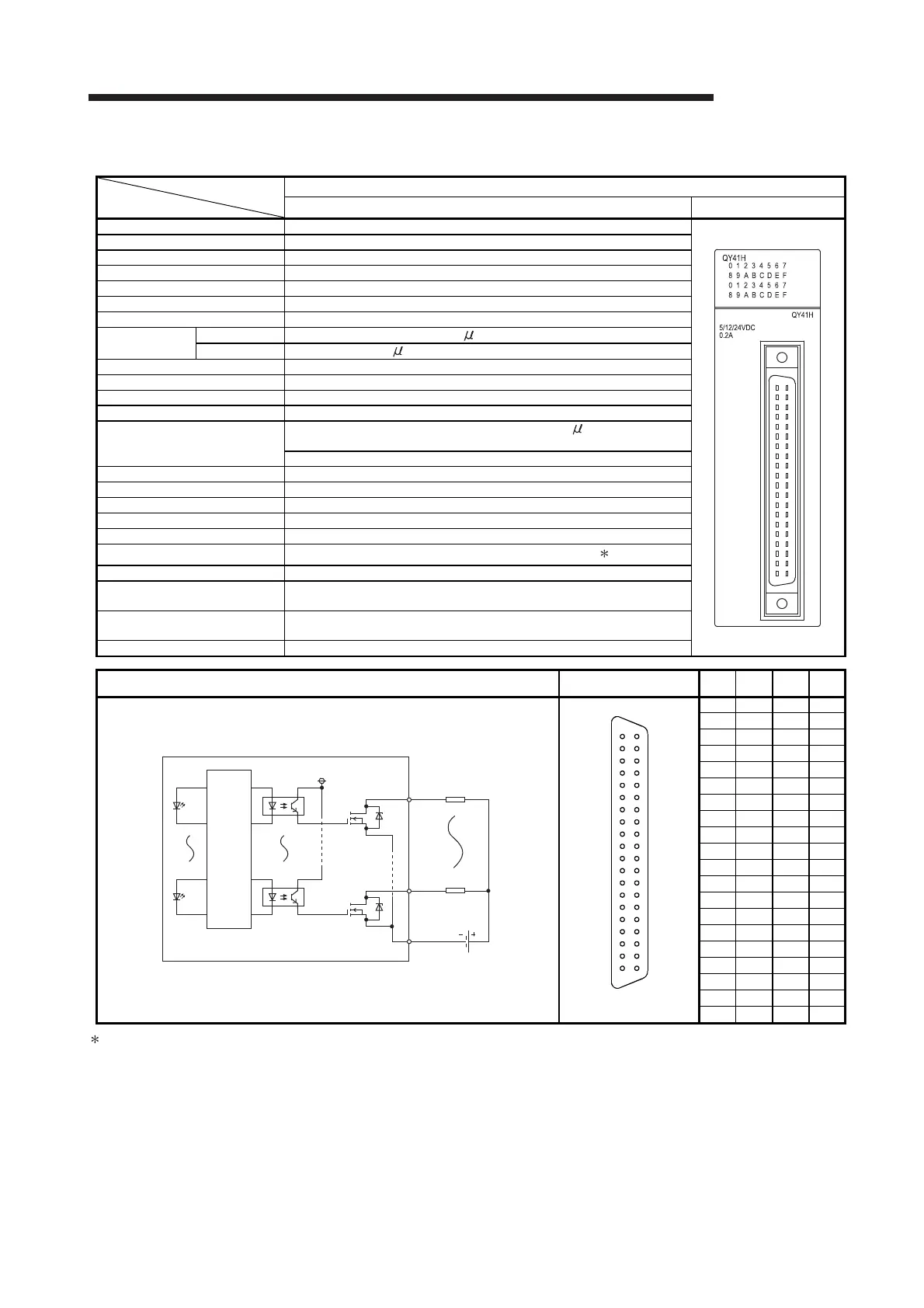
3.7 QY41H Transistor High-speed Output Module (Sink Type)
Type
Specifications
Transistor high-speed output module (Sink type)
QY41H Appearance
Number of output points 32 points
Isolation method Photocoupler
Rated load voltage 5-24VDC (+20/-15%)
Maximum load current 0.2A/point, 2A/common
Maximum inrush current 0.7A, 10ms or less
Leakage current at OFF 0.1mA or less
Maximum voltage drop at ON 0.1VDC (TYP.) 0.1A, 0.2VDC (MAX.) 0.1A
Response time
OFF to ON 2 s or less
ON to OFF 2 s or less (rated load, resistive load)
Surge suppressor Zener diode
Fuse None (Attaching a fuse to external wiring is recommended.)
Dielectric withstand voltage 560VAC rms/3 cycles (altitude 2000m)
Insulation resistance 10M or more by insulation resistance tester
Noise immunity
By noise simulator of 500Vp-p noise voltage, 1 s noise width
and 25 to 60Hz noise frequency
First transient noise IEC61000-4-4: 1kV
Protection degree IP2X
Common terminal arrangement 32 points/common (common terminal: A01, A02)
Number of occupied I/O points 32 points (I/O assignment is set as a 32-point output module.)
Operation indicator ON indication (LED)
External connections 40-pin connector
Applicable wire size
0.088 to 0.3mm
2
(For A6CON1 or A6CON4) 1
Applicable connector A6CON1, A6CON2, A6CON3, A6CON4 (optional)
Applicable connector/terminal
block converter module
A6TBXY36, A6TBXY54
Internal current consumption
(5VDC)
370mA (TYP. all points ON)
Weight 0.10kg
External connection Pin-Outs
Pin
No.
Signal
No.
Pin
No.
Signal
No.
Module front view
B20 Y00 A20 Y10
B19 Y01 A19 Y11
B18 Y02 A18 Y12
B17 Y03 A17 Y13
B16 Y04 A16 Y14
B15 Y05 A15 Y15
B14 Y06 A14 Y16
B13 Y07 A13 Y17
B12 Y08 A12 Y18
B11 Y09 A11 Y19
B10 Y0A A10 Y1A
B09 Y0B A09 Y1B
B08 Y0C A08 Y1C
B07 Y0D A07 Y1D
B06 Y0E A06 Y1E
B05 Y0F A05 Y1F
B04 Vacant A04 Vacant
B03 Vacant A03 Vacant
B02 Vacant A02 COM
B01 Vacant A01 COM
1: When using A6CON2 or A6CON3, refer to Chapter 7.
LED
LED
Internal
circuit
Load
Load
A05
A01,A02
B20
5/24VDC
A
2
0
A
1
9
A
1
8
A
1
7
A
1
6
A
1
5
A
1
4
A
1
3
A
1
2
A
11
A
1
0
A9
A8
A7
A6
A5
A4
A3
A2
A1
B20
B19
B18
B17
B16
B15
B14
B13
B12
B11
B10
B9
B8
B7
B6
B5
B4
B3
B2
B1

Table of Contents

Related product manuals