EasyManua.ls Logo

OMA 504A - Page 61

OMA 504A
75 pages
Print Icon
To Next Page IconTo Next Page
To Next Page IconTo Next Page
To Previous Page IconTo Previous Page
To Previous Page IconTo Previous Page
Loading...
Fig.57-Abb.57
Fig.58-Abb.58
Fig.59-Abb.59
·
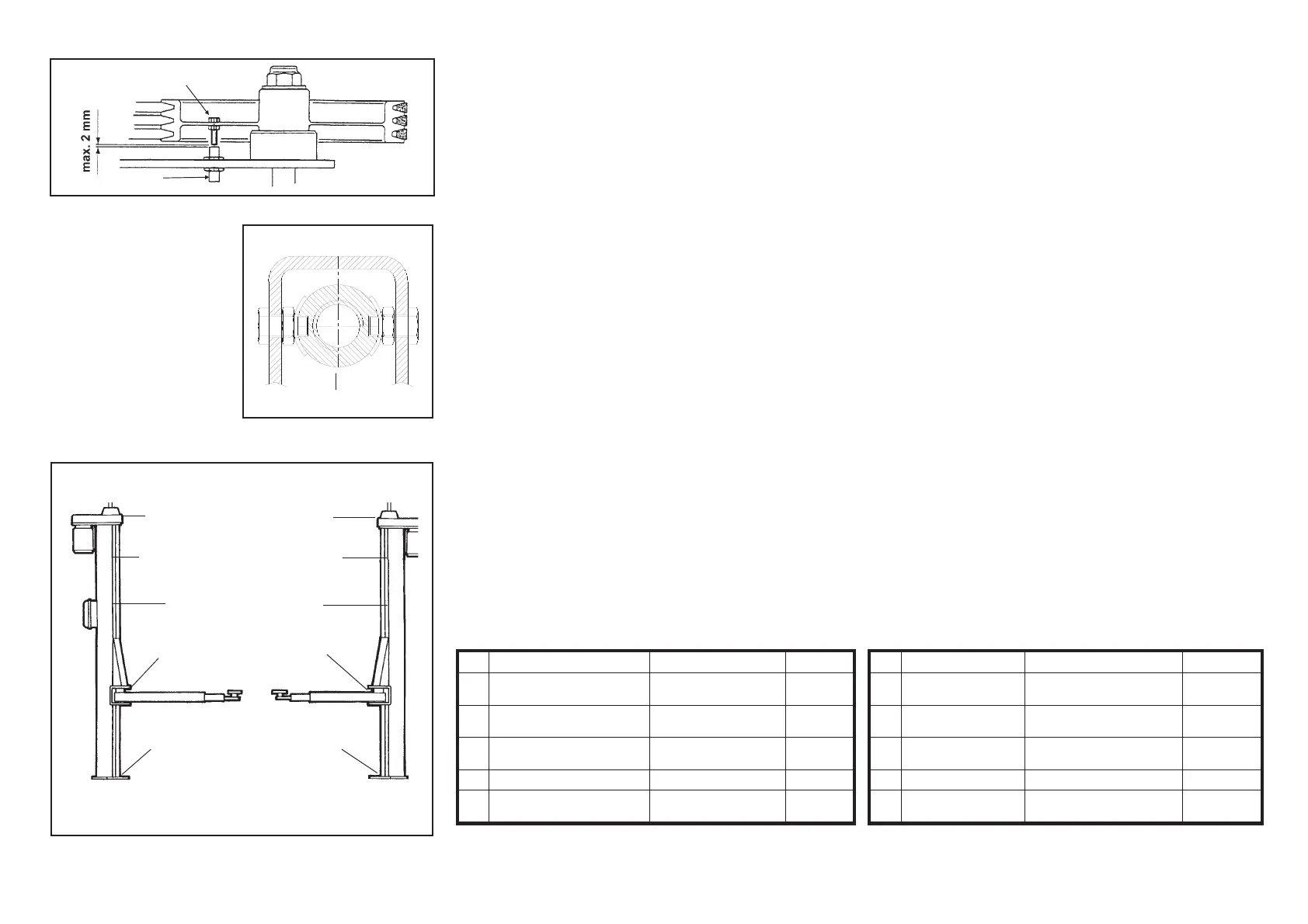
Verificarecheladistanzafrailsensore(A)postosullapuleggiadi
ognimotoreelavite(B)diletturanonsiasuperiorea2mm.(fig.57).
Diversamentechiamareilcentroassistenzaautorizzatoperfarcom
-
pierelaregolazione.
·
Verificare,conchiavedinamometrica,chelacoppiadiserraggiodei
dadidibloccaggiodellachiocciolaportante(Fig.58pos.1)siadicirca
20Nm.
·
Verificareilserraggioditutteleviti
·
Verificarel’efficienzadelsistemadibloccaggiobracci.
·
Verificareilfunzionamentodeidispositividisicurezza(cavodisicu
-
rezza,finecorsaetc.)
OGNI12MESI...
· Controllovisivodituttiicomponentidicarpenteriaedeimeccanismi
alfinediverificarel’assenzadiinconvenientiedeventualianomalie.
· Fareffettuaredaparteditecnicispecializzati(INTERPELLAREIL
CENTROASSISTENZAAUTORIZZATO)uncontrollodell’impianto
elettrico,comprensivodimotore,cavi,finecorsa,quadrocomando.
SCHEMADILUBRIFICAZIONEPERIODICA
Lubrificarelepartiindicateinfig.59,rispettandoiperiodiediltipodi
grassospecificatinellatabella.
Dove Con Quando
l
Guidediscorrimento OlioIPMELLANAISO
VS320
1mese
n
Sistemadibloccaggio
bracci
GrassoTITANEP3 3mesi
u
Ingrassatorecuscinetto
superiore
GrassoTITANEP3 3mesi
â
Bussolainferiorevite GrassoTITANEP3 3mesi
o
Vite OlioIPMELLANA
ISOVS320
3mesi
·
Makesurethatthedistancebetweenthesensor(A)onthepulleyof
eachmotorandthereadingscrew(B)isnogreaterthan2mm
(Fig.57).Otherwise,callyourauthorizedservicecentretomakethe
adjustment.
·
Usingatorquewrenchsettoca.20Nm,checkthenuts(pos.1
Fig.58)aretightenedenough.
·
Checktightnessofallscrews.
·
Checkthatarmlockingsystemisworkingproperly.
·
Checkoperationofsafetydevices(safetycable,limitswitches,etc.).
EVERYTWELVEMONTHS
· Visualinspectionofallstructuralpartsandmechanismstoverifyab-
senceofdamageormalfunctioning.
· Testingoftheelectricalsystem(motor,wiring,limitswitches,control
panel)byspecialisedtechnicians.(CALLYOURAUTHORI-SED
SERVICECENTRE).
PLANOFPERIODICALLUBRICATION
Lubricatethepartsshownfig.59inthedrawing,respectingthefre
-
quencyandtypeofgreasespecifiedinthetable.
Where What When
l
Rollerguides OilIPMELLANA
ISOVS320
1month
n
Armslockingsystem GreaseTITANEP3 3months
u
Topbearinghousing GreaseTITANEP3 3months
â
Screwlowerbush GreaseTITANEP3 3months
o
Screw OilIPMELLANA
ISOVS320
3months
59
1
l
u
n
â
l
u
n
â
o
o
B
A

Related product manuals