EasyManua.ls Logo

Omron BA75T - Page 99

Omron BA75T
104 pages
Print Icon
To Next Page IconTo Next Page
To Next Page IconTo Next Page
To Previous Page IconTo Previous Page
To Previous Page IconTo Previous Page
Loading...
9 References
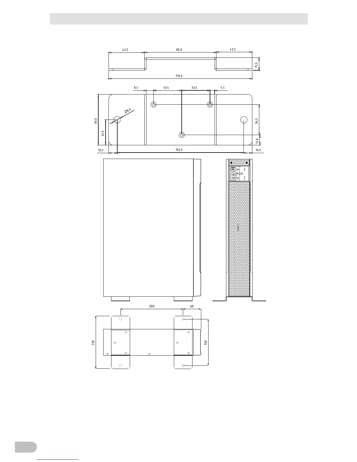
9-2 Dimensions
Upright stand for BA100R (BAP100R)
BA75T/BA100T/BA100R
98

Table of Contents

Related product manuals