EasyManua.ls Logo

Omron Q2A-A4031-AAA - Dynamic Braking Option Overload Protection

Omron Q2A-A4031-AAA
844 pages
To Next Page IconTo Next Page
To Next Page IconTo Next Page
To Previous Page IconTo Previous Page
To Previous Page IconTo Previous Page
Loading...
Electrical Installation
3
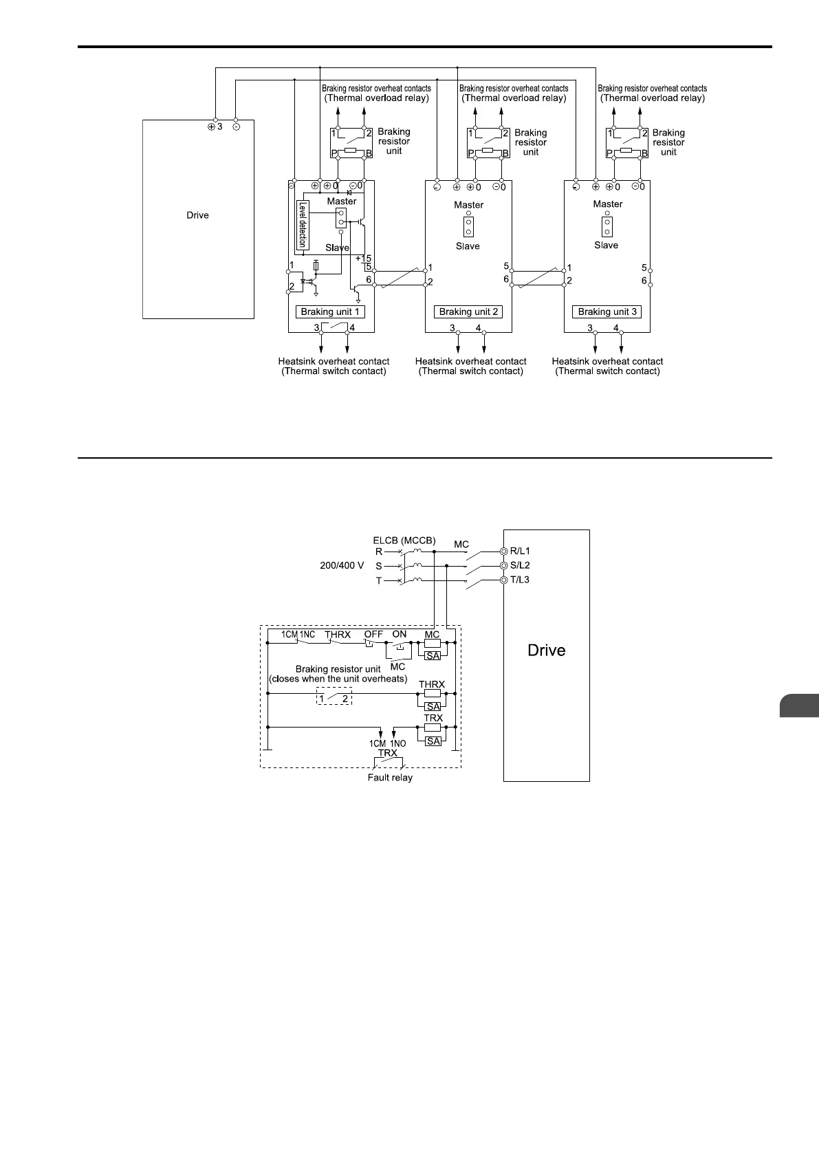
3.9 Braking Resistor Installation
SIEPYEUOQ2A01A AC Drive Q2A Technical Manual 101
Figure 3.54 Connect Braking Units in Parallel
Braking units have connectors to select master or slave. On the first braking unit, select the master side. On the
second unit and all subsequent units, select the slave side.
Dynamic Braking Option Overload Protection
To prevent overheating the dynamic braking option, set a sequence to de-energize the drive at the trip contacts of
the thermal overload relay.
Figure 3.55 Power Supply Interrupt for Overheat Protection Example
WARNING! Fire Hazard. When you use a braking unit, use a thermal relay on the braking resistors and set a fault contact
output for the braking resistor unit to disconnect drive main power through an input contactor. Incorrect braking circuit
protection can overheat the resistors and cause death or serious injury by fire.

Table of Contents

Other manuals for Omron Q2A-A4031-AAA

Related product manuals