EasyManua.ls Logo

Omron Q2A-A4031-AAA - Page 332

Omron Q2A-A4031-AAA
844 pages
To Next Page IconTo Next Page
To Next Page IconTo Next Page
To Previous Page IconTo Previous Page
To Previous Page IconTo Previous Page
Loading...
8.4 Replace a Cooling Fan and Circulation Fan
332 SIEPYEUOQ2A01A AC Drive Q2A Technical Manual
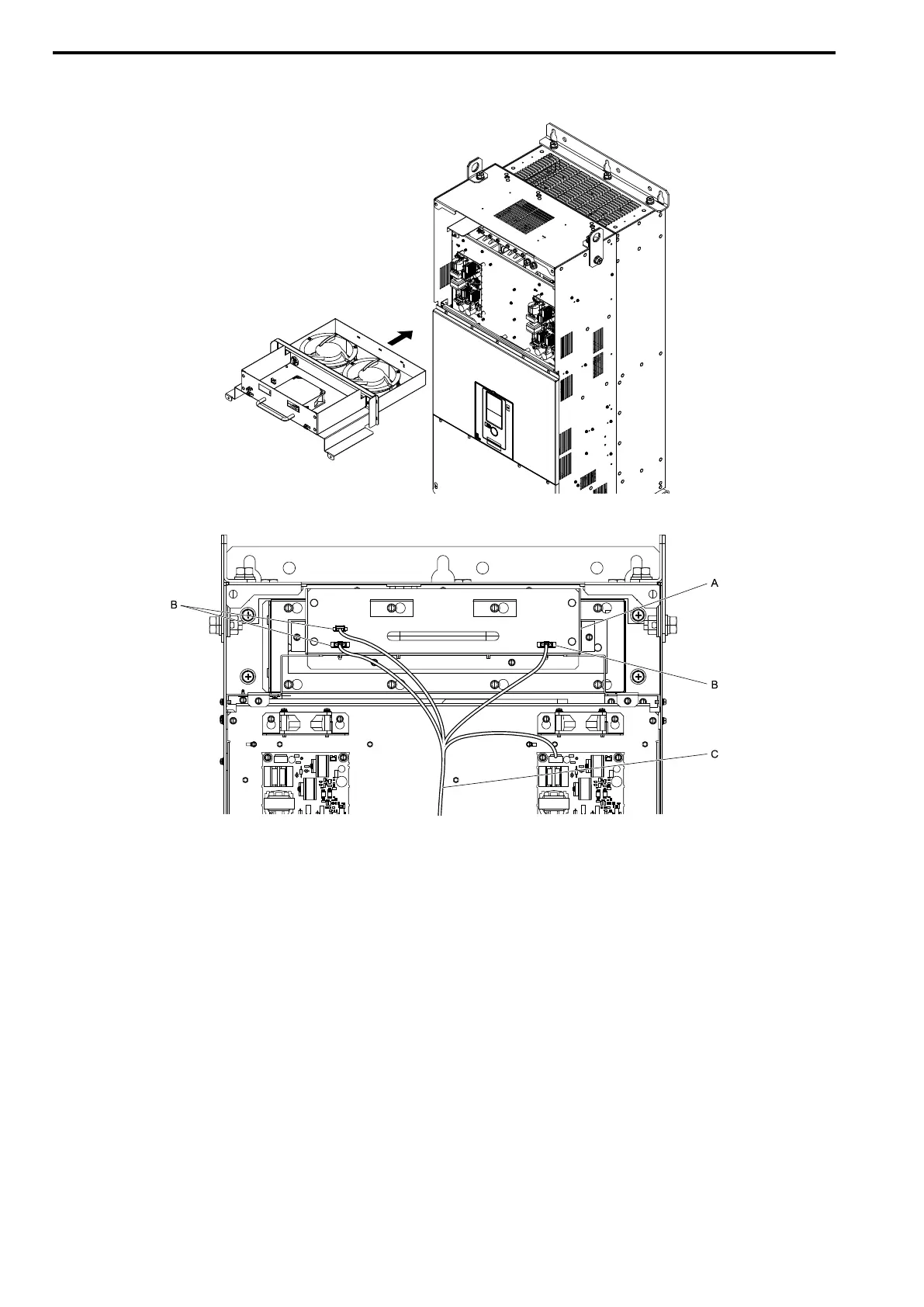
4. Put the fan unit into the specified location and use screws to safety it to the drive.
Tighten the screws to a tightening torque of 1.96 Nm to 2.53 Nm (17.35 lb.in. to 22.39 lb.in.).
5. Connect the fan cable to the fan connector.
A - Fan unit
B - Fan connector
C - Fan cable
Figure 8.54 Connect Cooling Fan Connectors
6. Reattach the drive cover.
7. Energize the drive and set o4-03 = 0 [Fan.Oper Setting = 0 h] to reset the cooling fan operation time.
Remove the Circuit Board Cooling Fan
Remove the drive cover.
CAUTION! Crush Hazard. Only loosen the cover screws. Do not fully remove the cover screws. Make sure that the covers do
not fall. Missing cover screws can cause the cover to fall and cause injury.

Table of Contents

Other manuals for Omron Q2A-A4031-AAA

Related product manuals