EasyManua.ls Logo

Omron Q2A-A4031-AAA - Page 368

Omron Q2A-A4031-AAA
844 pages
To Next Page IconTo Next Page
To Next Page IconTo Next Page
To Previous Page IconTo Previous Page
To Previous Page IconTo Previous Page
Loading...
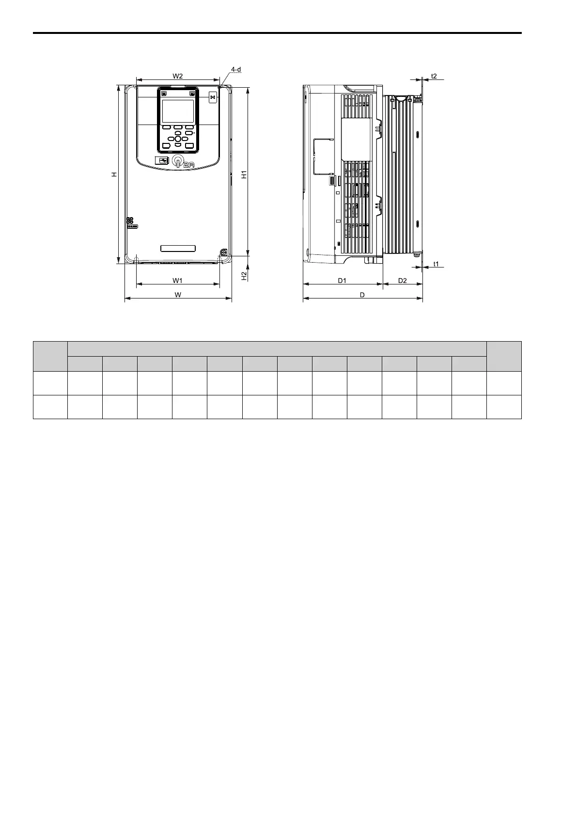
10.6 Drive Exterior and Mounting Dimensions
368 SIEPYEUOQ2A01A AC Drive Q2A Technical Manual
4031, 4038
Figure 10.2 Exterior and Mounting Dimensions Diagram 2
Table 10.19 400 V class (IP20)
Model
Dimensions mm (in.)
Weight
kg (lb.)
W H D D1 D2 W1 W2 H1 H2 t1 t2 d
4031
180
(7.09)
300
(11.81)
202
(7.95)
134
(5.28)
68
(2.68)
140
(5.51)
140
(5.51)
284
(11.18)
8
(0.315)
1.6
(0.063)
1.6
(0.063)
M5
6
(13.23)
4038
180
(7.09)
300
(11.81)
202
(7.95)
134
(5.28)
68
(2.68)
140
(5.51)
140
(5.51)
284
(11.18)
8
(0.315)
1.6
(0.063)
1.6
(0.063)
M5
6
(13.23)

Table of Contents

Other manuals for Omron Q2A-A4031-AAA

Related product manuals