EasyManua.ls Logo

Panasonic AFP7DA4H - Dimensions

Panasonic AFP7DA4H
56 pages
Print Icon
To Next Page IconTo Next Page
To Next Page IconTo Next Page
To Previous Page IconTo Previous Page
To Previous Page IconTo Previous Page
Loading...
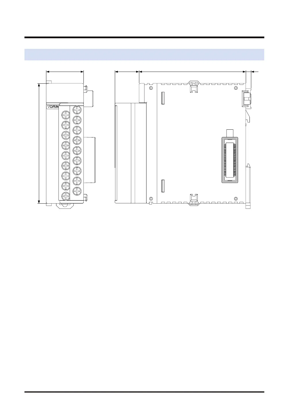
8.4 Dimensions
90
28
(18)
80 4
(Unit: mm)
8.4 Dimensions
8-8 WUME-FP7AOH-03

Table of Contents