EasyManua.ls Logo

Panasonic DMR-E53EG - Page 105

Panasonic DMR-E53EG
285 pages
Print Icon
To Next Page IconTo Next Page
To Next Page IconTo Next Page
To Previous Page IconTo Previous Page
To Previous Page IconTo Previous Page
Loading...
H
L
H
LOGIC
IIC BUS
SECTION
TIMER
FROM
22
21
28
IC7501-
IIC CLK
29
IC7501-
IIC DATA
CCD
CCDC
AMP
MIX
BUFFER
BUFFER
Lch
B
A
B
A
B
A
SW1SW3 SW2
Lch
B
A
B
A
B
A
SW1SW2SW3
(L CH)
(R CH)
SELECTOR SW
INPUT
(Rch)
(Lch)
LPFLPF
BUFBUFBUF
BUF
BUF
LPF
LPF
AMP
AMP
AMP
AMP
LPF LPF
BUFBUFBUF
AMP
AMP
LOGIC
IIC BUS
AMP
AMP
SECTION
TIMER
FROM
21
20
29
IC7501-
IIC DATA
28
IC7501-
IIC CLK
EXT.MUTE CTL.
1
E55EB
NICAM DECODER P.C.B.
(NICAM/A2)
L OUT
R OUT
SIF
IN
MONO
OUT
SIF
22 25
PK7701 PK7301
1
TIMER SEC.
FROM
AUDIO AUDIO
2
RFC A OUT
P.C.B.
DIGITAL
FROM
QR4012
SCART AUDIO MUTE
(A/V BUFFER AND SWITCH)
L CH IN
R CH INDECODER R
DECODER L
DAR
26
DAL
25
P.C.B.
DIGITAL
FROM
RF OUT
18
52
IC7501-
RFC A MUTE
QR7406,7407
MUTE
3
PK7301PK7701 PK7302
PK7302
IN
AUDIO
2
OUT1
MIX R
OUT1
MIX L
9
CIRCUIT
MUTE
QR3909
Q3908,
D3903
MUTE
Q3909
MUTE
Q3910
Q4004
QR4002-QR4005
CIRCUIT
MUTE
SECTION
TIMER
FROM
57
20
IC7501-
XSCART MUTE
IC7501-
XTMUTE
D4006
D4005
(AUDIO SIGNAL PROCESSOR)
MUTE
Q4009
MUTE
Q4008
Q4007
MUTE
MUTE
Q4006
XDMUTE
70
P7402P9001
MUTE OUT
SCART
2
PS3903PP7403
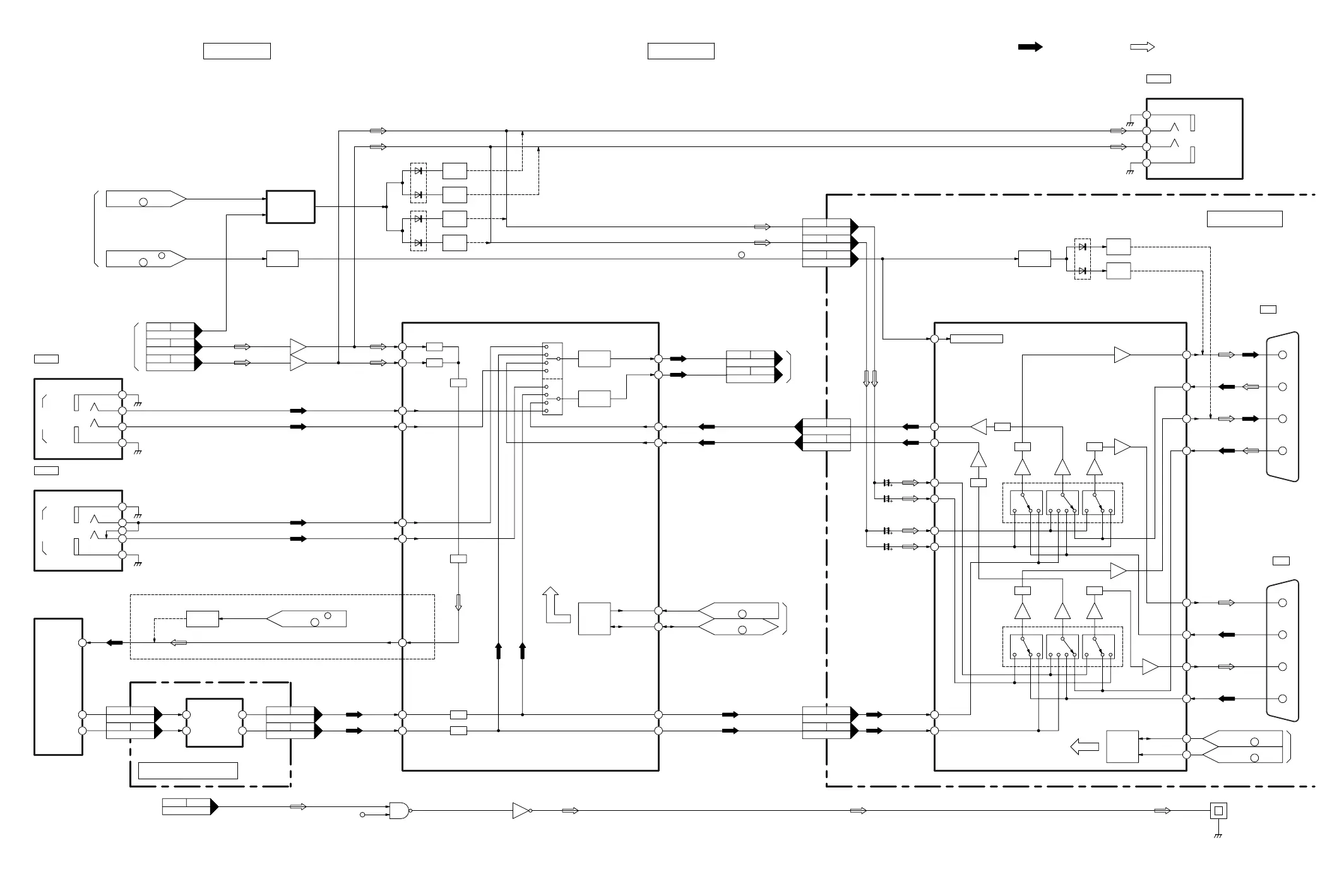
DMR-E53EG,E55EB/EG/EBL/EP
Analog Audio Block Diagram
IC3901
14
12
PS3903PP7403
PS3903PP7403
6
4
PS3903PP7403
PS3903PP7403
PS3903PP7403
10
8
PS3903PP7403
48
50
P9001P7402
P9001P7402
DECODER R
DECODER L
L3 IN(L)
A ADC L
A ADC R
L3 IN(R)
AV3
AV4
REAR JACK
JK3001
FRONT JACK
JK7501
TUNER
DU7402
OUT
AUDIO
3821
6
4
PK7702
PK7702
AV4
REAR JACK
JK3001
TUNER L
TUNER R
DECODER L
DECODER R
R CH OUT
L CH OUT
L3 IN L
L3 IN R
L2 IN R
L2 IN L
A4 IN L
A4 IN R
IC4001
10
9
11
12
28
29
7
62
3
31
32
TUNER R
TUNER L
D+5V
4
1
2
IC4007
12
IC4009
IC4009
67
71
IC4005
MIX R OUT1
MIX L OUT1
MIX R OUT2
MIX L OUT2
OUT
L CH
OUT
R CH
33
30
34
31
40
39
11
2
10
1
15
16
36
42
37
43
(TV)
JK3905
AV1
6
3
2
1
P.C.B.
DIGITAL
TO
(DIGITAL AUDIO OUT)
OPTICAL
IC4006
1
L2 IN(R)
4
3
(R)
LINE
FRONT
1
(L)
LINE
FRONT
5
(DECODER/EXT)
JK3904
6
3
2
1
CH1(L)
AUDIO IN
CH1(L)
AUDIO OUT
CH2(R)
AUDIO IN
CH2(R)
AUDIO OUT
CH1(L)
AUDIO IN
CH1(L)
AUDIO OUT
CH2(R)
AUDIO IN
CH2(R)
AUDIO OUT
IC7301
2
L2 IN(L)
A4 IN L
72
P7402P9001 IEC OUT
58
P7402P9001
62
P7402P9001
MAIN P.C.B. MAIN P.C.B.
SCART P.C.B.
AV2
A4 IN R
(R)
LINE OUT
21
18
19
(L)
LINE OUT
16
MIX R OUT DM
MIX L OUT DM
IN(L)
LINE
IN(R)
LINE
18
17
20
21
:PB SIGNAL:REC SIGNAL

Table of Contents

Related product manuals