EasyManua.ls Logo

Panasonic TH-42PX60U

Panasonic TH-42PX60U
210 pages
To Next Page IconTo Next Page
To Next Page IconTo Next Page
To Previous Page IconTo Previous Page
To Previous Page IconTo Previous Page
Loading...
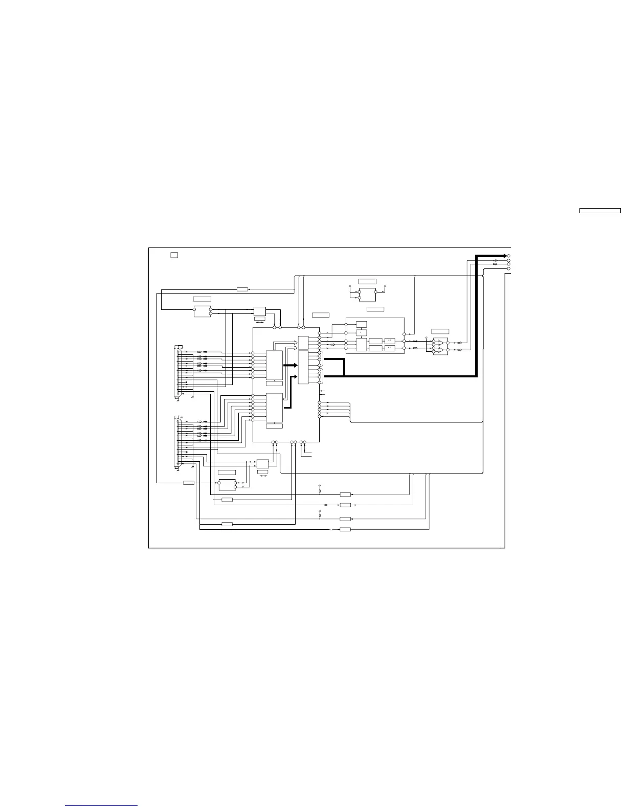
14.29. DG-Board (1 of 3) Block Diagram
HDMI_DAC_PD
RX_MCLK
HDMI_RST
MUTE_OUT
DDC_SDA
3.3V_SDA
HDMI_5V_DET1
RX_SCK
HPD1
RX_SD0
DDC_SCL
HDMI_INT
RX_WS
3.3V_SCL
HDMI_CEC
HSIB
REFCH_HDMI
VSIB
CLKINB2
AP_DE
HPD2
HDMI_5V_DET2
HDMI_WP
1
2
3
4
5
6
7
8
9
10
11
12
13
14
15
16
17
18
19
1
2
3
4
5
6
7
8
9
10
11
12
13
14
15
16
17
18
19
Divider
Q4065
CLK+
Q4067
6
5
CABLE IN;Hi/NORM
5
INTERFACE
S1
SCL
WC
D1+
H:MUTE
D2
AUDIO DAC
SDA
AUDIO MUTE
TMDS DECODER
D2-
1
141
WS
119
SDA
AUDIO
D2G
ROX1+
HPDT
Hi;MUTE
CEC
IC4025
SD0
VIDEO
(TO GC5 PORT-B)
Interpolator
5V
YB0-YB9
HDMI IN 1
HDMI_WP
S2
CABLE OUT;LOW/MUTE
2
BICK
Modulator
CSDA
5V
SDA1
MCLK
7
TMDS DECODER
Interpolator
EEPROM
+5V
S1
1
INTERFACE
ROX1-
CSCL
Q4069
Q4068
HDMI IN 2
AND 5V DET
INT
Low;DETECT HPD5V
D2
D2+
7
D1
EEPROM
SCL
DDCG
D2+
HDCP
CABLE IN;Hi/NORM
CIPHER DECRYPTOR
4
ROX2-
HOTPLUG
D1-
AND
DG8
AOUTL
INTERFACE
7
D2-
DSDA1
MAIN5V
Q4071
CEC
D0+
D0+
Q4083
CLKG
RECEIVER
123
+5V
R
RECEIVE
N.C.
8X
HOTPLUG
SCL1
S2
DDCG
DSCL1
P
D0G
AOUTR
3
D1
R1X0+
DG9
CLK+
D0-
142
L
DDC DATA
102
Low;DETECT HPD5V
Clock
R1X0-
Data
D1G
CLK-
R1XC-
R1X1-
DSCL0
HDCP
D0G
DDC DATA
2
110
Q4082
Modulator
MUTE OUT
N.C.
3.3V
D2G
104
IC4023
Q4070
132
INTERFACE
CABLE OUT;LOW/MUTE
R1X2-
R1X1+
TMDS DATA
AND
D1-
AUDIO MUTE
CPU
D0-
D1+
6
SCK
8X
PDN
R1X2+
AUDIO
RESET
ROX2+
6
MAIN9V
SCL
ROXC-
DSDA0
Hi;MUTE
ROXC+
Q4066
3
MCLK
LRCK
AUDIO AMP
136
AND 5V DET
CLKG
D1G
MAIN5V
R1XC+
UB0-UB9
IC4028
TMDS DATA
SCL
WC
CIPHER DECRYPTOR
IC4022
133
HPDT
5
ROX0+
SMUTE
3.3V
ROX0-
SDTI
CLK-
52
51
48
47
39
43
40
44
66
70
62
63
67
71
59
58
32 31
77
88
86
84
85
30 29 28 27
1
6
2
3
4
5
10
11
VSYNC
HSYNC
ODCK
121
97
3
1
2
MAIN 1.8V
XTALIN
MAIN 3.3V
DE
HDMI I/F RECEIVER
IC4026
R0PWR5V
34
R1PWR5V
33
L
R
7
MAIN 1.8V
IC4027
MAIN 3.3V
5
VIN VOUT
1
MAIN1.8V
CONT
DIGITAL SIGNAL PROCESSOR
HDMI INTERFACE
DG
MICOM
Q4084
TH-37/42PX60U
DG-Board (1 of 3) Block Diagram
TH-37/42PX60U
DG-Board (1 of 3) Block Diagram
TH-37PX60U / TH-42PX60U
103

Table of Contents

Other manuals for Panasonic TH-42PX60U

Related product manuals