EasyManua.ls Logo

Panasonic TH-42PX60U

Panasonic TH-42PX60U
210 pages
To Next Page IconTo Next Page
To Next Page IconTo Next Page
To Previous Page IconTo Previous Page
To Previous Page IconTo Previous Page
Loading...
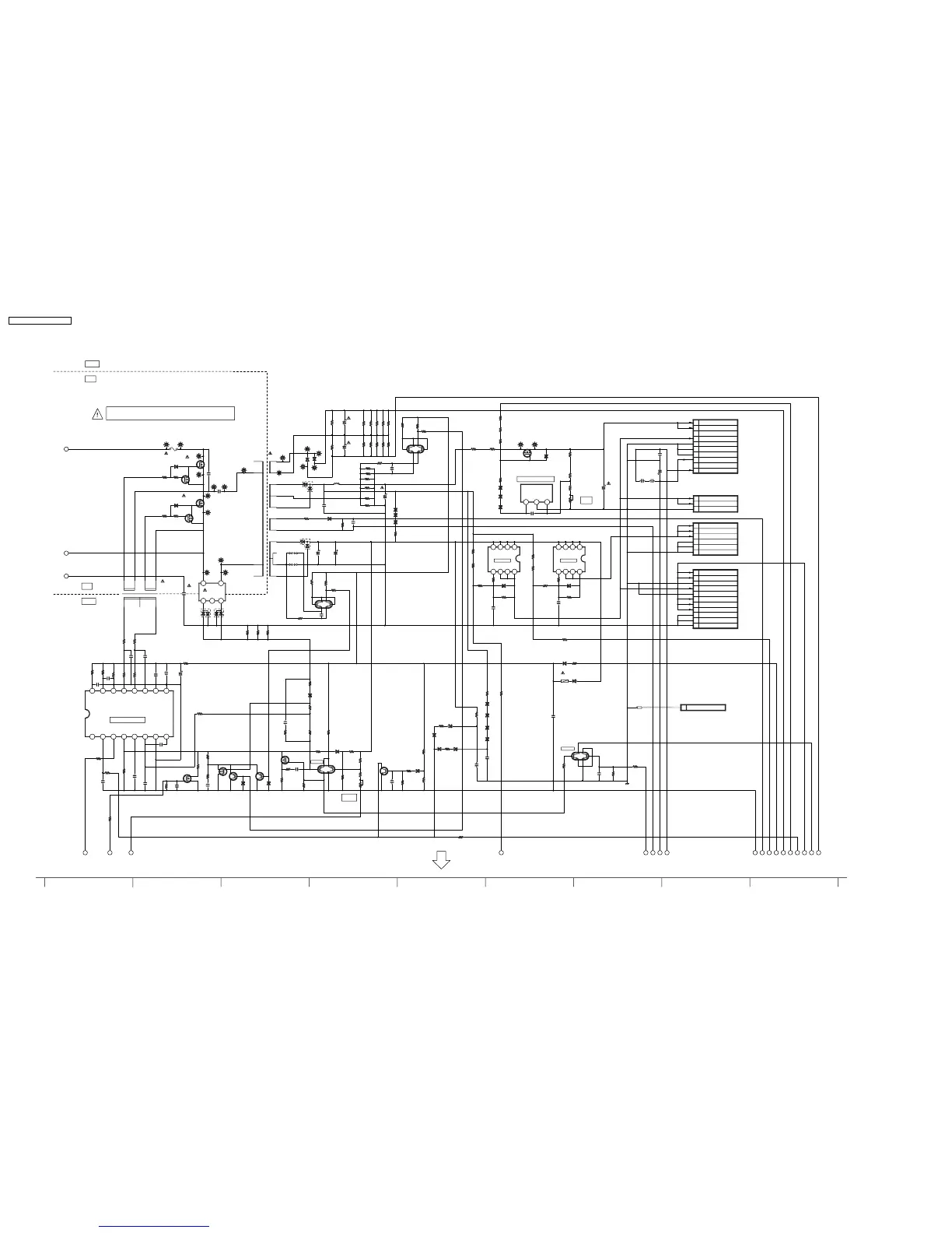
14.6. P-Board (2 of 6) Schematic Diagram (37inch)
P5
GNDs(W)
11
GNDs(W)
10
GNDs(S)
9
+15Vs(W)
8
+15Vs(W)
7
+15Vs(S)
6
GND
5
+15Vc
4
GND
3
+15Vc
2
+15Vc
1
D586
1SR153
C620
0.01
R641
47K
R566
1M
D538
02DZ5.1
ZH64
D521
D1NS4
Q510
RSR015P03
P23
GND
3
+15V
2
+15V
1
R922
100
R712
0
D602
02DZ8.2
Q538
2SK3018
C550
330P
R932
100K
C643
47/50V
Q556
RSS130N03
1234
5678
R632
220
ZH91
D579
MA165
C520
0.068u
D507
02DZ7.5
R607
22K
R551
330K
R659
30K
T404
ETS42LA115AD
R713
4700
ZH66
R664
9100
C469
220P
D574
MA165
D520
MA111
D528
MA3X15300L
R582
10K
C508
470P
R585
33K
R614
3300
R598
33K
IC512
TL431A1LPM5
123
R635
WA5001
ZH99
Q517
HN1C01F
C451
100P
ZH83
R631
33K
C584
0.022
C551
0.1[KB]
D539
SF8L60
Q564
2SB1218AR
R711
0.16
D551
02DZ13
R706 1M
D545
MA4200-M
D508
02DZ7.5
R564
100K
ZH79
R633
1M
ZH65
R612
2200
Q566
2SD1819A-RTX
R563
2.2
ZH74
R651
10K
Q413
2SK3683
C527
4.7
R574
330
C657
1000P
R953
2.2K
Q409
RSR025P03
R476
180
R700 1M
ZH81
C562
0.022
R537
100K
ZH94
R545
10K
R937
1K
R649
22K
C554
1.0
R674
33K
L514
10uH
R556
1M
R572
390
D544
MA4200-M
C624
0.01
C603
1.0
D517
MA4330-M
D572
02DZ24Z
IC520
LSSK0062
12345678
111213141516 910
C625
10
R588
390
R666
1000
ZH62
D423
MA188
C574
0.1
C552
0.1[KB]
R638
1K
R565
1M
C605
150u/200V
ZH84
J502
LSJW0001
C457
0.033u
PR509
F
Q408
RSR025P03
R704 1M
R680
0.16
T402
MT180
ZH75
R645
100
C530
0.033
R600
390
Q508
HN1C01F
Q527
2SK2882
C581
0.022
C656
2.2
R701 1M
C547
1000P
C546
1000P
R679
0.16
C555
220u/100V
D530
02DZ10
R562
4.7K
D542
MA4200-M
R676
33K
D535
MA188
R653
33K
C604
150u/200V
R629
1M
R705 1M
C601
0.01
R662
150K
C556
1500u/25V
T407
ETQ11K5AZ
6
5
1
4
2
R670
1000
D540
SF8L60
R665
2000
D549
02DZ24Z
ZH82
R587
0.16
P10
F_STBY
1
F_STBY
2
F_STBY
3
GND
4
GND
5
GND
6
ZH85
Q541
2SK3018
R708 1M
ZH73
D518
MA4330-M
D571
02DZ24Z
C526
0.022
C534
470P
C655
2.2
R707 1M
ZH86
R478
22
R613
24K
C571
33P
C650
0.1
R573
390
R561
5.1K
R697
4.7
R655
0.16
R699 1M
Q520
HN1C01F
D569
02DZ24Z
R568
1M
R592
3000
PR401
F 5A 250V
R482
22
R669
130K
R682
20K
R567
1M
D570
02DZ24Z
C577
33/100V
D531
RF2001T3D
Q555
RSS130N03
1234
5678
C587
3300P
R571
1M
R579
10K
R685
1K
Q565
2SB1218AR
R477
180
R951
10
Q509
HN1A01F
R703 1M
R672
1K
R931
33K
R660
12K
Z1
1
R597
33K
C557
1500u/25V
D536
SF20JC6
R576
12K
L510
EXCELDR25V
R596
100
R560
9.1K
D516
MA4330-M
R702 1M
D425
MA188
C523
1.0
R668
0
J501
LSJW0001
R933
1K
R661
5K
R599
390
ZH78
R696
10
R673
1K
R584
10K
ZH80
Q412
2SK3683
R698
0.16
R688
1K
R667
0
R650
10K
R593
5600
R690
4.7
C528
1.0
P12
STB_PS
10
NC
9
STB_12V
8
GND
7
GND
6
GND
5
+15V
4
NC
3
Vda
2
Vda
1
R952
10
R675
22K
D598
02DZ5.1
ZH72
R624
0.22
D543
02DZ15
C503
470P
R591
1M
R555
1M
D529
MA3X15300L
R570
100K
18161211 13 1514 1710
(SS12)
TO
SS-BOARD
(SC23)
TO
SC-BOARD
COLD
HOT
COLD
HOT
Vlow
Vda
P-BOARD TXN/P1BKTU (2/6)
2
1
3
AA AB AC AD AE AF AG AH AI AJ AK AL AM AN AO AP AQ AR
P-BOARD
TO
(4/6)
67.0
0
12.0
15.0
12.0
67.0
0
0
0
0
15.0
15.0
0
0
15.0
0
0
15.0
15.0
15.0
0
15.0
15.0
0
ERROR DET(Vda)
DC/DC CONV. DC/DC CONV.
VLOW DET
VLOW DET
POWER CONTROL
14.0
14.0
0
0
0
14.0
TH-37PX60U
P-Board (2 of 6) Schematic Diagram
TH-37PX60U
P-Board (2 of 6) Schematic Diagram
PA-BOARD
TO
(PA5)
PA-BOARD
TO
(PA10)
TH-37PX60U / TH-42PX60U
80

Table of Contents

Other manuals for Panasonic TH-42PX60U

Related product manuals