EasyManua.ls Logo

Panasonic TH-42PX60U

Panasonic TH-42PX60U
210 pages
To Next Page IconTo Next Page
To Next Page IconTo Next Page
To Previous Page IconTo Previous Page
To Previous Page IconTo Previous Page
Loading...
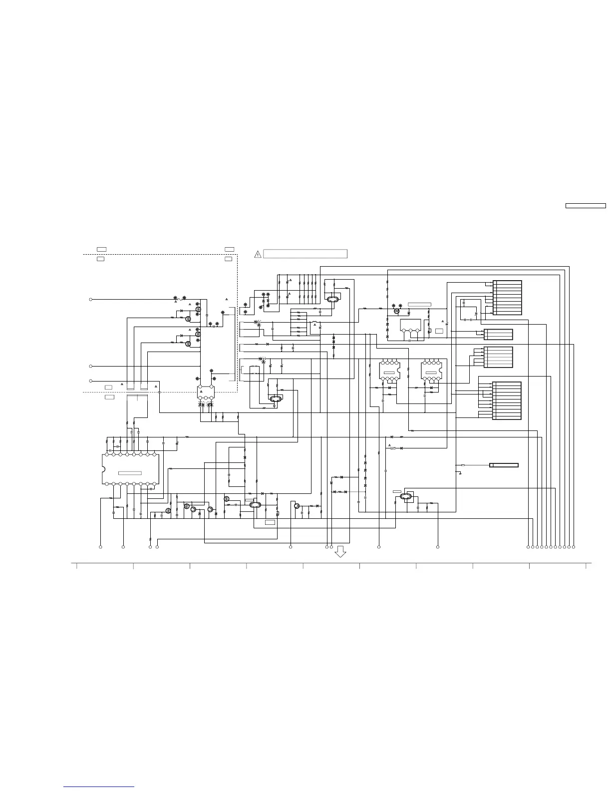
14.13. P-Board (2 of 6) Schematic Diagram (42inch)
ZH72
ZH65
R600
390
C530
0.033
D531
RF2001T3D
P10
F_STBY
1
F_STBY
2
F_STBY
3
GND
4
GND
5
GND
6
R685
1K
C546
1000P
PR509
F
P23
GND
3
+15V
2
+15V
1
R563
2.2
R551
330K
R713
4700
R673
1K
ZH81
R932
100K
Q565
2SB1218AR
R697
4.7
ZH83
R649
22K
ZH79
Q508
HN1C01F
D544
MA4200-M
D517
MA4330-M
R587
0.16
R596
100
R537
100K
R672
1K
D529
MA3X15300L
R669
130K
R705
1M
R688
1K
R682
20K
D579
MA165
R698
0.16
R676
33K
R653
33K
R574
330
T402
MT180
C571
33P
C457
0.033u
Q517
HN1C01F
R478
22
D528
MA3X15300L
R477
180
C527
4.7
R476
180
R662
150K
C577
33/100V
R555
1M
R571
1M
IC520
LSSK0062
12345678
111213141516 910
Q527
2SK2882
R708
1M
C624
0.01
D516
MA4330-M
R667
0
R931
33K
R707
1M
Q541
2SK3018
C620
0.01
R675
22K
PR401
F 5A 250V
C469
220P
Q555
RSS130N03
1234
5678
Q409
RSR025P03
C520
0.068u
C523
1.0
R570
100K
ZH99
L510
EXCELDR25V
T407
ETQ11K5AZ
6
5
1
4
2
R593
5600
R700
1M
R702
1M
R607
22K
D425
MA188
R679
0.16
R562
4.7K[F]
C587
3300P
R568
1M
T404
ETS42LA115AD
P5
GNDs(W)
11
GNDs(W)
10
GNDs(S)
9
+15Vs(W)
8
+15Vs(W)
7
+15Vs(S)
6
GND
5
+15Vc
4
GND
3
+15Vc
2
+15Vc
1
C528
1.0
R629
1M
D551
02DZ13
C552
0.1
C604
150u/200V
R560
9.1K
R680
0.16
C556
1500u/25V
R582
10K
Q412
2SK3683
R706
1M
C451
100P
R632
220
C656
2.2
D598
02DZ5.1
R660
12K
C625
10
ZH80
R598
33K
C526
0.022[KB]
C574
0.1
R573
390
R641
47K
ZH86
C643
47/50V
R703
1M
L514
10uH
C657
1000P
R645
100
R655
0.16
C605
150u/200V
ZH64
R701
1M
R922
100
R668
0
C655
1.0
C584
0.022
D574
MA165
R482
22
D542
MA4200-M
P12
STB_PS
10
NC
9
STB_12V
8
GND
7
GND
6
GND
5
+15V
4
NC
3
Vda
2
Vda
1
C503
470P
R567
1M
R592
3000
R670
1000
R665
2000
R674
33K
R614
3300
R696
10
D536
SF20JC6
D507
02DZ7.5
R699
1M
R561
5.1K
R588
390
R564
100K
C650
0.1
ZH74
D572
02DZ24Z
ZH94
R576
12K
R651
10K
C562
0.022
R952
10
R579
10K
R572
390
D535
MA188
IC512
TL431A1LPM5
123
D549
02DZ24Z
ZH84
D602
02DZ8.2
R585
33K
C551
0.1
ZH62
D545
MA4200-M
D569
02DZ24Z
ZH85
J502
LSJW0001
D521
D1NS4
R704
1M
C547
1000P
R591
1M
D530
02DZ10
R933
1K
ZH66
C603
1.0
R664
9100
R613
24K
R951
10
Q566
2SD1819A-RTX
R584
10K
D508
02DZ7.5
D571
02DZ24Z
ZH75
D423
MA188
R566
1M
Q564
2SB1218AR
D543
02DZ15
ZH78
R545
10K
D540
SF8L60
R565
1M
R597
33K
C534
470P
R659
30K
C550
330P
R631
33K
R650
10K
R666
1000
R711
0.16
R624
0.22/2W
R953
2.2K
Q413
2SK3683
R633
1M
D539
SF8L60
ZH82
R937
1K
Q408
RSR025P03
C557
1500u/25V
C601
0.01
R661
5K
C555
470u/100V
R556
1M
Z1
1
R635
WA5001
ZH73
D570
02DZ24Z
Q520
HN1C01F
ZH91
R599
390
C581
0.022
Q510
RSR015P03
Q509
HN1A01F
C508
470P
R690
4.7
Q556
RSS130N03
1234
5678
R712
4.7
R638
1K
J501
LSJW0001
D538
02DZ5.1
D520
MA111
D518
MA4330-M
D586
1SR153
Q538
2SK3018
C554
1.0
15 16 1810 12 171411 13
TO
SS-BOARD
(SS12)
(SC23)
TO
SC-BOARD
HOT
COLD
POWER CONTROL
Vda
ERROR DET(Vda)
P-BOARD TXN/P1BJTU (2/6)
COLD
HOT
HOT
COLD
Vlow
PA-BOARD
TO
(PA5)
2
1
3
AA AB AC AD AE AF AG AH AI AJ AK AL AM AN AO AP AQ AR
P-BOARD
TO
(4/6)
AS AT
12.0
15.0
12.0
0
67.0
0
0
67.0
0
0
15.0
0
15.0
15.0
15.0
15.0
0
0
0
15.0
15.0
0
15.0
0
VLOW DET
VLOW DET
DC/DC CONV.
DC/DC CONV.
PA-BOARD
TO
(PA10)
14.0
0
0
0
14.0
14.0
TH-42PX60U
P-Board (2 of 6) Schematic Diagram
TH-42PX60U
P-Board (2 of 6) Schematic Diagram
TH-37PX60U / TH-42PX60U
87

Table of Contents

Other manuals for Panasonic TH-42PX60U

Related product manuals