EasyManua.ls Logo

Panasonic TH-42PX60U

Panasonic TH-42PX60U
210 pages
To Next Page IconTo Next Page
To Next Page IconTo Next Page
To Previous Page IconTo Previous Page
To Previous Page IconTo Previous Page
Loading...
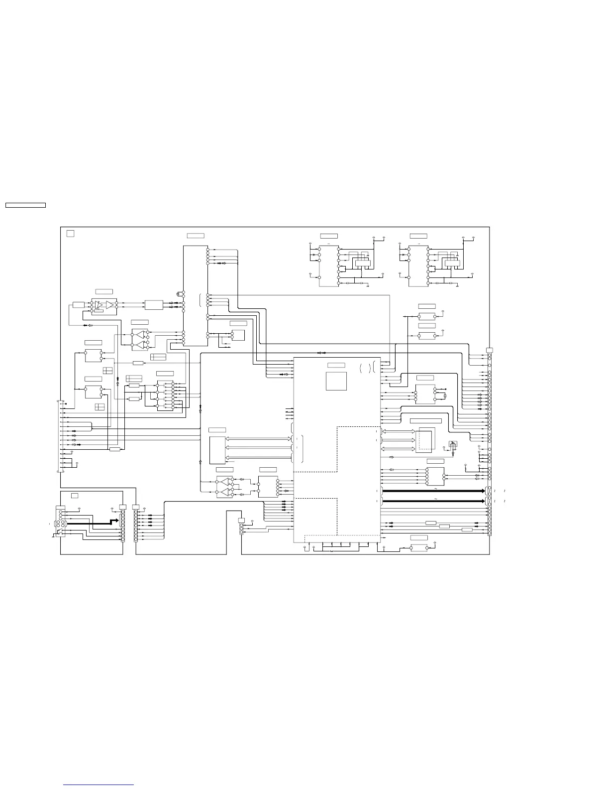
14.40. DT and GS-Board Block Diagram
TCK
FAT_P
FAT_N
DATA2
DATA3
SDWP
SDCD
CLK
CMD
DATA0
DATA1
MAIN_R
SD_BOOT
POWER_DET
XRST
SDBOOT
SDA_TV
SCL_TV
TRST
TMS
AFT
TCK
MAIN_SW
R_OUT
L_OUT
SCL_TV
SDA_TV
SCL_FE
MAIN_SW
SBI1
POWER_DET
SBI1
SBO1
SBO1
SDA_FE
D_A_SW
L_OUT
R_OUT
L_ANALOG
R_ANALOG
SDWP
DATA2
DATA1
DATA3
CMD
CLK
SDCD
DATA 0
VIDEO_OUT
R_ANALOG
L_ANALOG
TRST
TMS
TCK
TMS
AFT/VIDEO_OUT
VIDEO_OUT
AFT
XRST
ISOCLK
ISOSYNC
CLK
HSYNC
MAIN_L
VSYNC
ISOVAL
ADCCK
ADIN
DSRCK
PDWN
SLRCK
PSYNC0
ENABLE0
PSYNC0
SCHDATA0
PSYNC0
ENABLE0
SCHDATA0
SCHCLK0
X8005
X8200
96
88
97
105
MVCLK0(PAEKS_CLK)
MHSYNC0(PEAKS_H)
MVSYNC0(PEAKS_V)
20
VOUTENB
DC(BS_C)
45
47
DY(BS_Y)
23
SBO1(RXD1)
18
SBI1(TXD1)
19
30V(BT30V)
8
SUB 9V
51
52
SUB 9V
53
SUB 9V
54
SUB 5V
57
SUB 5V
5V_SUB
5V_A
9V_SUB
MVY0 (PEAKS_Y0)
MVY7 (PEAKS_Y7)
MVC0 (PEAKS_C0)
MVC7 (PEAKS_C7)
107
106
109
SRQ
30V
MVY7
MVY0
MVC7
MVC0
MHSYNC0
MVSYNC0
MVCLK0
IEC_OUT
MVY0
MVC0
MVY7
MVC7
XSRQ
DY
DC
SDA1
SCL0
SDA0
SCL1
SCL0
SDA1
SDA0
SCL1
TD0
TCK
TDI
TMS
VDDQ
2.5V
(DDR SDRAM)
AVDDMVAVDDSVAVDDMAVDDDAVDDAAVDDVDD33VDD12
2.5V
SD_DATA0
SD_DATA2
SD_DATA1
SDCLK
SDWP
SDCMD
SDCD
SD_DATA3
1.2V 3.3V
PEAKS_Lite(2/3)
HDSL PEAKS_Lite
IC8240
256M DDR SDRAM
IC8009,IC8010
IC8254
ED31
ED16
XEWE2
XECS0L
EA23
EA1
9
74M
7
VIN
27M
X1
16
X2
1
IC8022
VCXO
VC27
62
63
53
54
RF_AGC
OBMSCL
IF_AGC
OBMSDA
Q8209
XEREL
RE
CLE
ALE
XWP
WE
NOR FLASH ROM I/F
PEAKS_Lite(3/3)
PEAKS_Lite(1/3)
JTAG I/F
DATA BUS
ADDRESS BUS
CONTROL BUS
DATA BUS
ADDRESS BUS
CONTROL BUS
XRST
ATSC INTERFACE
Tes t
Group
Joint
Action
H
1
D_A_SW
L
4
OFF
CONT
I/0
ON
O/I
L/H CHECK
2
IC8204
CONT
O/I I/0
L/H CHECK
IC8203
1
4
BTL
R_OUT
TU8200
SDA
IF_SW
2
16
4
ANT_V
SUPPLY
7
VIDEO_OUT
IF_OUT
SCL
19
11
AFT
L_OUT
V_SUPPLY
20
8
AGC OUT
TUNER
15
13
BV
12
9
18
10
AGC
DT10
SBI0
1
DT07
2
SBO0
3
+5V
XF8200
AGC CTL
36
XI
AGC AMP(IF STRIP)
176
6
XO
IBAINP
IC8206
OUT1
40
AGC_CONT
4
3
OUT2
X9303P
35
39
72
7
3
AGC AMP
2
5
IC8205
1
6
11
9
SERIAL SW
2
L
IC8202
DIGITAL
3
12
8
10
H
Q8217
ANALOG
4
6
5
D_A_SW
1
13
OUT-2
G2
5V_SUB
17
S1
D1
21
20
D2
5
16
LX
VCC VIN
VDD
18
G1
IC8246
S2
DC-DC CONVERTER
XIRQ1 FRONT
XFERST0
SBI0
SBO0
D8208
DIGITAL
3.3V
MMA13
MMDQ0
MMDQ31
MMA0
58
AINR
1
2
MAIN_L
AINL
MAIN_R
60
4
MCK27
10
133M
CLK74
3.3V
XRST
1
4
SUB 9V
2
VDD
VOUT
IC8227
SD_BOOT
VDD
POWER_DET
XRST
RESET 2
IC8228
2
RESET
OUT
POWER_DET
22
XRST(DTV_RST)
15
16
SDBOOT
(SW_OFF)
PSYNC0
ENABLE0
SCHDATA0
SCHCLK0
INT
84
68
NRST
Q8220
SER_DATA
106
91
MPEG_PKT_SYNC
94
MPEG_DATA_EN
93
MPEG_ERR
108
MPEG_CLK
DT
32
SCL1(DTV_SCL0B)
(SDA0B)
TCK
41
DG22
43
33
L_OUT(BS_SL)
SDA1(DTV_SDA0B)
(SCL0B)
13
AFT(AFT1)
36
R_OUT(BS_SR)
26
34
SDA_TV
35
MAIN_SW
27
VIDEO_OUT
SCL_TV
DT12
30
TMS
TRST(JTAG_TRST)
37
1
OOB OUT
TRST
136
TMS
135
TCK
134
JTAG
SDASDA
87
6
SCL
SCL
IC8229
5
EEPROM
88
IC8211
FRONT PROCESSOR
(TERRESTRIAL RECEIVER)
MCLK
LRCK
AOUTL
2
3
2
AUDIO AMP
IC8200
LRCK
9V SUB
6
5
1
5
DMIX
BICK
3
1
10
DACRST
11
AUDIO DAC
IC8201
7
SDTI
AOUTR
DACCK
PDN
4
SRCK
SBO1
SBI1
SCL1
SDA1
ED16-ED31
D_A_SW
SCL1
SDA1
MAIN_SW
L
DIGITAL
H ANALOG
AUDIO OUT
IBAINN
137
TDI
TO
SBI2
SBO2
IR
A0-A22
DQ0-DQ15
EA1-EA23
24
FORMAT
EDGE
FORMAT EDGE
7
SDDAT3
9
5
1
10
JK7701
4
2
3.3V
SDCMD
9
SLOT
11
7
SD CARD
8
1
12
SDCLK
5
SDDAT0
3
8
D.SW
SD CARD SLOT
W.P.
GS
GS52
IF_AGC
DIGITAL
RF AGC
ANALOG
RF AGC
Q8219
Q8218
OFFL
ONH
IF_SW
TO
HC06
5V_SUB
C8413,8414
C8432-8436
L8303-8305
FILTER
SDCMD
DATA0
7
DATA3
SDCLK
DATA1
SDWP
3
12
10
5
11
SDCD
9
8
DATA2
3.3V
1
3.3V
128M FLASH ROM
FWP
PEAKS_Lite(1/3)
TD2S
MCP2L
AM33(200MHz)
NTSC ENC.
PERIPHERAL
VIDEO DAC
9V
3.3V
9V_POWER
9
CTL
19
OUT-1
D2 D1
VO
23
24
FB
3.3V
9V_SUB 9V_POWER
-INC
13
19
OUT-2
G2
5V_SUB
17
D2
S1
9
D1
21
20
D1
23
VO
9V_SUB
D2
9V_POWER
9V_POWER
5
16
LX
VCC VIN
VDD
24
18
G1
IC8247
S2
FB
DC-DC CONVERTER
13
OUT-1
-INC
CTL
9V
1.2V
Q8211
Q8210
ATV_SR
62
ATV_SL
64
2
3.3V
3.3V
5V_A
30V
TO FRONT
ISOCLK
ISOSYNC
ISOVAL
80
VSYNC
85
CLK
HSYNC
87
CB CB
1.2V
3.3V
16
VDD
IC8235
AVR 2.5V
VOUT
Q8229
Q8230
SDA_TUNER
SCL_TUNER
10
LRCK
MCLK
13
ADIN
PDWN
SLRCK
SCLK
PDN
11
ADCCK
9
12
SDTO
DSRCK
16Bit AUDIO A/D
IC8244
TH-37/42PX60U
DT and GS-Board Block Diagram
TH-37/42PX60U
DT and GS-Board Block Diagram
TH-37PX60U / TH-42PX60U
114

Table of Contents

Other manuals for Panasonic TH-42PX60U

Related product manuals