EasyManua.ls Logo

ParTech SludgeWatch 8200w2 - Fixings

Default Icon
34 pages
Print Icon
To Next Page IconTo Next Page
To Next Page IconTo Next Page
To Previous Page IconTo Previous Page
To Previous Page IconTo Previous Page
Loading...
8200w² Monitor Instruction Manual
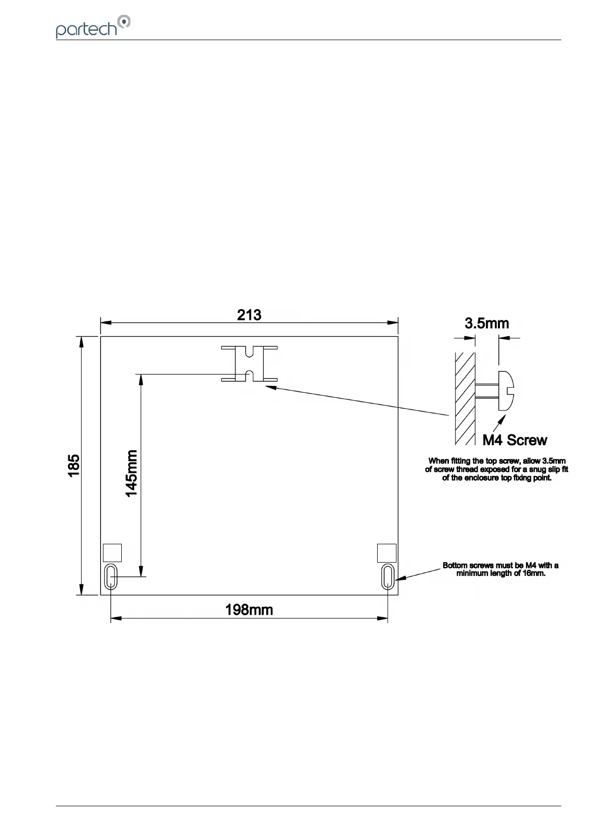
4.3 Fixings
The 8200w² Monitor has 3 fixing points for mounting. Follow these instructions for easy installation and
mounting.
Offer the monitor up to the final mounting position. Mark the wall behind with a dot halfway along the
top of the enclosure.
Measure down from the dot 27mm and fit an M4 screw. Ensure the screw has 3.5mm of thread
exposed for a snug fit.
Hang the enclosure on the screw using the hanging bracket moulded into the back of the monitor
(Loosen the screw if too tight to hang).
Remove the lower terminal strip cover to reveal the two lower fixing slots (shown as A on the
illustration below).
Level the Monitor with a spirit level and mark the two lower slots.
Remove the enclosure and fix drill/tap the above marks.
Rehang the enclosure (Tighten the top screw if the enclosure feels loose) and fit the two lower
screws. The enclosure has a 14mm shoulder so fixing screws must be at least 16mm long to
penetrate beyond the back of the enclosure.
Refit the lower terminal cover.
229844IM Issue 01 Issue Date 24/06/2019 ` Page 11 of 34
A
A

Table of Contents