EasyManua.ls Logo

Perkins M216C - Page 143

Perkins M216C
220 pages
Print Icon
To Next Page IconTo Next Page
To Next Page IconTo Next Page
To Previous Page IconTo Previous Page
To Previous Page IconTo Previous Page
Loading...
KENR9126 143
Troubleshooting Section
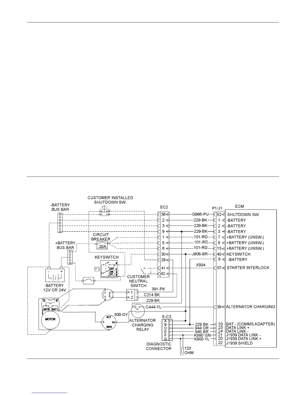
Use this test if there are intermittent engine
shutdowns or if
adifculty in starting is not
accompanied by loss of electrical accessories.
Engine shutdowns that are accompanied by a loss of
other electri
cal accessories indicate a problem in the
keyswitch. This does not indicate a problem in the
wiring at the engine's ECM. Verify that there are no
problems wit
h the starting system or the charging
system before you use this test.
Unswitched
battery voltage is supplied through the
E-C2 connector to the ECM at P1-7, P1-8, and
P1-15. The negative battery is supplied to the ECM
at P1-1, P1-
2, and P1-3. The ECM receives the input
from the keyswitch at P1-40 when the keyswitch
is in the ON position or the START position. When
the ECM det
ects battery voltage at this input, the
ECM will power up. When battery voltage is removed
from this input, the ECM will power down. The ECM
continuou
sly receives battery voltage through the 20
Amp fuse for the ECM.
The engin
eECMrequiresthekeyswitchtobeinthe
ON position in order to maintain communications with
the electronic service tool.
g02199393
Illustration 44
Typical example

Table of Contents

Other manuals for Perkins M216C

Related product manuals