EasyManua.ls Logo

Pfannenberg DTS 6301C - DTI Cooling Unit Assembly (Installation)

Pfannenberg DTS 6301C
86 pages
Print Icon
To Next Page IconTo Next Page
To Next Page IconTo Next Page
To Previous Page IconTo Previous Page
To Previous Page IconTo Previous Page
Loading...
Operating Manual DTS and DTI 6201C / 6301C Multi-Controller (MC) 086100016 © Pfannenberg GmbH Page 19 / 43
GB
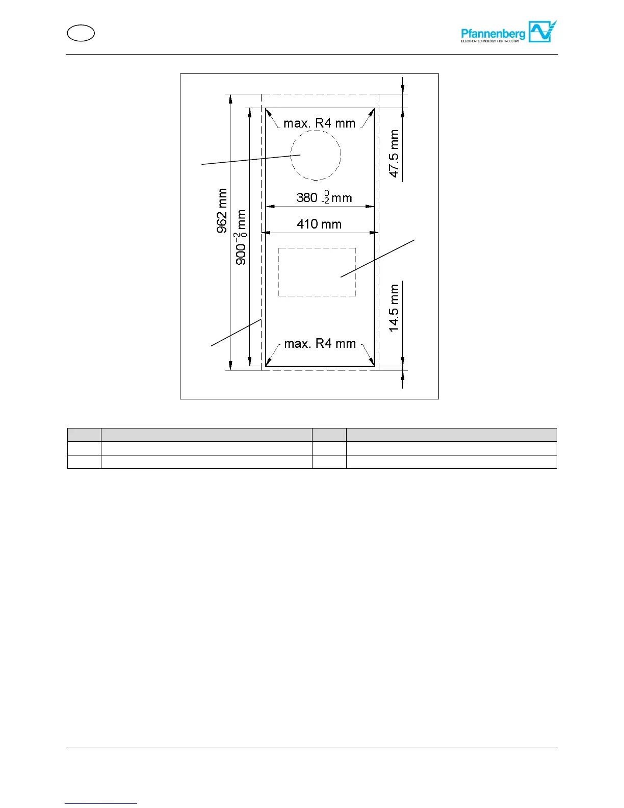
3.4.4 DTI cooling unit assembly (installation)
Item
Designation
Item
Designation
1
Air inlet
2
Air outlet
3
Device contour
Make cut-outs for the DTI cooling unit
Requirements
- All general requirements have been fulfilled; see General assembly requirements
- The unit is de-energized.
Required tools and material
- Saw
- Use a switch cabinet cutter, if applicable
- Protective covers
Procedure
Use a protective cover to protect the switch cabinet from chips.
Provide the switch cabinet with cut-outs. For the prescribed dimensions, refer to the figure switch cabinet
exterior view.
The four corner cut-outs can be rectangular or have a maximum R = 4 mm.
Deburr the cut edges.
Remove chips and assembly waste from the switch cabinet.
Cut-outs have been made.
Figure 12 - Switch cabinet exterior view
DTI cooling unit cut-outs
1
2
3

Table of Contents

Related product manuals