EasyManua.ls Logo

Phase Technologies SD Series - Page 12

Phase Technologies SD Series
84 pages
Print Icon
To Next Page IconTo Next Page
To Next Page IconTo Next Page
To Previous Page IconTo Previous Page
To Previous Page IconTo Previous Page
Loading...
6 | P a g e
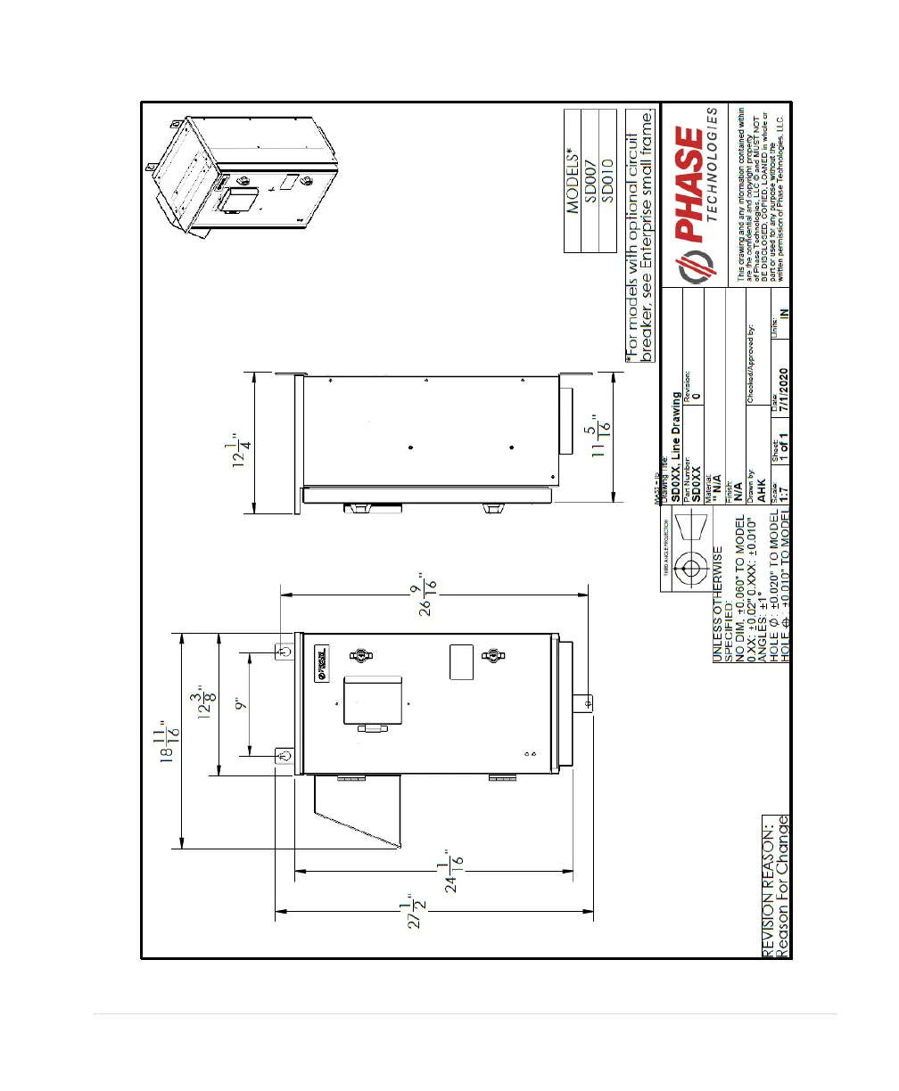
Figure 7 - SD Series Line Drawing (if selected with optional breaker, see Figure 9)

Related product manuals