EasyManua.ls Logo

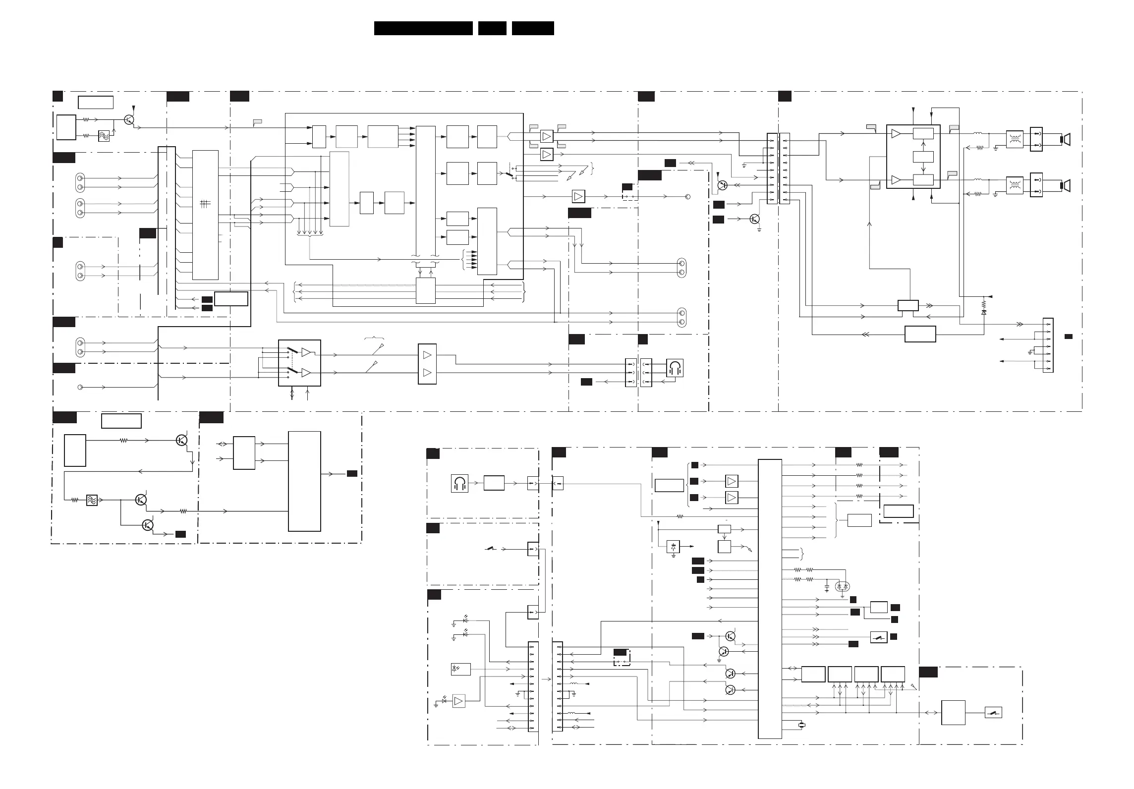
Philips 50PF9966 - Block Diagram Audio

Philips 50PF9966
136 pages
Print Icon
To Next Page IconTo Next Page
To Next Page IconTo Next Page
To Previous Page IconTo Previous Page
To Previous Page IconTo Previous Page
Loading...
Block Diagrams, Testpoint Overviews, and Waveforms
25FTP2.2U AA 6.
Block Diagram Audio
CENTRE IN
PDP AUDIO
B14B
I/O
B14D
SIDE I/O
D
CONNECTIONS
I/O
B14B
IF
B2
AUDIO I/O
B14D
LED + SWITCH
J
OTC FLASH
B5A B3A
B19C
CONNECTIONS
B21
TOP CONTROL
E
7001
SAA5801H
B6A
B21
B21
B14C
B14B
SIDE I/O
D
B21
AUDIO I/O
B15A
PIP I/O
B15B
J
CONNECTIONS
OTC-FLASH
B5C
C
7323
TDA9321H
QSS_AM
HIP
MAIN
SEE ALSO
BLOCK DIAGRAM
VIDEO
3380
5
SOUND-OUTPUT
B68
B69
B67
B66
7410
AL-SC1-IN
3
4
6
10
2
11
25
24
20
19
18
4
5
6
AR-SC1-IN
SNR-DVI-IN
SND-DVI-IN
AL-SC2-IN
AR-SC2-IN
3
5
9
1
12
4
5
9
10
11
R1
7I17
TEA6422D
R2
R3
13
15
45
47
IF1
7A02
MSP34x1G
IF2
50
44
SC3
ADC
SC4
I2S-MSP-OUT
I2S-MSP-WS
I2S-MSP-CLK
I2S-DPL-OUT
I2S-DPL-CLK
I2S-DPL-WS
5
4
3
17
R1
R2
R3
R4
R5
R6
MATRIX
SWITCH
L1
L2
L3
L1
L2
L3
L4
L5
L6
B14c
B14c
SNDR-MAIN-IN
MONO-IN
SNDL-MAIN-IN
12
15
14
12
14
16
SCART
DSP
INPUT
SELECT
SNDR-DVI-IN
SNDR-SEC-IN
N.C.
36
38
39
41
42
35
SC1
N.C.
N.C.
N.C.
SOURCE
SELECT
PRESCALE
I2S
INTERFACE
DE-
MODULATOR
ADC
PRE-PROCESSING
PRESCALE
LOUD-
SPEAKER
SOUND
PROCESSING
DAC
HEADPHONE/
SURROUND
SOUND
PROCESSING
DAC
SCART
OUTPUT
SELECT
DAC
DAC
LOUD
SC
20
21
23
17
18
DACM-SUB
FRONT-DECT
7
1
AUDIO-R
AUDIO-L
AUDIO-R
AUDIO-L
AUDIO-SW
HPN-R
HPN-L
MSP-CENTER
MSP-SURR
18
18
28
25
26
61
SNDL-MON-OUT
SNDR-MON-OUT
SNDL-MON-OUT
SNDR-MON-OUT
SNDR-SC2-OUT
SNDL-SC2-OUT
SNDR-SC1-OUT-DC
SNDL-SC1-OUT-DC
29
5
3
7
5
HPN-L
HPN-R
10
1M36
11
7
L
R
DETECT
HEADPHONE-L
HEADPHONE-R
3
5
1
7
7A07
MC33178D
7A03
LM833D
7A00
LM833D
B65
3858
1M52
1M02
7
6
5
4
3
2
1
-16V-19V
5Y11
9Y06
EPG-
FLASH-RAM
4Mbit
AUXILIARY
FLASH
PROGRAM
CIRCUIT
FOR
FLASH RAM
SEE ALSO
BLOCK DIAGRAM
VIDEO
SEE ALSO
BLOCK DIAGRAM
VIDEO
7015
7016
B2
BLOCK DIAGRAM CONTROLS
AUDIO
74LVC245APW
74LVC245APW
775
OTC
CVBS-TXT
CVBS-Y-RECORD-IN
R-TXT
B14B
B14B
B14B
109
OUT
+3V3
INTOTC
N.C.
IN
+5V2-CON
STATUS_SC3
STATUS_SC4
108
97
120
7009
7022
B4
99POR-FLASH
98IRQ-DIGITAL
93HD@HOME
96IRQ-FTV
N.C.
N.C.
N.C.
115
P50
7008
LED2
107KEYBOARD
LIGHTSENSOR
110
LIGHT_SENSOR
100
RC
2
6x
+3V3
RC
SA
B6A
84
7
N.C.
114
RESET
74
RESET
83
B3A
HD3-EPLD
B3A
VD-EPLD
78
G-TXT
SEE ALSO
IIC DIAGRAM
79
B-TXT
80
FBL-TXT
R-OSD
G-OSD
B-OSD
BL-OSD
88 SDA-F
87 SCL-F
86 SDA-S
85 SCL-S
104 STANDBY
90 TXD
89
119
96
RXD
3099-3 3081
3074-4 3097
SAM
SDM
95 SOUND-ENABLE
94 RESET AUDIO
117
116
SEL_IN_2
91
SDA
92
5
6
SCL
16
17
1001
6Mhz
SEL_IN_1
7006
LH28F320BJE
7007
MSM51V18165F
7012
M29W400BT
7018
7019
103
PWW-BLACKLIGHT
B5B
ADDRESS
DATA
CONTROL
KEYBOARD
MENU
CHANNEL+
CHANNEL-
VOLUME+
VOLUME-
0345
RP
RESET
FLASH
RAM
7002 :
7004
7013, 7014
DRAM
(TXT)
16Mbit
PROGRAM
FLASH-RAM
SET SW
32Mbit
7011
MC24C32
EEPROM
NVM.
4kByte
RP
1
7005
LF33AB
(OCTAL BUS TRANSCEIVER)
3859
3860
3861
9ID0
1M20
RED
BLUE
1M20
1
2
72
6060
6070
7070
LM358P
3
4
5
6
7
8
9
10
1
+8V
LIGHT-SENSOR
RC-IN
2
3
4
5
6
7
8
9
10
+5V2-STBY
+8V
PWM
-16V-19V
-16V-19V
+16V+19V
I722
18
3
24 22
+16 +19V
24
10
6
I778
3
1
1735
15W/
8
15W/
8
23
I776
3
1
5702
5701
OSC
STBY-MUTE
7700
TDA7490
PWM
+16V+19V
3717
3718
3745
6745
I711
L
R
7701 : 7707
SOUND-ENABLE
POR-CLASSD
PROT1
PROT-AUDIO-SUPPLY
SOUND
ENABLE
3
2
4
5
6
7
8
9
1
1739
AUDIO-L
AUDIO-R
1736
5730
5731
AUDIO
SUPPLY
PROT, CIRCUIT
+8VP
DCPROT
+16V+19V
DCPROT
TO 1002
A6
SUPPLY
HEADPHONE-OUT
17
18
2
9
7A06
TDA7309
20
14
13
11
SDA-F-AUD
SCL-F-AUD
FRONT-L
FRONT-R
SND-CENTRE-IN
SNDL-SEC-IN
SND-CENTER-IN
SNDR-SEC-IN
SNDL-SEC-IN
3
2
4
5
6
7
8
9
1
POR
7Y01
7010
IRQ-AUDIOSUPPLY
AUDIO-SW
SOUND-ENABLE
B5A
B5A
1I06-2
1I07
1M36
11
7
10
ON / OFF
2
KEYBOARD
0345
11
12
6051
+5V2-STBY
SCL-S
SDA-S
LIGHT SENSOR
11
12
SCL-SF
SDA-SF
KEYBOARD
7022
115
ON-OFFOLED
+3V3
LED2
LED1
B14E
118
CON-SND
CON-SND
6005
2016
7516
74HC4053
H
N.C.
A-PLOP
SA
B14B
1404
SSSS811
SWITCH FOR
SOFTWARE
DOWNLOAD
B14b
B6a
B6a
B6a
10
9
1002
SNDR-MON-OUT
SNDL-MON-OUT
12
11
PIP-AM
2
PIP-FM
B15A
B15B
1
B6a
SNDL-DVI-IN
B6a
B6a
B6a
DACM-SUB
23
1I06-1
SUBW
9ID0
B6C
AUDIO_SW
1I06-1
4
7P09
TDA9321H
PIP
VIFOUT
SEE ALSO
BLOCK DIAGRAM
VIDEO
PIP IF
3P26
10
3
7P55
TDA9820T
8
QSS_AM
7P05
SEL-PIP-SOUND1
SEL-PIP-SOUND2
1P07
FM
INTERCARRIER
SOUND
DEMODULATOR
(MONO)
I/O
EXP
3P38
7P56
M62320
3
2
SDA-S
SCL-S
6
PIP-FM
B14D
SEE ALSO
BLOCK DIAGRAM
VIDEO
SA
B5A
+5V2-STBY
IR
SENSOR
1040
LED2
LED1
GND-AUD
N.C.
7A00-A
1
3
1I01-1
1I04
1I09
7P07-1
SIF-OUT
3P93
7P55-M
7P07-2
PIP-AM
B14D
1411
10
3437
(FOR AP)
(FOR US)
(N.C. FOR DUAL WINDOW)
(ONLY FOR DUAL WINDOW)
(ONLY FOR DUAL WINDOW)
SIDE I/O
D
1M36
7
HEADPHONE-OUT
FRONT
DETECT
1M36
7
3073-2
FRONT-DETECT
B5A
HPN-R
HPN-L
(N.C. FOR DUAL WINDOW)
(NOT FOR DUAL WINDOW)
(ONLY FOR DUAL WINDOW US)
AUDIO IN
L+R
AUDIO IN
L+R
AUDIO IN
L+R
AUDIO IN
L+R
AUDIO OUT
L+R
AUDIO OUT
L+R
E_14650_043.eps
190704

Table of Contents

Other manuals for Philips 50PF9966