EasyManua.ls Logo

Philips 50PF9966 - PDP Audio

Philips 50PF9966
136 pages
Print Icon
To Next Page IconTo Next Page
To Next Page IconTo Next Page
To Previous Page IconTo Previous Page
To Previous Page IconTo Previous Page
Loading...
88FTP2.2U AA 7.
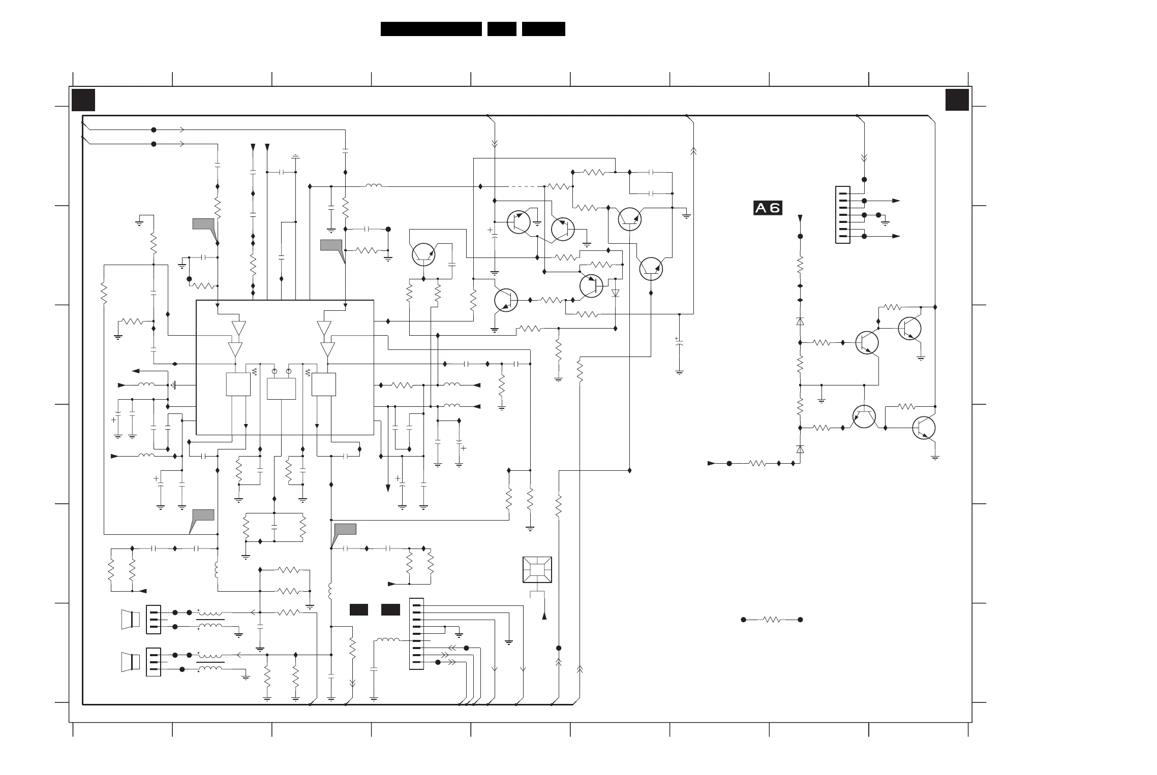
Circuit Diagrams and PWB Layouts
PDP Audio
OR
TO CN9006
SUB SUPPLY
(LC04, PDP)
TO 1752
LC04 (PDP)
A5
PWM
STAGE2
G=2.5
PRE-AMP1
INTERGR 1
INTERGR 2
PWM
STAGE2
OSC
G=2.5
PRE-AMP2
5704
I715
I771 D8
I772 D9
I773 D8
I775 D4
I776 D3
I777 C2
I778 D2
I779 D2
I781 A2
I782 B2
I783 B3
I784 D8
I785 B8
I786 C9
I787 A3
I788 B6
I791 A3
I792 B2
I793 B2
I798 D4
I799 D3
I737 C6
I738 B5
C (3x)
R
L
I739 B6
I744 D4
I753 A2
I754 E2
I755 E3
I756 C1
I757 C2
I763 C6
I766 B8
I767 C8
I768 C8
I769 C9
I770 D8
I702 A6
I703 A6
I704 A6
I705 C5
I706 C4
I707 C4
I709 D3
I710 E4
I711 B3
I712 B4
I713 D3
I714 B4
I715 C4
I716 D2
I717 A5
I718 B5
I719 E2
I720 D2
I721 B2
I722 B2
I723 E2
I724 D2
I725 E1
I726 C2
I727 A5
I728 F3
I729 C4
I732 B5
F717 F8
F721 F2
PDP AUDIO
C
F722 F1
F732 A9
F733 A9
F734 B9
F735 B9
F736 B9
F737 F5
F738 F2
F739 F2
F742 B8
F743 D7
F744 F4
F745 F4
I700 D5
I701 D6
5707 C1
5708 D1
5711 C4
5712 C4
6701 B6
6710 C8
6711 D8
7700 B2
7701 A6
7703 B6
7704 A5
7705 B5
7706 B6
7707 B5
7710 C8
7711 C9
7712 D8
7713 D9
7714 B4
9717 A5
F708 E2
F710 F2
F711 A1
F712 A1
F713 B2
F714 B4
F716 F7
3761 B8
3762 D7
-0V3
0V4
-0V3
-0V1
5V2
-8V8
3763 C8
3764 C8
3765 D8
3766 D8
3767 B9
3768 C9
3790 B3
3791 B2
3792 B2
3793 B3
3794 B4
3795 B4
3798 C5
3999 F8
5701 E3
5702 E2
5703 A4
5704 F4
3709 E4
3710 D3
0V
0V
0V
0V
0V
3711 C4
3712 E2
3713 C6
3714 B5
3715 B5
3716 B6
3717 E3
3718 F3
3721 B1
3722 C1
3723 B1
3724 E1
3725 D2
3726 E1
3727 E4
3743 E3
3746 C5
3747 C6
3748 B4
3750 F2
3756 E3
3757 F3
3760 E3
2788 D1
2789 D1
0V6
TO 1M52
SSB
OR
0V
TO 1002
PDP SUPPLY
2790 D1
2791 B4
3701 E5
3702 A6
3703 A6
3704 A5
3705 B2
3706 D5
3707 C5
3708 D5
2722 C1
2724 D1
15W/8
-0V7
0V
2726 D2
2727 E2
2728 D2
2729 F2
2730 D4
2764 A2
2766 A3
2768 D4
2769 D4
2777 D1
2778 B5
2779 D2
2780 D4
2781 D4
2783 C7
2786 A3
2707 B3
2708 A2
2709 C5
2710 C4
2711 E1
2712 D4
2713 A6
2714 D3
2715 E3
2716 D3
2717 F3
2718 E2
2719 E4
2720 B2
2721 B1
1735 F1
1736 F1
1739 E4
1M02 A8
2701 F3
2702 B3
2704 B2
2705 A6
2706 B3
123456789
1n
15W/8
A
B
C
D
E
F
A
B
C
D
E
F
0045 E5
1701 F2
1702 F2
I793
2711
I739
I737
I738
3716
47K
8R2
3705
68K
3722
470n
2724
33n
2726
2K7
3791
F737
I719
I787
I791
I783
I775
I776
I769
BC847BW
7714
3750
I771
3767
2K2
3711
120K
100K
5701
3790
2K7
I713
68u
I782
I767
9717
6701
BAS216
I778
I768
7712
BC847B
BC847B
7710
3766
100K
100K
3718
F716
I773
BC847B
7707
7705
BC847B
I770
220K
3794
120K
3795
A59
1u0
2791
I704
I701
I753
330p2716
5707
83R
I716
I710
3763
I792
3764
2K2
100K
I717
I725
2781
220n
A56
220n
2780
3748
470R
0045
HEATSINK
1
2
47K
3747
F734
3723
56K
2712
470n
100u
2769
BC847B
7711
I784
2719
1n
3743
2K2
11
T2
15
VREG
25
I732
BOOT1
5
BOOT2
21
CURREF
14
FEED1
7
FEED2
9
FEED3
17
FEED4
19
GND
13
IN1
10
IN2
18
NC
20
OSC
8
OUT1
3
OUT2
23
STBY-MUTE
6
T1
TDA7490
7700
+5V
12
+VCC1
4
+VCC2
22
-5V
16
-VCC1
1
-VCC2
2
-VCC3
24
220R
3709
680n
2729
F743
I763
15K
3798
I786
3760
220K
1K2
3713
I729
2789
470n
7704
BC847B
I727
47K
3715
2778
4u7
100n
2706
2702
1n
220n
2779
10K
I779
3717
100K
3704
470p
2709
F742
1n
2727
F733
2K2
3727
220R
3765
I720
F721
5712
83R
I772
5711
F708
83R
1702
PLT09H
1701
PLT09H
3710
22K
I781
5703
30R
33K
3703
F744
10K
3701
33n
2714
2717
680n
1n
2715
I756
220n
I709
2720
3762
10R
10R
I788
3761
5702
68u
10K
22p
2718
I766
3712
I777
22K
68K
3707
3757
2K2
3725
F736
F735
I707
BC847B
7701
I785
I722
2u2
2764
6711
BZX384-C10 BZX384-C10
6710
I721
470n
2705
F738
I799
2788
100u
F713
I718
2777
220n
A58
2713
470n
10K
3702
2
3
4
5
6
7
8
9
B9B-PH-K
1739
1
2786
22n
2766
2u2
3999
100R
F732
4K7
3721
22K
3746
330p
2728
F717
I711
3714
47K
3706
4K7
470p
3724
220R
2710
10K
3792
F714
10K
3793
I744
3726
220R
3768
A57
5
6
7
100K
B7B-EH-A
1M02
1
2
3
4
7713
470p
2722
BC847B
I700
I703
F712
F711
7706
I726
BC857B
I724
100n
2790
100u
1n
2704
2707
2708
220n
2
3
470p
2721
1735
B3B-PH-K
1
F745
2730
470n
2768
100u
F710
2K2
3756
56K
3708
I723
83R
5708
I714
I728
2701
F722
100p
I757
I755
I754
I798
16V22u
2783
B3B-PH-K
1736
1
2
3
I706
I705
I702
BC847B
7703
-16V-19V
+16V+19V
DCPROT
-Vf11
-Vf1
F739
AUDIO-R
PROT_AUDIOSUPPLY
SOUND-ENABLE
POR-CLASSD
DCPROT
+16V+19V
-16V-19V
PROT_AUDIOSUPPLY
PROT1
+16V+19V
-16V-19V
-16V-19V
AUDIO-R
AUDIO-L
-Vf11
POR-CLASSD
+16V+19V
PROT1
PROT1
AUDIO-L
-Vf11
SOUND-ENABLE
-Vf1
-Vf1
-Vf11
C
C
3104 313 6025.3
E_14650_033.eps
210704
B21

Table of Contents

Other manuals for Philips 50PF9966