EasyManua.ls Logo

Philips 50PF9966 - Small Signal Board: EPLD OSD

Philips 50PF9966
136 pages
Print Icon
To Next Page IconTo Next Page
To Next Page IconTo Next Page
To Previous Page IconTo Previous Page
To Previous Page IconTo Previous Page
Loading...
72FTP2.2U AA 7.
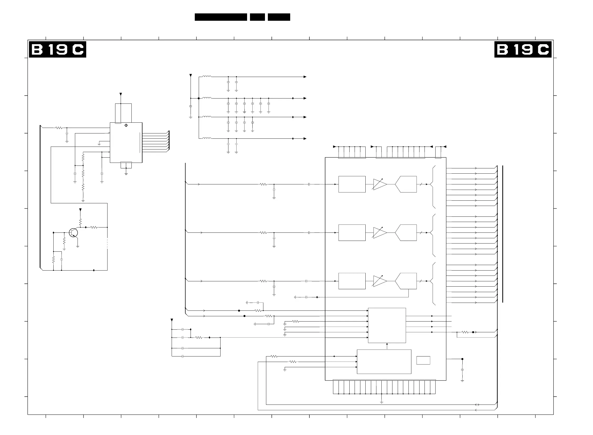
Circuit Diagrams and PWB Layouts
Small Signal Board: EPLD OSD
AIN-
PWRDWN
2
DATA
GND
3
7
VD
VDD
VREFIN
5
4
VREFOUT
AIN+
1
0
6
ENCODE
SERIAL REGISTER
VDD
REF
8
A/D
8
SYNC
PROCESSING
AND CLOCK
GENERATION
PVD
AND
PWR MANAGMENT
VD
CLAMP
8
GND
A/DCLAMP
CLAMP
A/D
E
F
G
H
I
2E02 D1
2E04 D2
2E05 B4
2E07 A5
2E08 C5
2E09 A6
2E10 B5
2E11 B6
2E12 B6
2E13 B6
2E14 B6
2E15 B6
A/D CONVERTER
3 4 5 6 7 8 9 10111213
123456
C
D
8 9 10 11 12 13
A
B
C
D
E
F
G
H
I
A
B
EPLD OSD
12
2E16 B5
2E17 B6
2E18 B6
2E19 B6
2E20 C6
2E21 D7
2E22 D7
2E23 E7
2E24 E7
2E25 F7
B3a
7
2E26 G7
2E27 G7
2E28 H4
2E29 H4
2E30 H4
2E32 F1
2E34 H4
2E35 I12
2E39 B1
2E48 H6
2E53 G6
3E04 D1
3E05 C1
3E06 D6
3E07 E6
B19a,b,d
B19a,b,d
B3a,B19d
B3a
B19c,d
B19d
B3a
B3a
B3a
3E08 F6
3E09 E1
3E10 E2
3E11 G6
3E12 G6
3E13 E1
3E14 G7
3E15 F1
3E16 H5
3E18 H7
3E19 I7
3E37 B1
3E90 D1
3E91 H12
5E00 A5
5E01 B5
5E02 B5
5E03 C5
7E22 E1
7E23 C8
7E24 B2
9E74 E2
AL10 H12
FE01 G6
FE03 G6
FE04 H12
FL01 B4
IE00 H4
IE01 H5
IE03 E1
IE04 E2
IE05 F2
IL01 A7
IL02 B7
IL03 C7
IL05 G8
100n
2E12
2E11
100n
100n
2E10
2E29
33n
PVDO
PVDO
FL01
PVDO
2E24
22p
FE04
PVDO
5E00
100n
2E09
VDO
22p
2E26
47n
2E23
2E25
47n
470R
3E12
470R
3E11
IL02
3E19
FE01
100R
100n
2E05
100n
2E19
2E18
100n
100n
2E17
10p
2E48
2E53
10p
2E35
100n
4n7
16
1
5
8
15
3
2
2E30
20
19
18
17
14
13
12
11
10
4
9
7E24
AD9283BRS-80
ADC
8-BIT
7
6
2E13
33R
3E91
100n
3E90
IL01
68R
2E34
2E28
47n
100R
3n3
100R
3E15
3E09
100n
2E04
VBL
2K7
IE00
3E16
IL05
100R
3E06
100n
2E27
2E08
100n
2E39
10p
22p
2E22
3E05
1K5
2E02
100n
100R
100R
3E08
3E07
33R
3E10
IL03
VDDO
3E18
100R
2E16
100n
100n
2E20
VDO
5E02
100n
2E14
IE05
IE04
+3V3-AD
IE03
BC847BW
7E22
10p
2E32
VBL
VDDO
+3V3-AD
1K0
3E14
AL10
IE01
3E04
1K0
5E01
22
23
69
78
79
VSOUT 64
VSYNC31
26
62
27
39
42
45
46
51
52
59
11
ROUTA4
73
ROUTA5
72
ROUTA6
71
ROUTA7
70
SCL56
SDA57
SOGIN49
SOGOUT 65
37
34
35
RAIN54
REF-BYPASS
58
ROUTA0
77
ROUTA1
76
ROUTA2
75
ROUTA3
74
7
GOUTA3
6
GOUTA4
5
GOUTA5
4
GOUTA6
3
GOUTA7
2
HSOUT 66
HSYNC30
MIDSCV
20
21
24
25
28
32
36
GOUTA0
9
GOUTA1
8
GOUTA2
44
47
50
53
60
61
63
68
10
80
12
CLAMP38
COAST29 DATACK 67
FILT33
GAIN48
1
40
41
43
BOUTA0
19
BOUTA1
18
BOUTA2
17
BOUTA3
16
BOUTA4
15
BOUTA5
14
BOUTA6
13
BOUTA7
AD9883AKST
7E23
A055
BAIN
FE03
3E37
100R
2E21
47n
RES
9E74
1K0
3E13
2E15
100n
2E07
100n
5E03
CLK-BL
CLK-OSD
CLK-BL
G-OSD-0
G-OSD-2
R-OSD
G-OSD
B-OSD
HD3-OTC
VD-OTC
B-OSD-7
B-OSD-6
B-OSD-5
B-OSD-4
B-OSD-3
B-OSD-2
B-OSD-1
B-OSD-0
G-OSD-1
G-OSD-3
G-OSD-4
G-OSD-5
G-OSD-6
G-OSD-7
SCL-F3
R-OSD-0
R-OSD-1
R-OSD-2
R-OSD-3
R-OSD-4
R-OSD-5
R-OSD-6
R-OSD-7
BL-OSD
BL-OSD-0
BL-OSD-1
BL-OSD-2
BL-OSD-3
BL-OSD-4
BL-OSD-5
BL-OSD-6
BL-OSD-7
SDA-F3
E_14620_115.eps
070704
8204 000 8346.5

Table of Contents

Other manuals for Philips 50PF9966