EasyManua.ls Logo

Philips Q552.1A - B14 F Connectors

Philips Q552.1A
157 pages
Print Icon
To Next Page IconTo Next Page
To Next Page IconTo Next Page
To Previous Page IconTo Previous Page
To Previous Page IconTo Previous Page
Loading...
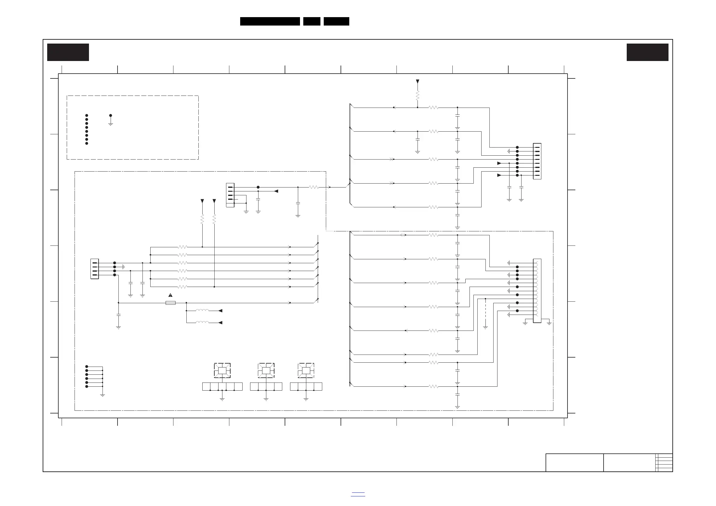
Circuit Diagrams and PWB Layouts
EN 147Q552.1A LA 10.
2010-Jun-25
back to
div. table
Connectors
18770_888_100331.eps
100331
Connectors
B14F B14F
2009-11-12
3
2009-10-26
2
8204 000 9071
TCON SHARP
FK58 E9
LIGHT STRIP
ROUND SCREW HOLE 4mm
FK5C F1
FK5D F1
FK5E F1
FK5F F1
FK60 E9
FKZB A1
3K85 D7
*
*
HOTEL TV
TEMPERATURE
*
FKZC A1
FKZD A2
FKZE A1
FKZF A1
FKZG B1
FKZH B1
FKZJ B1
ROUND SCREW HOLE 4.5mm
FK50 B4
FK51 B9
FK52 D9
FK53 D9
FK54 D9
FK55 D9
FK56 D9
FK57 D9
3K75 A7
FK5A F1
FK5B F1
*
**
*
LED PANEL
FK88 B9
FK89 B9
FK90 B9
FK91 B9
FK92 B9
FK93 B9
FK94 B9
FK96 D1
FK97 D1
FK98 D1
FK99 D1
FKZA A1
3K78 B7
3K79 C7
3K80 D2
3K81 D2
3K82 D2
3K83 D2
3K84 C7
2K86 C8
3K86 D7
3K87 F7
Dummy testlands for common jig
*
3K88-1 F7
3K88-2 E7
3K88-4 E7
3K89 B5
3K90 C3
3K91 D2
3K92 D2
3K93 C3
5K53 E3
5K54 E3
9K50 E8
2K90 E8
2K91 F8
2K92 F8
2K93 C4
2K94 C5
2K95 B7
3K71 E7
3K74 A7
2
3K76 A7
3K77 B7
OVAL SCREW HOLE
2K78 B8
2K79 B8
2K80 C8
2K81 B9
2K82 C8
2K83 D2
2K84 D2
2K85 E1
F
2K87 D8
2K88 D8
2D DIMMING
2K89 E8
3456789
431
1M20 B9
1M71 D1
1P12 B4
1X03 F3
1X05 F4
1X08 F5
2K76 A8
2K77 B8
D
E
F
A
B
C
D
E
SENSOR
56789
A
B
C
1F53 D9
**
12
1K85 D2
FKZJ
* FOR TV550 ONLY
100R
100p
2K94
1K85
1.0A 63VT
3K89
2K95
EMC HOLE
1X08
RES
47n
1u0
2K85
FK89
FK60
FK90
FKZH
+3V3-STANDBY
100RRES 3K71
3K84
100R
+5V
FK5D
FK5E
FK5F
FK97
3K74
100K
10R
FK98
3K79
FK99
FK53
100p
2K90 2K89
100p
3K75
100n
100R
2K81
100p
2K88 2K77
100p
3K80 100R
3K81
RES
100R
10p
2
3
4
5
6
7
8
9
15 16
2K87
1
10
11
12
13
14
30R
5K53
502386-1470
1F53
RES
10p
2K86
FK51
100n
2K93
3K88-2
100R
27
FK50
REF EMC HOLE
1X03
3K82
1
2
3
4
100R
1M71
2041145-4
3K83 100R
RES
FK55
FK54
6
7
8
FK52
1M20
2041145-8
1
2
3
4
5
FKZG
FKZE
FKZF
FKZD
100p
2K91
1n0
2K92
2K83
100p
3K87
100R
1
2
3
4
5
6
1P12
502382-0470
3K78
100R
3K77
100R
3K76
100R
FK92
+5V
100p
2K76
100p
2K82 2K80
100p 100p
2K78
100R
3K86
3K85
100R
RES
100R3K91
FKZC
100R
3K88-1
18
45
100R
3K88-4
FK88
EMC HOLE
1X05
FK57
+12V
+3V3
FK56
FK58
100p
2K84
FK5B
FK5C
FK5A
+3V3
FK96
FK94
FK93
FK91
5K54
30R
RES
2K79
100p
FKZB
FKZA
9K50
10K
+3V3
RES
RES
3K93
3K92
100R
10K
3K90
RES
+3V3
FAN-CTRL2
BACKLIGHT-PWM-ANA-DISP
FAN-CTRL1
LIGHT-SENSOR
LED-2
LED-1
KEYBOARD
LED-1
BL-SPI-SDO
FAN-DRV
SDA-BL
TACH02
SCL-BL
TACH01
BACKLIGHT-PWM_BL-VS
BL-SPI-CSn
BL-SPI-SDI
BL-SPI-CLK
SCL-BL
SDA-BL
RC

Table of Contents

Related product manuals