EasyManua.ls Logo

Pilous ARG 200 plus - ARG 200 Plus,ARG 235, ARG 235 Plus; Wiring Diagram

Pilous ARG 200 plus
58 pages
Print Icon
To Next Page IconTo Next Page
To Next Page IconTo Next Page
To Previous Page IconTo Previous Page
To Previous Page IconTo Previous Page
Loading...
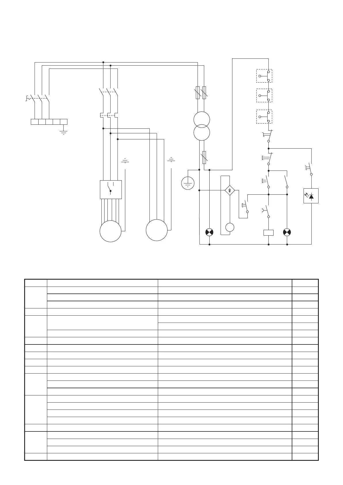
10. Wiring diagram
Qm1
SA1
BP1
BP2
BP3
KM1
FA1
SB1
SB2
SB3
H2
H1
Tr1
Diagram:
Switch
OT switch - accessories
OT switch - accessories
Motor M1 speed switch
Blade cover end switch
Blade cover end switch
Blade tensioning end switch
Lower position limit switch
Contactor
Thermal relay
TOTAL STOP button
MO head pressing red
MO head connection
Mo switch, unit 1off
MO head grip.green-lit
MO head grip.green-lit
MO head connection
MO switch, unit 1on
MO led socket green
MO head sig. white
MO head connection
MO led socket white
Isolation transformer
Type: Order No:
017074
002863
017076
009655
014948
014950
002532
002491
002490
011829
011833
006104
006086
006103
006091
006098
006087
006103
006090
006094
006095
006103
006092
001899
OT 16 FT3
OTS 32 T 3
OHBS2PJ
ON8XBS16616
FW 3392-M1 D1
Safety switch key
PZ FR 693 - D1-M16
FR 615
FR 6A1
Contactor DILEM - 10/24/50 24V/50-60Hz 10A
Thermal relay ZE - 4.0
YW1B-V4E01R
M22-D-R
M22-A
M22-K01
M22-DL-G
M22-D-G
M22-A
M22-K10
M22-LED-G
M22-L-W
M22-A
M22-LED-W
400/24V 12VA
Name:
v3.9 10.1.2013
3~
M2
Cooling
PE
TR1
12VA
400V
24V AC
4,0A
FU1
400mA
KM1
TOTAL STOP
BP3
*BP1
SB2
SB3
KM1
FA1
96
95
KM1
SB1
13
14
Blade cover
A2
A1
55
53
54
56
57
L1
L2 black
L3 gray
N blue
PE yellow-green
brown
10
11
12
16
17
18
51
FU3
1L1 5L33L2
2T1 6T34T2
2T1 6T34T2
FU2
2
1
2
1
4
3
14
13
22
21
151413
2625
50
52
FA1
Blade
blade STOP
blade START
Lower limit
400mA400mA
CMSM 7Cx0.75
654321
1W
1V
1U
2W
2V
2U
97215114
12
141
SA1
Blade
3~
M1
PE
58
16 1817
L1 L2 L3 N PE
CYSY 5Cx1,5
*QM1
1L1 3L2 5L3
2T1 6T34T2
7 98
*H1
24V
*H2
* component fittings may vary with the type of the saw
*BP2
Blade
14
13
53a
EV1
SB4
67
68
66
SB4
69
Laser (accessories)
v 3.9 05.3.2015
Oil mist lubrication (accessories)
10.1. ARG 200 plus, ARG 235, ARG 235 plus, ARG 260 plus E, ARG 260, ARG 260 plus wiring diagram

Table of Contents

Related product manuals