EasyManua.ls Logo

Potter PFC-6200 - Page 44

Potter PFC-6200
125 pages
Print Icon
To Next Page IconTo Next Page
To Next Page IconTo Next Page
To Previous Page IconTo Previous Page
To Previous Page IconTo Previous Page
Loading...
3-38

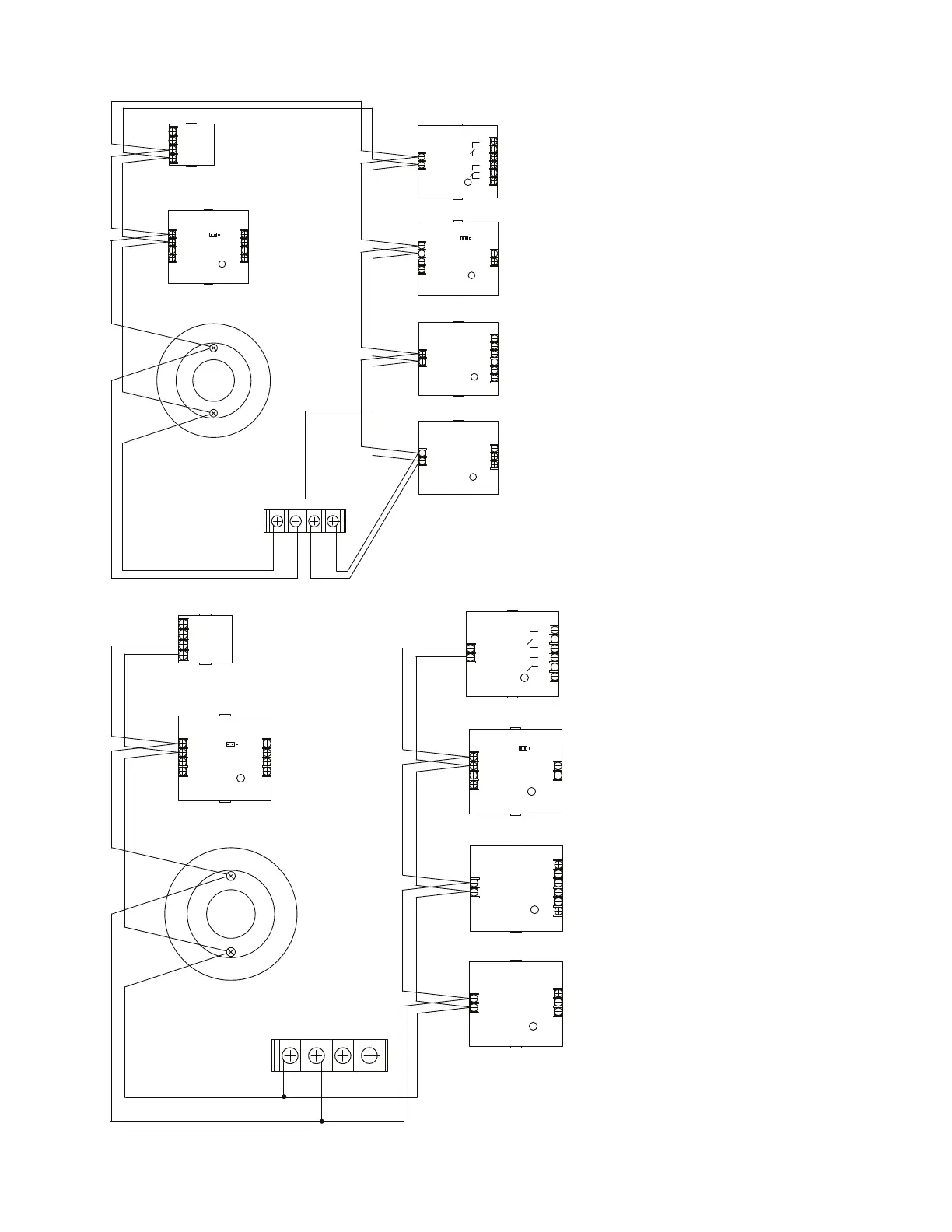
Example of SLCE-127 Class A WiringFigure 40.
Example of SLCE-127 Class B, Style 4 WiringFigure 41.
Analog detector's base
CIZM-4
MCM
DCM-4
SCM-4
MOM-4
S+
S-
A+
LED
JP1
24+
24-
A-
B+
B-
S+
S-
NO
C
TRM-4
S+
S-
NO
LED
Z
C
S+
S-
C1
LED
Z1
NO2
C2
NO1
Z2
S+
S- OUT+
LED
JP1
24+
24-
OUT-
S+
S-
C1
LED
NC1
NO2
C2
NO1
NC2
SLC OUT SLC RET
- + - +
SLCE-127 Connection
DWG #602-19
SLC OUT SLC RET
- + - +
SLCE-127 Connection
Analog detector's base
CIZM-4
MCM
DCM-4
SCM-4
MOM-4
S+
S-
A+
LED
JP1
24+
24-
A-
B+
B-
S+
S-
N
O
C
TRM-4
S+
S-
NO
LED
Z
C
S+
S-
C1
LED
Z1
NO2
C2
NO1
Z2
S+
S- OUT+
LED
JP1
24+
24-
OUT-
S+
S-
C1
LED
NC1
NO2
C2
NO1
NC2
DWG #602-20

Table of Contents

Related product manuals