EasyManua.ls Logo

Pro-face GP3000 Series - Page 91

Pro-face GP3000 Series
233 pages
Print Icon
To Next Page IconTo Next Page
To Next Page IconTo Next Page
To Previous Page IconTo Previous Page
To Previous Page IconTo Previous Page
Loading...
GP3000 Series Hardware Manual
4-28
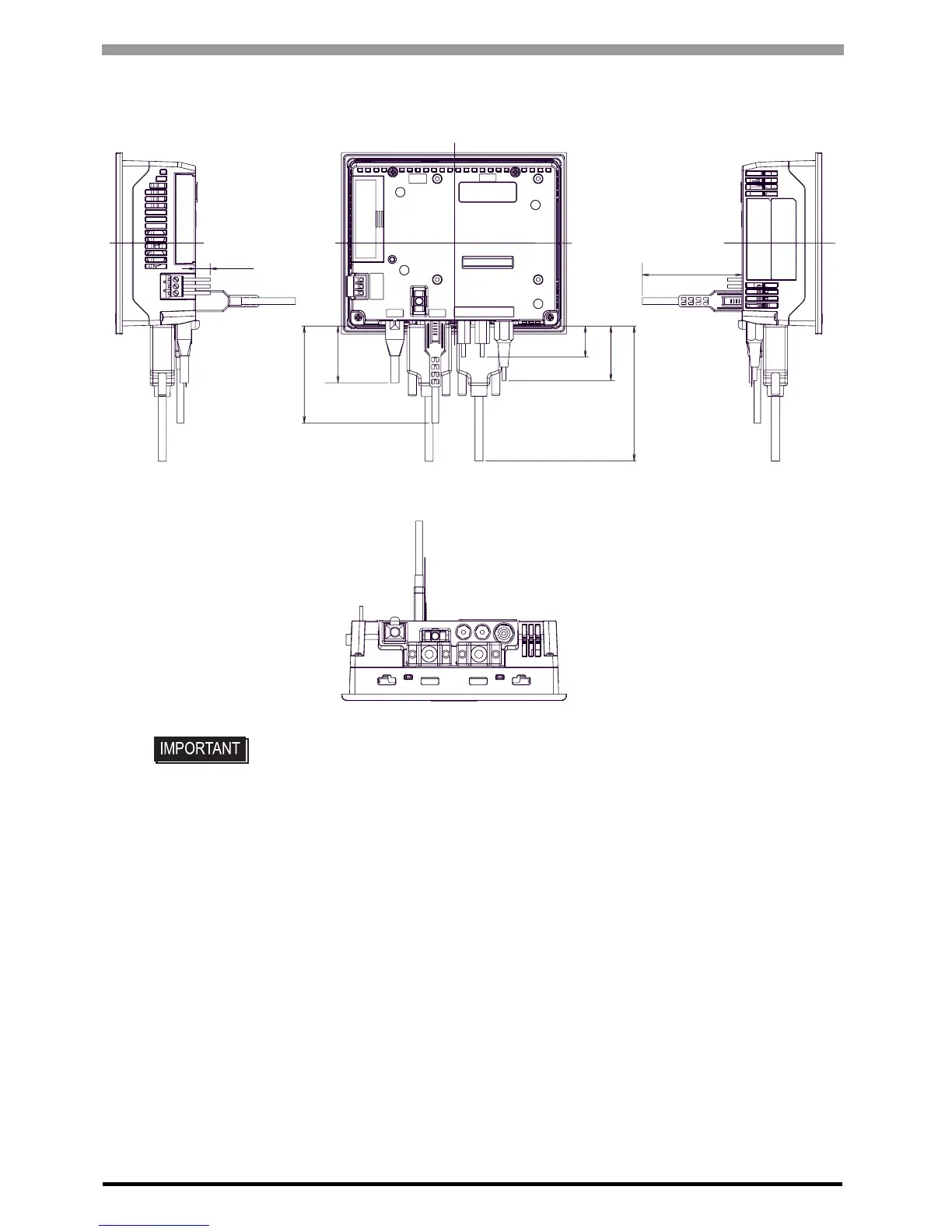
AGP-3310T/3360T
Unit:mm[in.]
Depending on the type of connection cable used the dimensions shown above will
change. The dimensions given here are representative values and are intended for
reference only.
Rear
Bottom
72 [2.83]
11 [0.43]
Left side Right side
42 [1.65]
100 [3.94]
23
[0.91]
(The figures show the AGP-3360T)
40 [1.57]
74 [2.91]

Table of Contents