EasyManua.ls Logo

ProStar 1K - Page 17

Default Icon
45 pages
Print Icon
To Next Page IconTo Next Page
To Next Page IconTo Next Page
To Previous Page IconTo Previous Page
To Previous Page IconTo Previous Page
Loading...
14
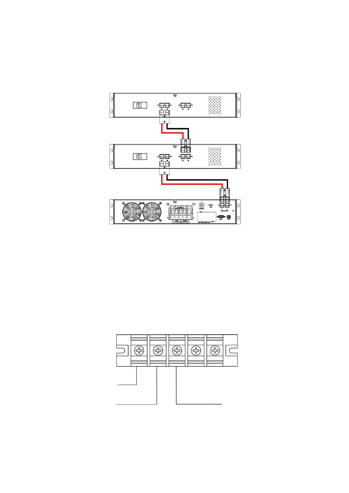
(3) Connect the battery cable attached to the external battery pack (optional) to the UPS’s battery
pack connector.
(4) Set the battery pack’s circuit breaker to the ON position.
STEP 2: UPS INPUT CONNECTION
For Socket - Plug the UPS into a two-pole, three-wire and grounded receptacle only. Avoid using
extension cords.
For terminal connection - Remove the terminal block cover on the rear panel of UPS. Then connect
the wires according to the following terminal block diagrams: (Connect the earth wire first when
making wire connection.)
Input Line
Input Neutral
Ground