EasyManua.ls Logo

Raypak 5350 - Page 47

Raypak 5350
60 pages
Print Icon
To Next Page IconTo Next Page
To Next Page IconTo Next Page
To Previous Page IconTo Previous Page
To Previous Page IconTo Previous Page
Loading...
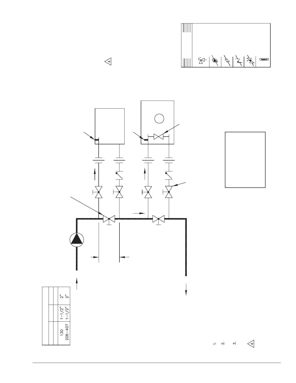
17
LE MOINDRE DE 4
DIAMÈTRES DE CONDUITES
OU 12 PO
DÉBIT MIN. DE LA BOUCLE SECONDAIRE
(SYSTÈME) = 120% DU DÉBIT REQUIS
PAR L’UN OU L’AUTRE DES APPAREILS
DE CHAUFFAGE.
SCHÉMA DE TUYAUTERIE RECOMMANDÉ PAR RAYPAK; IL N’EST PAS DESTINÉ À REMPLACER
UN SYSTÈME CONÇU PAR UN INGÉNIEUR.
DE POMPE
ET FILTRE
DIA. MIN. TUYAUX
DÉRIV. PRIMAIRE
VERS PISCINE
BOUCLE PRIMAIRE
NOTES:
CLAPET ANTI-RETOUR N/F PAR GRAVITÉ, AU NIVEAU.
DIA. MIN. DES CONDUITES: AU MOINS CELUI DES RACCORDS
D’ENTRÉE/SORTIE DE L’APPAREIL. VOIR TABLEAU ”DIA. MIN.
TUYAUX” CI-DESSUS.
LA THERMOPOMPE DOIT ÊTRE INSTALLÉE SELON LES EXIGENCES
DU FOURNISSEUR DE LA THERMOPOMPE, NOTAMMENT LA
PROTECTION CONTRE LA SURCHAUFFE OU LE GEL.
MODÈLES ILLUSTRÉS À
TITRE INDICATIF. LA
CONFIGURATION PEUT
VARIER EN FONCTIONS
DE LA CAPACITÉ DES
APPAREILS UTILISÉS.
LA CONDUITE DE DÉCHARGE DE LA SOUPAPES DE SÛRETÉ DOIT ÊTRE
ACHEMINÉE VERS UN DRAIN ADÉQUAT OU SELON CODES LOCAUX.
VANNE
D’ISOLATION (TYP.)
CAPTEUR INTERNE
CAPTEUR INTERNE
THERMOPOMPE
SYSTÈME DE
DÉRIVATION
INTERNE
LÉGENDE
SOUPAPE DE
SURPRESSION
POMPE
RACCORD-UNION
CLAPET DE
NON-RETOUR
ROBINET
SPHÉRIQUE
THERMOMÈTRE
CHAUFFAGE
À GAZ AUXILIAIRE
VANNE
D’ÉQUILIBRAGE
(TYP.)
Figure 10. Tuyauterie de piscine pour chau󰀨age par thermopompe et appareil de chau󰀨age au gaz

Table of Contents

Related product manuals