EasyManua.ls Logo

RCm Mega I Series - Page 60

Default Icon
94 pages
Print Icon
To Next Page IconTo Next Page
To Next Page IconTo Next Page
To Previous Page IconTo Previous Page
To Previous Page IconTo Previous Page
Loading...
60
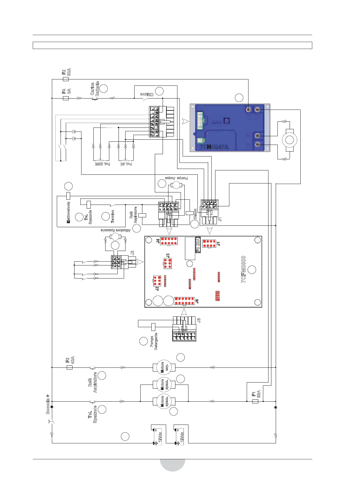
FIG.10B - MEGA I - 512 RS - 611 S - 722 S “SPECIAL”
Pot. 5K
Boccola +
Tel.
Spazzole
Relè
Aspiratore
F1
80A
F3
40A
F2
80A
F4
5A
Carica
Batterie
Chiave
1
23
4
56
7
8
91011
12131415
16
123
4
5
6
1234
5678
12345
678910
123456
789101112
Motore
spazz.
Motore
spazz.
Motore
asp.
J1
J3
J6
Relè
Aspiratore
Tel.
Spazzole
Termico
Elettrovalvola
Claxon
7CFM0000
Pompa Acqua
Pompa
Detergente
Attuatore Spazzole
Pot. 220K
+
-
12Vdc
1
2
+
-
12Vdc
1
2
7CH4Q47A
F5
20A
16
8
6
1314
15
12
10
6
7
9
8
4
5
11
3
1
2
17
SCHEMA ELETTRICO WIRING SCHEME DIAGRAMA ELÉCTRICO SCHÉMA ÉLECTRIQUE SCHALTPLAN
EL-DIAGRAM

Table of Contents

Related product manuals