EasyManua.ls Logo

RefPlus EK Series - O F (0 O C) (Pilot Duty)

RefPlus EK Series
40 pages
Print Icon
To Next Page IconTo Next Page
To Next Page IconTo Next Page
To Previous Page IconTo Previous Page
To Previous Page IconTo Previous Page
Loading...
R
30
13.9
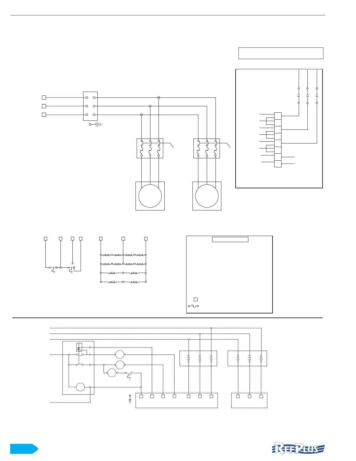
TYPICAL WIRING DIAGRAM FOR ALL EJE-LJE-DJE MODELS - ELECTRIC DEFROST
HIGH-SPEED FAN MOTORS FOR ROOMS OF LESS THAN 32
O
F (0
O
C) - 208-230/3/60 & 240/1/60 (PILOT DUTY)
HS
1
3 C X 4
DTFD
DH
T1
T2
T3
2
4
BLACK
L2
L3
L1
RED
BLUE
H1
H2
H3
: OVERLOAD
MMP
MMP
W1
ORANGE
YELLOW
YELLOW
U1
TB
TB
W2
BROWN
RED
GRAY
BLUE
V1
U2
V2
BLACK
ORANGE
WHITE
BLACK
BLUE
RED
#F1 #F3#F2
LS
PDB
1F2
1F1
1T
RT
1F
1T1
1T2
XC 4 H1 H2 T1 T2
L3
L2
N
TM
2
1
4
3
X
3
L1
L2
L1
1F3
H3
1T3
T3
240/1/60
: TERMINAL BLOCK
MMP: MANUAL MOTOR PROTECTERS
M# : FAN MOTOR
1F : EVAPORATOR FAN CONTACTOR
1T : EVAPORATOR FAN HEATER
DH : DEFROST HEATER
DT : DEFROST TERMINATION
FD : FAN DELAY
HS : HEATER SAFETY
208-230/3/60
DETAIL "A"
M1
DETAIL "A"
M2
DETAIL "A"
HIGH SPEED WIRING
PILOT DUTY
BY OTHERS -----
USE COPPER SUPPLY WIRES
WIRING DIAGRAMS
WIRING DIAGRAMS ARE FOR REFERENCE ONLY.
REFER TO DIAGRAM SUPPLIED WITH YOUR UNIT.

Table of Contents