EasyManua.ls Logo

Riello 3473280 - Descrição Do Queimador; Dimensões; Embalagem - Peso; Forma de Fornecimento

Riello 3473280
52 pages
Print Icon
To Next Page IconTo Next Page
To Next Page IconTo Next Page
To Previous Page IconTo Previous Page
To Previous Page IconTo Previous Page
Loading...
(A)
(B)
(C)
18 17 15
24
23
22
19
20
21
1234567
141312
11
10
9
8
mm A B C kg
RL 28 1010 620 495 36
RL 38 1010 620 495 38
RL 50 1010 620 495 39
(1) Tubo de fogo: curto-longo
mm A B C
D
(1)
E F G
H
(1)
RL 28 476 474 468 216 - 351 140 352 52 672 - 807
RL 38 476 474 468 216 - 351 140 352 52 672 - 807
RL 50 476 474 468 216 - 351 152 352 52 672 - 807
D3260
D3275
D450
D88
D452
3
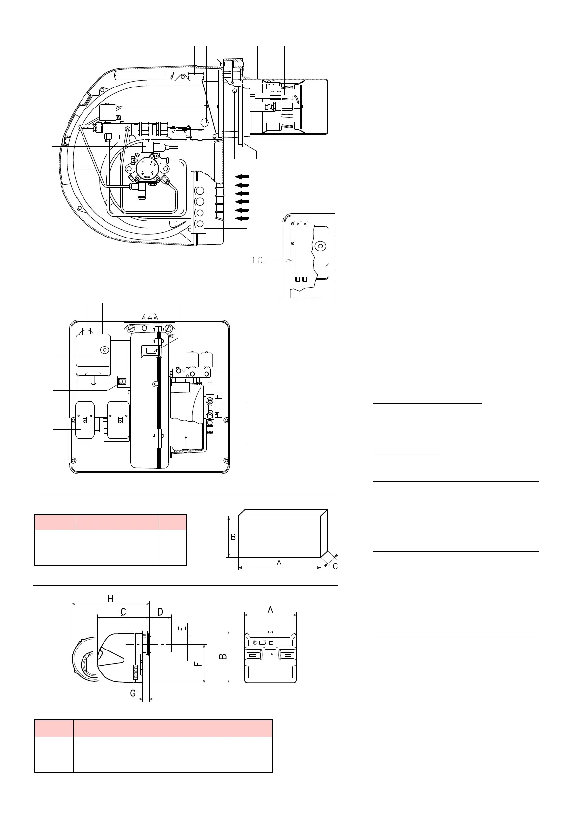
DESCRIÇÃO DO QUEIMADOR (A)
1 Electrodos de acendimento
2 Cabeçal de combustão
3 Parafuso de regulação do cabeçal de com-
bustão
4 Segurança contra falha de chama através de
fotorresistência
5 Parafuso de fixação do ventilador à flange
6 Guias para abertura do queimador e inspec-
ção do cabeçal de combustão
7 Cilindro hidráulico para
regular o registo de
ar na posição de e chama. Quando o
queimador está parado, o registo do ar está
completamente fechado para reduzir ao
mínimo a dispersão térmica da caldeira
devido à tiragem que toma ar da boca de
aspiração do ventilador.
8 Electroválvula de segurança (RL 38 - RL 50)
9 Bomba
10 Suporte com 4 orifícios para passagem de
tubos flexíveis e
eléctricos.
11 Entrada de ar no ventilador
12 Tomada de pressão do ventilador
13 Flange para fixação à caldeira
14 Disco estabilizador da chama
15 Visor da chama
16 Prolongadores guias 6)
17 Contactor motor e relé térmico com botão de
desblo
queio (RL 38 trifásico - RL 50)
18 Condensador motor
(RL 28 - RL 38 monofásico)
19 Caixa de controlo com piloto luminoso de
bloqueio e botão de
desbloqueio
20 Dois interruptores eléctricos:
- um de “arranque-paragem” do queimador
- um para “1ª chama - 2ª chama”.
21 Fichas para a ligação eléctrica
22 Registo de ar
23 Regulação de pressão da bomba
24 Grupo de válvulas 1
a
e 2
a
chama
Existem duas possibilidades de bloqueio do
queimador
:
Bloqueio da caixa de controlo: Ao ficar aceso
(Led vermelho) o botão da caixa 19)(A) indica
que o queimador está bloqueado.
Para desbloquear, premir o botão por um
per
íodo de tempo compreendido entre 1 e 3
segundos.
Bloqueio do motor (RL 38 trifásico - RL 50):
Para desbloquear, carregar no botão do relé tér-
mico 17)(A).
EMBALAGEM - PESO (B) - Medidas aproxima-
das
Os queimadores são fornecidos em embala-
gem de cartão, cujas dimensões são especifica-
das na tabela (B).
O peso do queimador completo com a
embalagem é indicad
o na tabela (B).
DIMENSÕES MÁXIMAS (C) - Medidas aproxi-
madas
As dimensões máximas do queimador são indi-
cadas em (C).
Ter em conta que para inspeccionar o cabeçal
de
combustão, o queimador deve ser aberto
deslocando a parte posterior pelas guias.
O comprimento máximo do queimador aberto,
sem envolvente, está indicado
pela cota H.
FORMA DE FORNECIMENTO
2 - Tubos flexíveis
2 - Juntas para tubos flexíveis
2 - Racords para tubos flexiveís
1 - Junta isolante
2 - Prolongadores 25)(A) para guias 6)(A)
(só em modelos com cabeçal de 351 mm)
4 - Parafusos M8 x 25 fixação do queimador à
caldeira
3 - Passacabos ligação eléctrica
(RL 28 e 38 monofásico)
4 - Passacabos ligação eléctrica
(RL 38 trifásico e RL 50)
1 - Instruções
1 - Lista de peças de substituição

Table of Contents

Related product manuals