EasyManua.ls Logo

Riello 3473280 - Comprimento Do Tubo de Fogo; Fixação Do Queimador à Caldeira; Instalação; Placa da Caldeira

Riello 3473280
52 pages
Print Icon
To Next Page IconTo Next Page
To Next Page IconTo Next Page
To Previous Page IconTo Previous Page
To Previous Page IconTo Previous Page
Loading...
P
V
456
10
L
7
8
9
3
10
21
(A)
(B)
(C)
mm A B C
RL 28 160 224 M 8
RL 38 160 224 M 8
RL 50 160 224 M 8
(D)
(1) gasóleo: Densidade 0,84 kg/dm
3
Viscosidade 4,2 cSt/20 °C
Temperatura 10 °C
GPH
kg/h
(1)
kW
12 bar
10 bar 12 bar 14 bar
RL 28 2,00
2,25
2,50
3,00
3,50
7,7
8,6
9,6
11,5
13,5
8,5
9,5
10,6
12,7
14,8
9,2
10,4
11,5
13,8
16,1
100,8
112,7
125,7
150,6
175,5
RL 38 2,50
3,00
3,50
4,00
4,50
5,00
9,6
11,5
13,5
15,4
17,3
19,2
10,6
12,7
14,8
17,0
19,1
21,2
11,5
13,8
16,1
18,4
20,7
23,0
125,7
150,6
175,5
201,6
226,5
251,4
RL 50 3,00
3,50
4,00
4,50
5,00
5,50
6,00
11,5
13,5
15,4
17,3
19,2
21,1
23,1
12,7
14,8
17,0
19,1
21,2
23,3
25,5
13,8
16,1
18,4
20,7
23,0
25,3
27,7
150,6
175,5
201,6
226,5
251,4
276,3
302,4
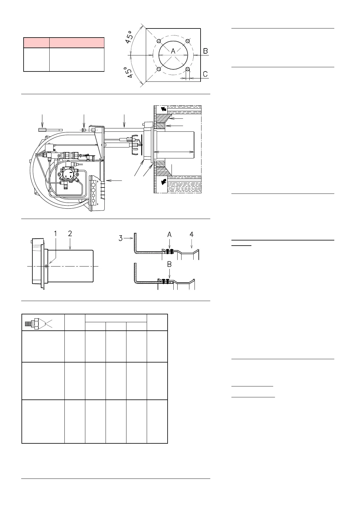
D455
D457
D456
(D)
5
INSTALAÇÃO
PLACA DA CALDEIRA (A)
Furar a placa de fecho da câmara de combus-
tão, tal como está indicado em (A). A posição
dos
orifícios roscados pode ser marcada utili-
zando a junta isolante que é fornecida com o
queimador
.
COMPRIMENTO DO TUBO DE FOGO (B)
O comprimento do tubo de fogo deve ser esco-
lhido de acordo com as indicações do fabricante
da
caldeira e, em qualquer caso, deve ser maior
que a espessura da porta da caldeira completa,
com o material refractário incluído. Os compri-
mentos, L (mm), disponíveis são:
Tubo fogo 7): RL 28 RL 38 RL 50
• normal 216 216 216
• longo 351 351 351
Para as caldeiras com passagens de fumos
dianteiras
10) ou com câmara de inversão da
chama, colocar uma protecção de material
refractário 8) entre o refractário da caldeira 9) e
o tubo de fogo 7).
Esta protecção deve permitir que o tubo de fogo
se desloque
.
Nas caldeiras com a frente refrigerada por
água,
não é necessário o revestimento refractá-
rio 8)-9)(B), excepto se o fabricante da caldeira
assim o indicar
.
FIXAÇÃO DO QUEIMADOR À CALDEIRA (B)
Desmontar o tubo de fogo 7) do queimador 4).
- Tirar os parafusos 2) das duas guias 3).
- Tirar o parafuso 1) que fixa o queimador 4) à
f
lange 5).
- Retirar o tubo de fogo 7) com a flange 5) e as
gu
ias 3).
PRÉ-REGULAÇÃO DO CABEÇAL DE COM-
BUSTÃO
No modelo RL 50 verificar se o caudal máximo
em 2
a
chama está na área B ou C do campo de
trabalho. Ver página 4.
Se estiver na área B, não deve variar o cabeçal.
Se estiver na área C proceder a:
- Aliviar os parafusos 1)(C) e desmontar o
tubo de
fogo 2)
- Trasferir da posição A para a B a ligação da
peça 4)(
C) a peça 3)
- Voltar a montar o tubo de fogo 2)(C) e fixá-lo
com os
parafuso 1)
Uma vez efectuada esta operação, fixar a
flange
5)(B) à placa da caldeira, intercalando a
junta 6) fornecida. Usar os 4 parafusos forneci-
dos, depois de haver protegido a rosca com um
pro
duto antibloqueio (massa para altas tempe-
raturas, copounds, grafite).
A união do queimador à caldeira deve ser her-
mética.
SELECÇÃO DAS BOQUILHAS PARA 1ª E 2ª
CHAMA
As duas boquilhas devem ser escolhidas entre
as que figuram na Tabela (A).
A primeira boquilha determina o caudal do quei-
mador na 1ª chama.
A segunda boquilha funciona em conjunto com
a primeira e, as duas, determinam o caudal do
queimador em 2ª chama.
Os caudais da e chama devem estar com-
preendidos entre os valores indicados na pág. 2.
Utilizar de preferencia boquilhas com ângulo de
pulver
ização de 60º e pressão a 12 bar.
Geralmente, as duas boquilhas são do mesmo
caudal,
mas, se necessário, a boquilha da
chama pode ter:
um caudal inferior a 50%, relativamente ao
cau
dal total, quando se deseja reduzir um
pouco a contrapressão no momento do acen-
dimento;
um caudal superior a 50% do caudal total,
quando
se deseja melhorar a combustão em
1ª chama.

Table of Contents

Related product manuals