EasyManua.ls Logo

Riello 3473280 - Hydraulic System

Riello 3473280
52 pages
Print Icon
To Next Page IconTo Next Page
To Next Page IconTo Next Page
To Previous Page IconTo Previous Page
To Previous Page IconTo Previous Page
Loading...
(A)
(B)
123
4
9
5
7
10
6
6
7
5
3
9
4
A
B
2
1
P
+H
8
10 cm
-H
V
+ H
- H
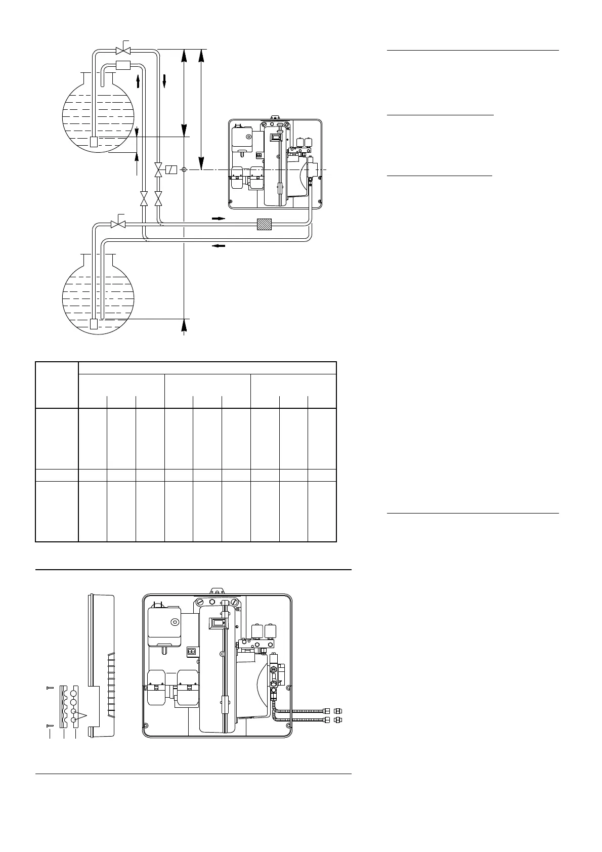
(m)
L (m)
RL 28
Ø (mm)
RL 38
Ø (mm)
RL 50
Ø (mm)
8 10 12 8 10 12 10 12 14
+ 4,0 52 134 160 35 90 152 63 144 150
+ 3,0 46 119 160 30 80 152 55 127 150
+ 2,0 39 104 160 26 69 152 48 111 150
+ 1,0 33 89 160 21 59 130 40 94 150
+ 0,5 30 80 160 19 53 119 37 86 150
0 27 73 160 17 48 108 33 78 150
- 0,5 24 66 144 15 43 97 29 70 133
- 1,0 21 58 128 13 37 86 25 62 118
- 2,0 15 43 96 9 27 64 17 45 88
- 3,0 8 28 65 4 16 42 10 29 58
- 4,0 - 12 33 - 6 20 - 12 28
D3279
D3278
7
HYDRAULIC SYSTEM
FUEL SUPPLY
Double-pipe circuit (A)
The burner is equipped with a self-priming pump
which
is capable of feeding itself within the limits
listed in the table at the side.
The tank higer than the burner A
The distance "P" must not exceed 10 meters in
ord
er to avoid subjecting the pump's seal to ex-
cessive strain; the distance "V" must not exceed
4
meters in order to permit pump self-priming
even when the tank is almost completely empty.
The tank lower than the burner B
Pump depression values higher than 0.45 bar
(35
cm Hg) must not be exceeded because at
higher levels gas is released from the fuel, the
pump starts making noise and its working life-
span decreases.
It is good practice to ensure that the return and
suction
lines enter the burner from the same
height; in this way it will be less probable that the
suction line fails to prime or stops priming.
The loop circuit
A loop circuit consists of a loop of piping departing
fro
m and returning to the tank with an auxiliary
pump that circulates the fuel under pressure. A
branch connection from the loop goes to feed the
burner. This circuit is extremely useful whenever
the burner pump does not succeed in self-priming
because the tank distance and/or height differ-
ence are higher than the values listed in the table.
Key (A)
H=
Pump/Foot valve height difference
L=Piping length
Ø=Inside pipe diameter
1=Burner
2=Pump
3=Filter
4=Manual on/off valve
5=Suction line
6=Foot valve
7 = Rapid closing manual valve remote con-
trolled (only Italy)
8 = On/off solenoid valve (only It
aly)
9=
Return line
10 = Check valve (only Italy)
HYDRAULIC CONNECTIONS (B)
The pumps are equipped with a by-pass that
connects return line with suction line. The pumps
are installed on the burner with the by-pass
closed by screw 6)(B)p.12.
It is therefore necessary to connect both hoses
to the p
ump.
The pump will break down immediately
if it is run
with the return line closed and the bj-pass screw
inserted.
Remove the plugs from the suction and return
connections of the
pump.
Insert the hose connections with the supplied
seals
into the connections and screw them
down.
Take care that the hoses are not stretched or
twiste
d during installation.
Route the hoses through the holes in the plate,
pre
ferably using those on the rh side, fig. (B):
unscrew the screws 1), now divide the insert
piece into its two parts 2) and 3) and remove the
thin diaphragm blocking the two passages 4).
Install the hoses where they cannot be stepped
on
or come into contact with hot surfaces of the
boiler.
Now connect the other end of the hoses to the
supplied
nipples, using two wrenches, one to
hold the nipple steady while using the other one
to turn the rotary union on the hose.

Table of Contents

Related product manuals