EasyManua.ls Logo

Rockwell Automation Allen-Bradley Guard master 442G-MAB Series - Dimensions; Environmental Protection

Rockwell Automation Allen-Bradley Guard master 442G-MAB Series
68 pages
To Next Page IconTo Next Page
To Next Page IconTo Next Page
To Previous Page IconTo Previous Page
To Previous Page IconTo Previous Page
Loading...
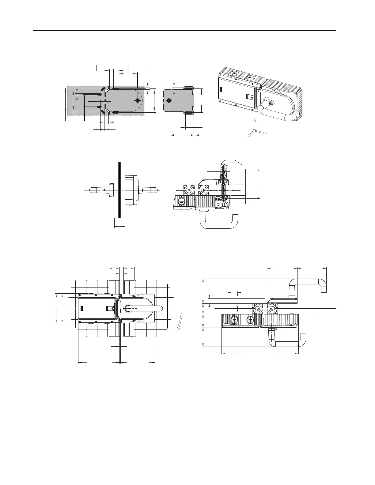
54 Rockwell Automation Publication 440G-UM001B-EN-P - May 2016
Chapter 6 Specifications
Dimensions [mm (in.)]
Figure 1 - Dimensions for MAB Mounted without Optional Mounting Plates
Environmental Protection
Lasting and correct safety function requires that the system must be protected
against debris (filings, shavings, and so on), which can become lodged in the
locking and handle modules. For this purpose, a suitable installation position
should be selected. The device should be covered during paint work.
y
x
z
40
(1.57)
83
(3.27)
19.2 (0.75)
M20x1.5
(0.06) 4x
62.5
(2.46)
51
(2.01)
40
(1.57)
113.5
(4.47)
104
(4.09)
289.3 (11.39)
89.4
(3.52)
7.5 (0.3)
24 (0.95)
6.5
(0.26)
89.4
(3.52)
86.5
(3.41)
6.3
(0.25)
92.5 (3.64)
77.5 (3.05)
6.2 (0.24)
46 (1.81)
10
(0.39)
5 (0.20)
15
(0.59)
16.5
(0.65)
73.5
(2.89)
10 (0.39)
15.4 (0.61)
8 x 8
(0.31 x 0.31
dia.)
58.5
(2.3)
10
(0.39)
40
(1.57)
110
(4.33)
OPEN
CLOSED
40
(1.57)
40
(1.57)
4
(0.16)
15 (0.59)
155.3 (6.11)
130 (5.12)
114
(4.49)
111
(4.37)

Table of Contents

Related product manuals