EasyManua.ls Logo

Samson 3767 - Adjusting the Position Transmitter

Samson 3767
68 pages
Print Icon
To Next Page IconTo Next Page
To Next Page IconTo Next Page
To Previous Page IconTo Previous Page
To Previous Page IconTo Previous Page
Loading...
44 EB8355-2EN
Operation
5.4 Adjustingtheposition
transmitter
NOTICE
The starting point (zero) and upper
range value (span) must be set before
adjusting the position transmitter.
Dependingonthepositionofthemulti-pin
connector(symbolonconnector:>>or<>),
thefeedbacksignalcanbesettoeithera
rangeof4to20mAor20to4mAfor0to
100%travel.
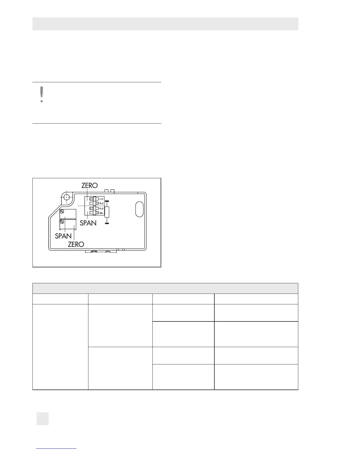
Fig.15:Position transmitter
Zeropoint
Use the switches 1 and 2 to roughly set the
zero point and the ZERO potentiometer for
ne-tuning.Theadjustedvalueisalways
basedona4mAsignal.
Span
Use the switches 3 and 4 to roughly set the
span, i.e. the upper range value, and the
SPANpotentiometerforne-tuning.Thead-
justedvalueisalwaysbasedona20mA
signal.
Example:
Move the valve to the open position while
observingthepositiontransmittersignal.
If the signal does not move in the desired di-
rection,changethepositionofthemulti-pin
connector.
Adjustthezeropoint(4mA)andspan
(20mA)forthevalvepositionsaccordingto
Table10.
Table10: Position transmitter
Valve movement Observedfeedbacksignal Direction of signal Set zero/span to
OPEN
á
CLOSED
Signal increases á
OK
20mA ValveOPEN
4mA ValveCLOSED
NotOK
à Change connector's
position
4mA ValveOPEN
20mA ValveCLOSED
Signal drops â
OK
4mA ValveOPEN
20mA ValveCLOSED
NotOK
à Change connector's
position
20mA ValveOPEN
4mA ValveCLOSED

Other manuals for Samson 3767

Related product manuals