EasyManua.ls Logo

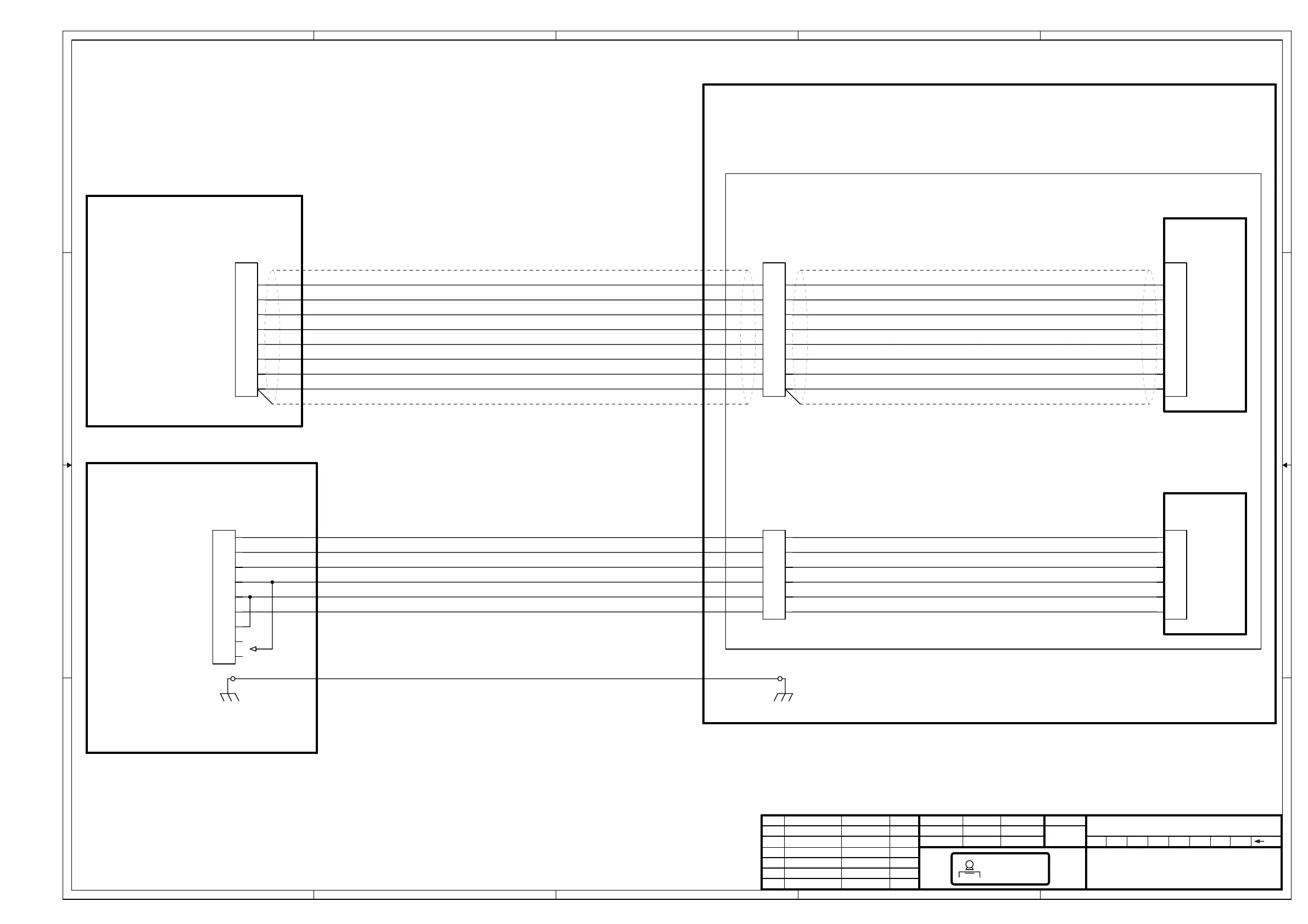
Sedecal X - IM-363 AEC Interconnection for URS Schematic

Sedecal X
100 pages
Print Icon
To Next Page IconTo Next Page
To Next Page IconTo Next Page
To Previous Page IconTo Previous Page
To Previous Page IconTo Previous Page
Loading...
A
A
B
B
C
C
D
D
E
E
4 4
3 3
2 2
1 1
BUCKY CABLE
(A3343-XX)
+12 VDC
GND
OPTIMA UNIVERSAL
BUCKY
BUCKY 1 MOTION
GND CABLE
ION CHAMBER
115/220 VAC
AEC ADAPTATION Board
GENERATOR CABINET
IC OUTPUT
FLD1 DR (LEFT)
0 VAC
Connector IC could be J1, J2,
J3or J5 depending on the Ion
Chamber selected.
BUCKY 1 MOTION RTN
Shield
BUCKY 1 DR
Connections ( )
for Bucky #2
FLD2 DR (CENTER)
DETECTOR ASSEMBLY
-12 VDC
STRT DR (RESET)
FLD3 DR (RIGHT)
Optima Bucky CABLE
(A3342-01)
URS IC CABLE
(A6721-01)
Note.- In case the AEC ADAPTATION Boad is not required, the ION CHAMBER
CABLE A3234-02 should be used (refer to drawing I/F-003)
GND
Note.-Connect wire 26 to TS1-26 for
220 VAC, or to TS1-27 for 115 VAC
See Note
AEC Interconnection for URS
IM - 363
1/1
05/05/05F.GARCIA
05/05/05A.DIAZ
REV DESCRIPTION ISSUED BY DATE
DRAWING
REVISED
NAME DATE SHEET / OF
REV
SEDECAL
GND Stud
GND Stud (Column)
26
IC
5
1
2
6
9
8
7
3
4
J1
1
2
3
4
5
6
TS1
5(12)
6(13)
4(11)
1(8)
3(10)
2(9)
7(14)
26
27
J2
5
1
2
6
9
8
7
3
4
ADAPT
5
1
2
6
9
8
7
3
4
1
2
3
4
8
6
B1
B2
B3
B4
B8
B6

Related product manuals