EasyManua.ls Logo

Sharp UX-40 - Page 66

Sharp UX-40
96 pages
Print Icon
To Next Page IconTo Next Page
To Next Page IconTo Next Page
To Previous Page IconTo Previous Page
To Previous Page IconTo Previous Page
Loading...
UX-40DE
FO-50DE
6 – 10
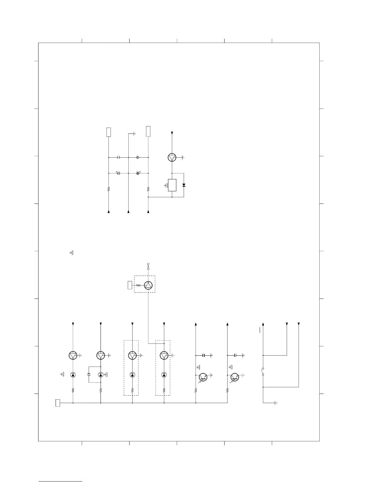
TEL/LIU PWB circuit 2/2
1
2
6
4
3
5
BDEFG
I
HCA
BDEFG
I
HCA
1
2
6
4
3
5
+5V
DPON
CNLIUB-3
DPMUTE
CNLIUB-4
E-RLY
CNLIUB-5
R148
470
PC2
TLP627
Q108
PDTC114
DG
Q110
PDTC114
DG
Q109
DG
R149
470
R151
PC3
TLP627
PC4
CI
CNLIUA-4
R152
100K
DGDG
C125
0.1
PC6
TLP521
HS
CNLIUA-5
R153
470
DG
DG
C126
0.1
PC5
TLP521
N.M.
RHS
CNLIUA-6
DG
CNHS-1
CNHS-2
SW1
HOOK SW
CNLIUA-10
+5V
CNLIUA-11
DG
CNLIUA-12
+24V
R145
1K
C12
47/25
C13
22/50
C122
0.1
C124
0.1
+5VA
DG
+24VA
R147
1K
CNLIUA-9
CML
D4
1N4148
DG
Q106
PDTC114
CML
RLYCNT
CNLIUB-1
DG
PC1
Q107
R150
N.M.
+24V
R146
Q105
A
N.M.
C127
0.01
NOTE:
These marks are all satety-cirtical parts.

Other manuals for Sharp UX-40

Related product manuals