EasyManua.ls Logo

Sharp XE-A407 - The FAQ Menu and Guidance Messages

Sharp XE-A407
116 pages
Print Icon
To Next Page IconTo Next Page
To Next Page IconTo Next Page
To Previous Page IconTo Previous Page
To Previous Page IconTo Previous Page
Loading...
17
TheFAQmenuandguidancemessages
Press the
y
key to display the FAQ menu. This menu provides a list of the procedures for which you can
perform it or print the guidance messages.
Procedure
Example
Keyoperation Print
(For the XE-A43S)
y
1
2
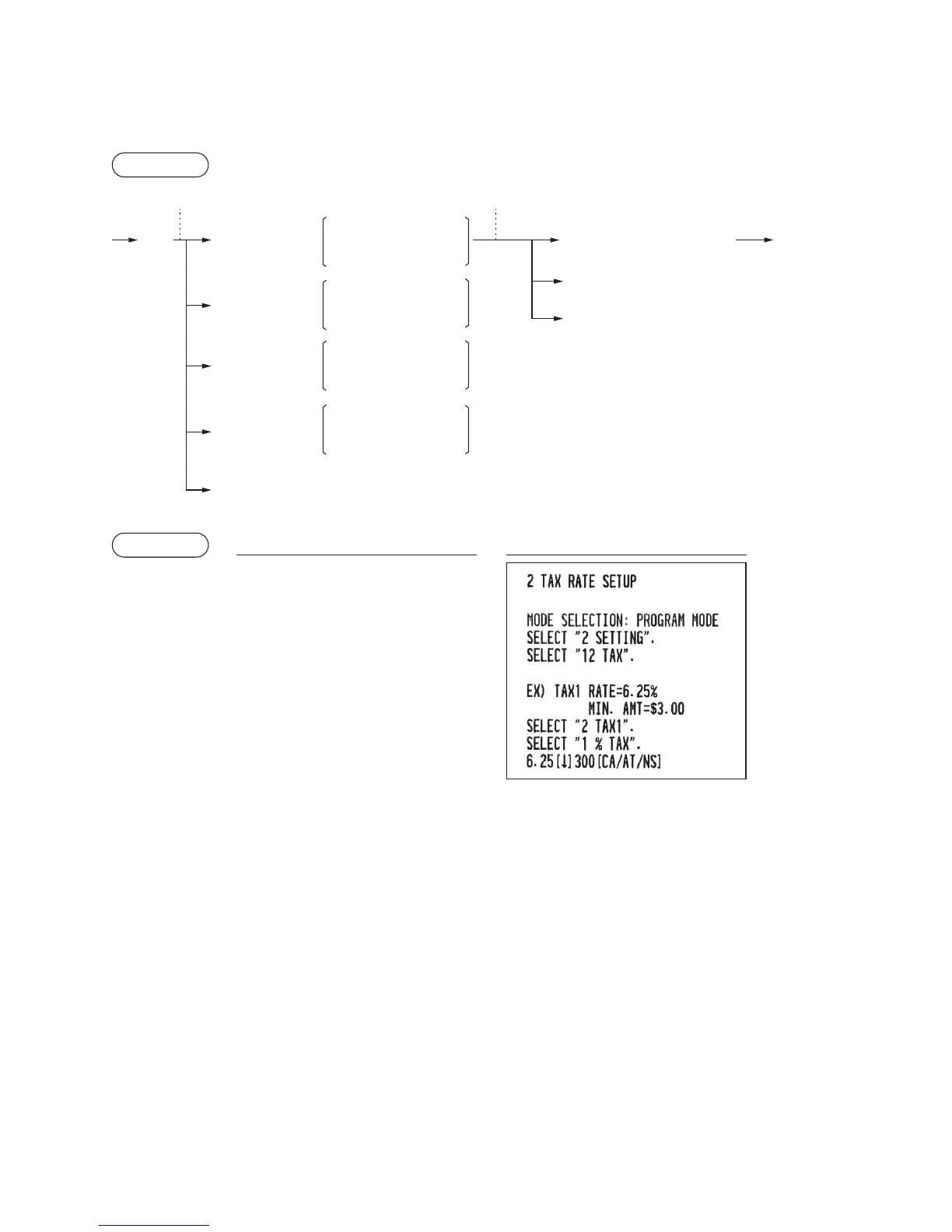
HELP menu list 1 DATE/TIME
(for the XE-A43S) 2 TAX
3 DEPARTMENT
4 LOGO
5 SALES REPORT
6 RECEIPT
7 CLERK
8 SD CARD
9 PC S/W INSTALL
1 HELP MENU
y
2 RECEIPT SW
3 SUPPLY INFO
4 SERVICE &
SUPPORT
To display the HELP
menu and print
guidance messages
To perform the
receipt ON/OFF
function
To print guidance
messages for the
supply information
To print guidance
messages for service
and support infomation
Entry of the menu no.
(using the numeric N key (N: 1 to 9))
a
To cancel
A
Selection of the function
(using the I or F key)
a
To cancel
The HELP menu is displayed.
The FAQ menu is displayed.

Table of Contents

Other manuals for Sharp XE-A407

Related product manuals