EasyManua.ls Logo

SICK Lector63x Flex C-mount - Page 77

SICK Lector63x Flex C-mount
98 pages
Print Icon
To Next Page IconTo Next Page
To Next Page IconTo Next Page
To Previous Page IconTo Previous Page
To Previous Page IconTo Previous Page
Loading...
CDB650-204
PNP sensor 3
V
S
GND
12 SGND
6 Shield
11
U
IN
*
A
Out
U
IN
*
GND
S3
Trigger sensor 1
ON
OFF
S3 : SGND-GND
V
S ext
Shield
U
IN
*
CDB650-204
12 SGND
6 Shield
11
U
IN
*
A
GND
S3
ON
OFF
S3 : SGND-GND
Shield
1
V
S ext
GND
A
12
2
SENS/IN B
SENS/IN B
2
2
4
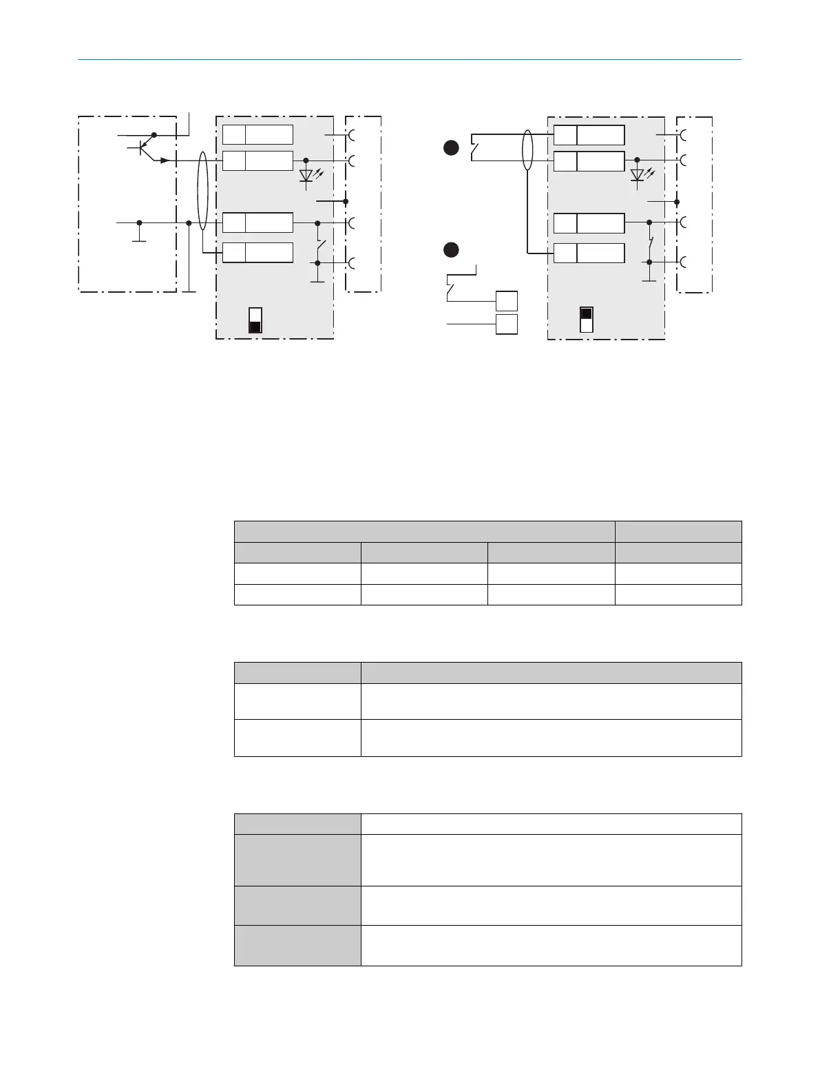
Figure 25: Left: Trigger sensor connected potential-free and supplied with power externally. Right: Alternatively switch,
!
supplied with power by connection module CDB650-204 or
"
connected potential-free and supplied with power externally.
Now select switch setting S3 as shown in the left figure.
1
Trigger sensor, e.g., for read cycle generation
2
External supply voltage V
S ext
3
PNP sensor
4
Supply voltage V
S
Table 20: Assignment of placeholders to the digital inputs
CDB650-204 Device
Terminal A Signal B Pin C Sensor D
10 SENS/IN 1 10 1
13 SENS/IN 2 15 2
Function of switch S3
Table 21: Switch S3: SGND-GND
Switch setting Function
ON GND of the trigger sensor is connected with GND of CDB650-204 and
GND of the device
OFF Trigger sensor is connected volt-free at CDB650-204 and the device.
Common, isolated reference potential of all digital inputs is SGND.
Characteristic data of the digital inputs
Table 22: Characteristic data of the digital inputs “Sensor 1” and “Sensor 2”
Type Switching
Switching behavior Power to the input starts the assigned function, e.g. start read cycle.
Default setting in the device: logic not inverted (active high), debounce
time 10 ms
Properties
Opto-decoupled, reverse polarity protected
Can be wired with PNP output of a trigger sensor
Electrical values Low: V
in
1)
≤ 2 V; I
in
2)
≤ 0.3 mA
High: 6 V ≤ V
in
≤ 30 V; 0.7 mA ≤ I
in
≤ 5 mA
1)
Input voltage.
2)
Input current.
ANNEX 13
8018071/1E1C/2021-12-16 | SICK O P E R A T I N G I N S T R U C T I O N S | Lector63x Flex C-mount and S-mount
77
Subject to change without notice

Table of Contents

Related product manuals