EasyManua.ls Logo

SICK Lector63x Flex C-mount - Page 78

SICK Lector63x Flex C-mount
98 pages
Print Icon
To Next Page IconTo Next Page
To Next Page IconTo Next Page
To Previous Page IconTo Previous Page
To Previous Page IconTo Previous Page
Loading...
NOTE
Assign the functions for the digital inputs in the device using a configuration tool, e.g.,
the configuration software SOPAS ET.
13.2.8 Wiring the external digital inputs of the device in the CDB650-204
Device = Lector63x = V2D63xx-xxxxB
Device 4CDB650-204
PNP sensor 7
V
S
GND
3.32 K
6.64 K
18
SGND
8
Shield
11
U
IN
*
A
Out
GND
S3
E.g. photo-electric
switch 6
Trigger sensor 1
CMC600 3
U
IN
*
AUX
(RS-232)
ON
OFF
S3 : SGND-GND
No
YES
S4 : CMC
V
in
“External
input C5
SensGND
EXT. IN B
8
2
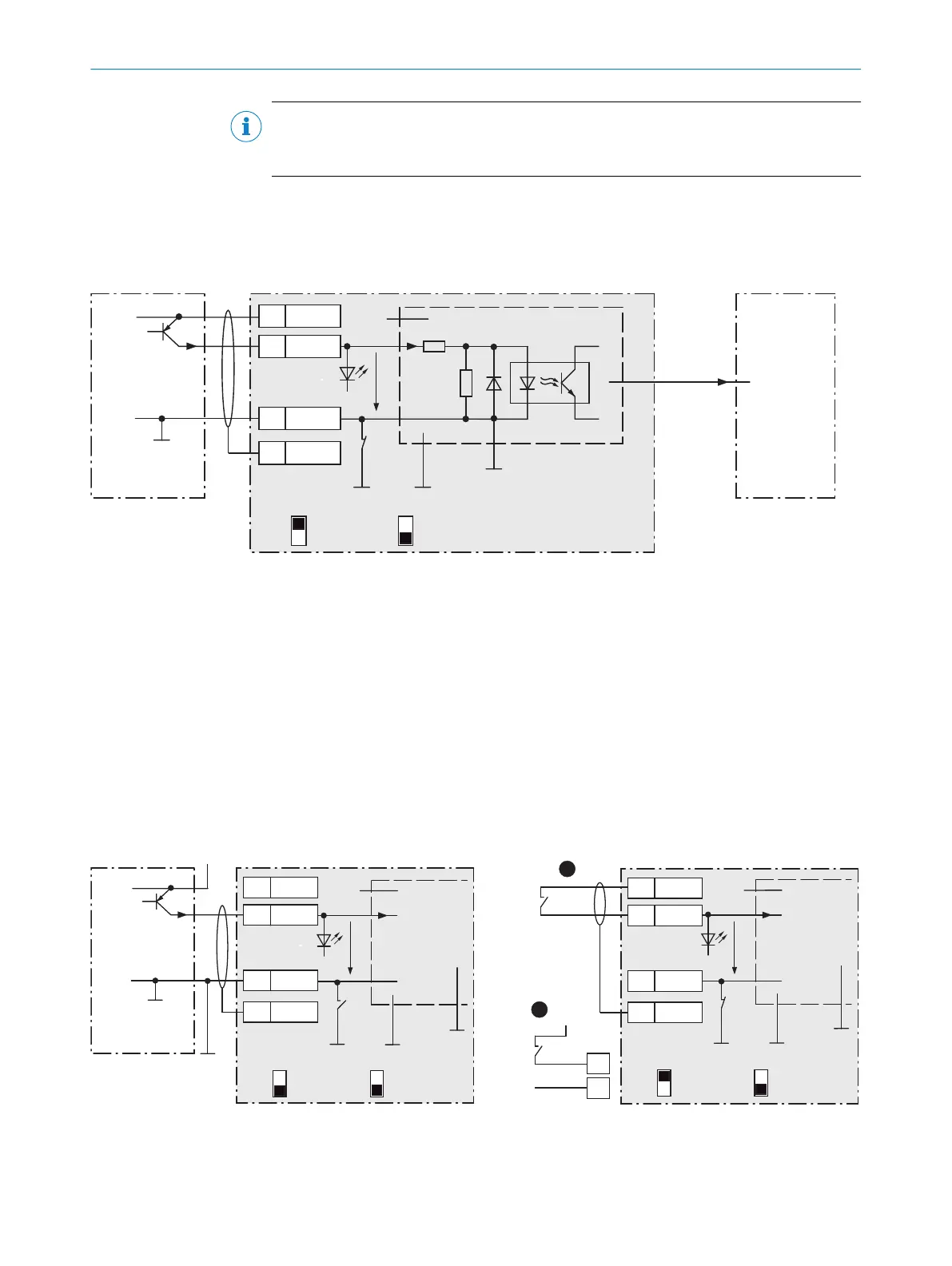
Figure 26: Trigger sensor supplied with power by connection module CDB650-204.
1
Trigger sensor
2
Input voltage V
in
3
The optional CMC600 parameter cloning module is required in the connection module in order to use the additional
external digital inputs and digital outputs of the device.
4
Device
5
Logical “External input” in the device
6
E.g. photoelectric sensor
7
PNP sensor
8
Supply voltage V
S
CDB650-204
18 SGND
8 Shield
11
U
IN
*
A
GND
S3
U
IN
*
CMC600
ON
OFF
S3 : SGND-GND
No
YES
S4 : CMC
V
in
SensGND
1
V
S ext
GND
A
18
2
EXT. IN B
CDB650-204
PNP sensor 4
V
S
GND
18
SGND
8
Shield
11 U
IN
*
A
Out
GND
S3
V
S ext
CMC600
U
IN
*
No
YES
S4 : CMC
ON
OFF
S3 : SGND-GND
V
in
SensGND
Trigger sensor 1
EXT. IN B
2
5
2
3 3
Figure 27: Left: Trigger sensor connected potential-free and supplied with power externally. Right: Alternatively switch,
!
supplied with power by connection module CDB650-204 or
"
connected potential-free and supplied with power externally.
Switch setting S3 then as in left figure.
13 ANNEX
78
O P E R A T I N G I N S T R U C T I O N S | Lector63x Flex C-mount and S-mount 8018071/1E1C/2021-12-16 | SICK
Subject to change without notice

Table of Contents

Related product manuals