EasyManua.ls Logo

Siemens 340 - Page 131

Siemens 340
174 pages
Print Icon
To Next Page IconTo Next Page
To Next Page IconTo Next Page
To Previous Page IconTo Previous Page
To Previous Page IconTo Previous Page
Loading...
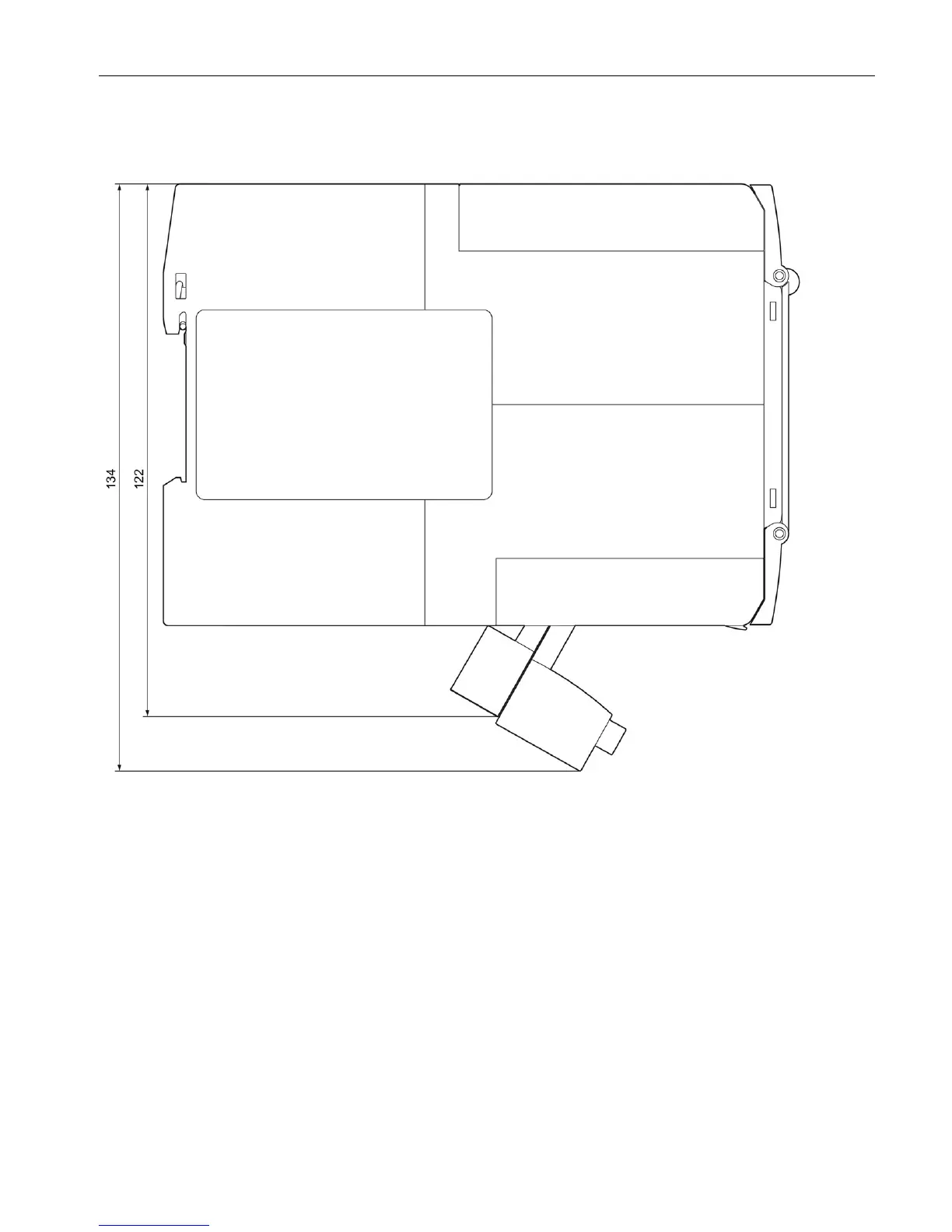
Dimension drawings
10.1 3RM1 dimension drawings
SIRIUS 3RM1 motor starter
Manual, 11/2013, A5E0345285095020A/RS-AB/002
131
Dimension drawing for 3RM1 motor starter with infeed terminal and system

Table of Contents

Related product manuals