EasyManua.ls Logo

Siemens 7VK512

Siemens 7VK512
132 pages
To Next Page IconTo Next Page
To Next Page IconTo Next Page
To Previous Page IconTo Previous Page
To Previous Page IconTo Previous Page
Loading...
!PPENDIX6+
6
#
' #

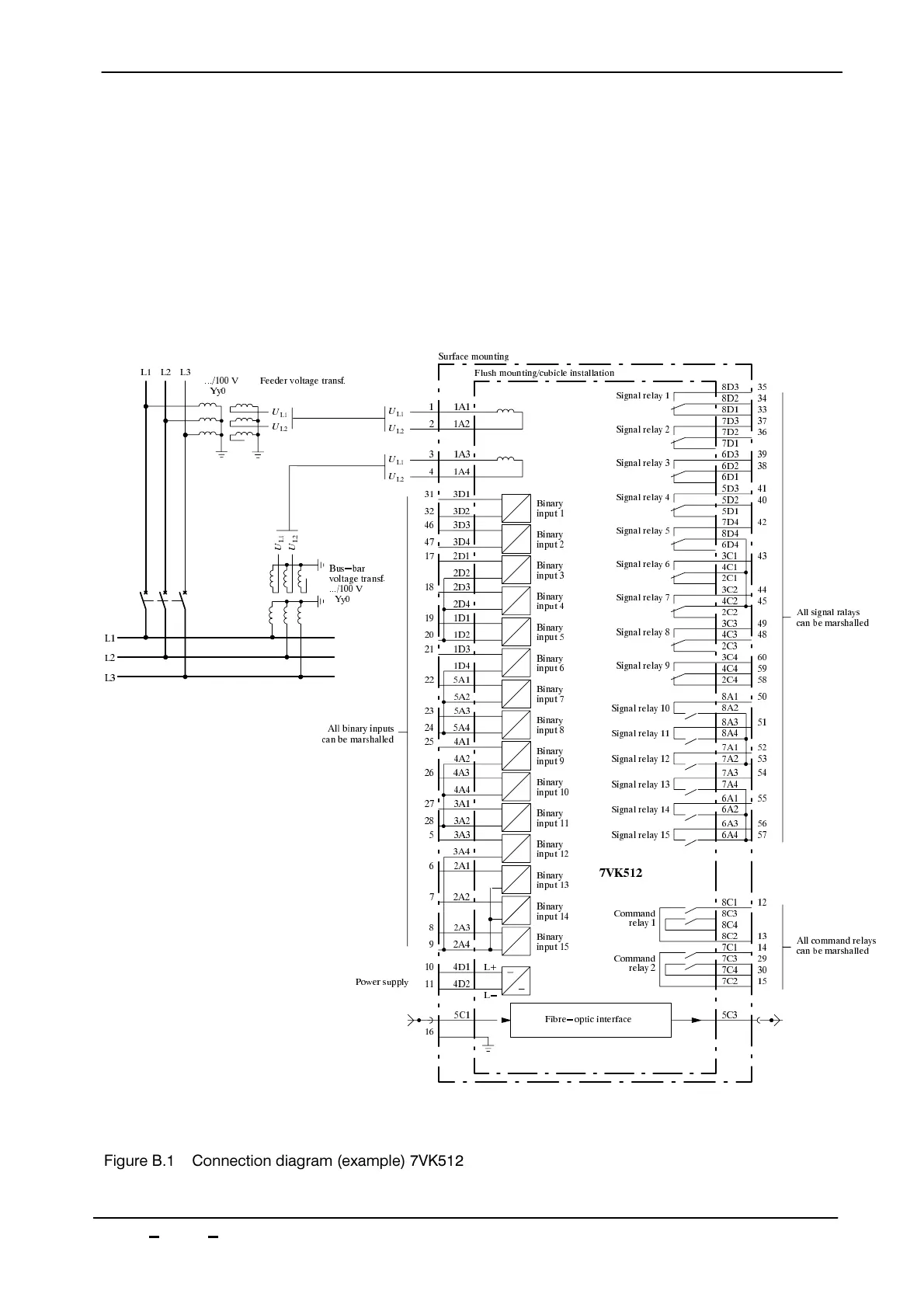
" #ONNECTION DIAGRAM
5
,
5
,
,
5
,
5
,
"US BAR
VOLTAGE TRANSF
 6
9Y
 6
9Y
&EEDER VOLTAGE TRANSF
,,
,
,
,

!
#OMMAND
"INARY
INPUT































$
$
$
$
$
$
$
$
$
$
$
$
$
$
#
#
#
#
#
#
#
#
#
#
#
#
!
!
!
!
!
!
!
!
!
!
!
!
#
#
#
#
#
#
#
#
$
3IGNAL RELAY
3IGNAL RELAY
3IGNAL RELAY
3IGNAL RELAY
3IGNAL RELAY
3IGNAL RELAY
3IGNAL RELAY
3IGNAL RELAY
3IGNAL RELAY
3IGNAL RELAY 
3IGNAL RELAY 
3IGNAL RELAY 
3IGNAL RELAY 
3IGNAL RELAY 
3IGNAL RELAY 
!
!
!
$
$
$
$
$
$
$
$
$
$
$
$
!
!
!
!
!
!
!
!
!
!
!
!
!
!
!
!
$
$
#



















"INARY
INPUT
"INARY
INPUT
"INARY
INPUT
"INARY
INPUT
"INARY
INPUT
"INARY
INPUT
"INARY
INPUT
"INARY
INPUT
"INARY
INPUT 
"INARY
INPUT 
"INARY
INPUT 
"INARY
INPUT 
"INARY
INPUT 
"INARY
INPUT 
#
#OMMAND
3URFACE MOUNTING
&LUSH MOUNTINGCUBICLE INSTALLATION
5
,
5
,
5
,
5
,
6+
,
,
RELAY
RELAY
&IBRE OPTIC INTERFACE
!LL BINARY INPUTS
CAN BE MARSHALLED
0OWER SUPPLY
!LL SIGNAL RALAYS
CAN BE MARSHALLED
!LL COMMAND RELAYS
CAN BE MARSHALLED
&IGURE " #ONNECTION DIAGRAM EXAMPLE 6+

Table of Contents

Related product manuals